8.2
Смотреть все фото
БЕЗ КОМИССИИ ID: 209180 Рейтинг7.6 КлассB
Бизнес-центр «Никитский 10»

Аренда офиса 425 м²

Москва, Никитский бульвар, 10

Арбатская → 350 м
~ 4 мин
Арендная плата в месяц 885 400 ₽ 25 000 ₽/м² в год С учётом НДС

Презентация по предложению

Собираете информацию? Получите подробную презентацию в удобном формате!

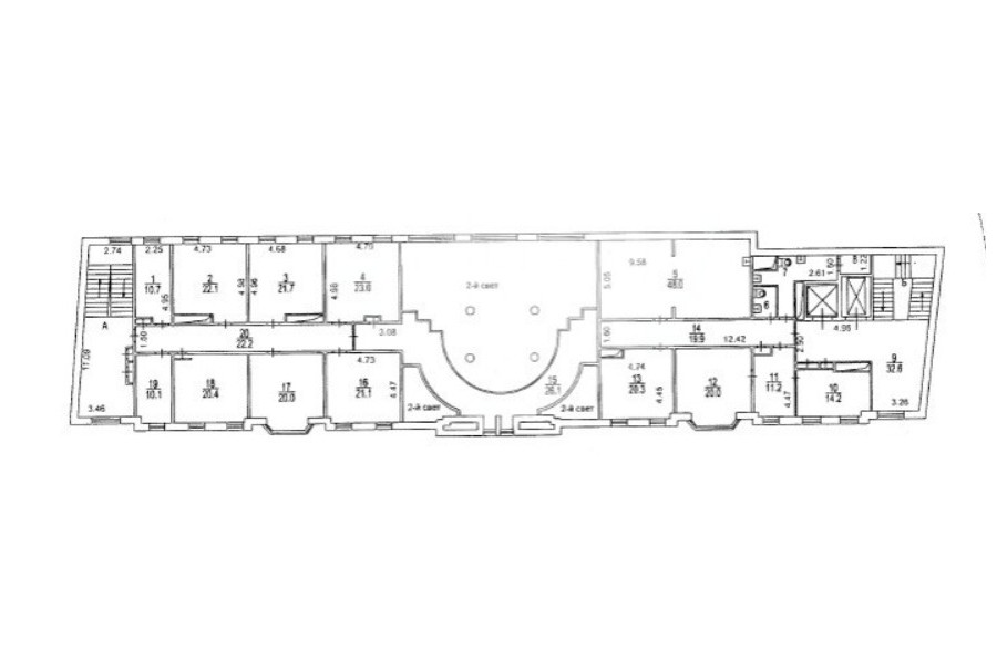
Площадь 425 м²
Состояние Готово к въезду
Планировка Кабинетная
Этаж 3

Описание

Преимущества
  • Класс B
  • Пешком от метро
  • Кондиционирование и вентиляция
Собственник сдает в прямую аренду офисное помещение класса B общей площадью 425 квадр. метров в бизнес-центре.

Москва, ЦАО, Никитский бульвар, 10

Удобное расположение в пределах Садового кольца:
- Возможность аренды парковочных мест.
- Ближайшее метро: от метро "Арбатская" всего 4 мин пешком

Офис класса B:
- Помещение готово к въезду
- Вентиляция: Приточно-вытяжная вентиляция
- Кондиционирование: центральное


Если предложение предварительно Вам подходит:

1. Мы подготовили презентацию с информацией о помещении, фотографиями и планировкой, чтобы Вы могли поделиться ей с коллегами или руководством. Попросите об этом нашего менеджера по телефону в объявлении.
2. Задайте любые вопросы менеджеру по телефону, готовы обсуждать любые предложения по финансовым условиям договора аренды.
3. Проводим показы ежедневно, договоримся на удобное для Вас время. Можем организовать виртуальный тур по офисному блоку.

Вы можете позвонить нам в любое время. Мы ответим на Ваши вопросы по будням до 19:00, а поздно вечером или в выходные сможем передать Ваш контакт нашему менеджеру.

Коммерческие условия

Арендная плата 885 420 ₽
Ставка арендной платы 25 000 ₽ м²/год
Эксплуатационные расходы Включены в ставку
Налоги С учётом НДС
Тип договора Прямая аренда
Срок договора Долгосрочный
Размер платежей 1 месяц
Обеспечительный платеж 1 месяц
Статус Сдан

О бизнес-центре

Класс B
Этажность 6
Лифты Есть
Общая площадь 4 724 м²
Год постройки 1998
Паркинг Наземный и подземный
Вентиляция приточно-вытяжная
Кондиционирование центральное
Телекоммуникации Интернет/Телефония

Расположение

Подробная презентацию по предложению

Собираете информацию? Получите подробную презентацию в удобном формате, чтобы обсудить вариант с коллегами или переслать руководству!

Похожие предложения в других зданиях

ВОЗМОЖНО ОСВОБОЖДЕНИЕ ID: 123191 Рейтинг5.6 КлассB

Москва, улица Новый Арбат, 2

Арбатская → 300 м
~ 3 мин
Арендная плата в месяц 796 875 ₽ 22 500 ₽/м² в год С учётом НДС
Характеристики 425 м² 4 этаж Готово к въезду
Преимущества
  • Класс B
  • Пешком от метро
  • Кондиционирование и вентиляция
  • Свой паркинг
  • Развитая инфраструктура

Предлагаем в долгосрочную аренду помещение под офис класса B площадью 425 кв.м в бизнес-центре... подробнее

Презентация по предложению

Собираете информацию? Получите подробную презентацию в удобном формате!

БЕЗ КОМИССИИ ID: 302046 Рейтинг6.4 КлассB

Москва, Скатертный переулок, 5 с1

Арбатская → 671 м
~ 7 мин
Арендная плата в месяц 833 333 ₽ 25 000 ₽/м² в год С учётом НДС
Характеристики 400 м² 1 - 5 этаж Готово к въезду
Преимущества
  • Класс B
  • Пешком от метро
  • Кондиционирование и вентиляция

Предлагаем в долгосрочную аренду офис класса B площадью 400 квадратных метров в бизнес-центре... подробнее

Презентация по предложению

Собираете информацию? Получите подробную презентацию в удобном формате!

БЕЗ КОМИССИИ ID: 181764 Рейтинг5.7 КлассB

Москва, Большая Никитская улица, 12

Арбатская → 600 м
~ 7 мин
Арендная плата в месяц 758 550 ₽ 23 400 ₽/м² в год С учётом НДС
Характеристики 389 м² 2 - 4 этаж Готово к въезду
Преимущества
  • Класс B
  • Пешком от метро
  • Развитая инфраструктура

Сдается в прямую аренду офис класса B площадью 389 квадр. метров в историческом бизнес-центре... подробнее

Презентация по предложению

Собираете информацию? Получите подробную презентацию в удобном формате!

БЕЗ КОМИССИИ ID: 171693 Рейтинг6.6 КлассB

Москва, Моховая улица, 11 с13

Охотный Ряд → 330 м
~ 3 мин
Арендная плата в месяц 699 200 ₽ 22 800 ₽/м² в год С учётом НДС
Характеристики 368 м² 2 - 3 этаж Готово к въезду
Преимущества
  • Класс B
  • Пешком от метро
  • Кондиционирование и вентиляция
  • Свой паркинг

Предлагается в долгосрочную прямую аренду офисный блок класса B общей площадью 368 кв.м в недавно отреконструированном бизнес-центре... подробнее

Презентация по предложению

Собираете информацию? Получите подробную презентацию в удобном формате!

БЕЗ КОМИССИИ ID: 72563 Рейтинг6.6 КлассB

Москва, улица Спиридоновка, 16

Арбатская → 1.21 км
~ 12 мин
Арендная плата в месяц 1 003 333 ₽ 28 000 ₽/м² в год С учётом НДС
Характеристики 430 м² 2 этаж Готово к въезду
Преимущества
  • Класс B
  • Пешком от метро
  • Кондиционирование и вентиляция
  • Свой паркинг

Предлагается в прямую аренду офис класса B площадью 430 квадратных метров в бизнес-центре... подробнее

Презентация по предложению

Собираете информацию? Получите подробную презентацию в удобном формате!

Посмотреть все похожие предложения
Отнеситесь рационально к процессу поиска нового офиса!

Просто ответьте на 3 вопроса, и наши специалисты сами предложат оптимальные варианты под ваш бюджет

.