8.2
Смотреть все фото
БЕЗ КОМИССИИ ID: 1292641 Рейтинг9.3 КлассА

Москва, Никольская улица, 10

Лубянка → 247 м
~ 2 мин
Арендная плата в месяц 4 975 400 ₽ 44 900 ₽/м² в год С учётом НДС

Презентация по предложению

Собираете информацию? Получите подробную презентацию в удобном формате!

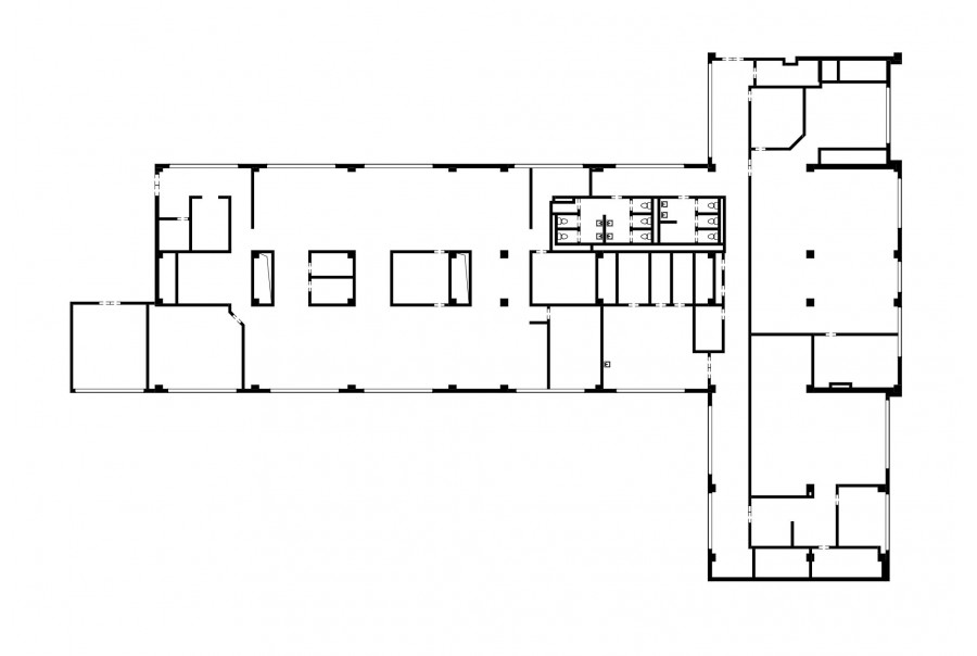
Площадь 1 329 м²
Состояние Готово к въезду
Планировка Смешанная
Этаж 3

Описание

Преимущества
  • Класс А
  • Пешком от метро
  • Кондиционирование и вентиляция
  • Свой паркинг
  • Развитая инфраструктура
Сдаем в долгосрочную прямую аренду офисный блок класса А площадью 1329 кв. метров в бизнес-центре "Никольская плаза".

Москва, ЦАО, Никольская улица, 10

Удобное расположение в пределах Садового кольца:
- Возможность аренды парковочных мест.
- Ближайшее метро: буквально 2 мин пешком от метро "Лубянка"

Офис класса А:
- Помещение с отделкой, готово к въезду
- Вентиляция: Приточно-вытяжная вентиляция
- Кондиционирование: центральное
- Презентабельный центральный ресепшн
- Круглосуточная охрана и видеонаблюдение
- Развитая инфраструктура внутри здания


Если данное предложение подходит Вашему запросу:

1. Получите презентацию в течение 10 минут в Whatsapp или на почту с фотографиями и планировкой, чтобы обсудить данный вариант с коллегами или переслать руководству. Для этого позвоните по телефону, указанному в объявлении.
2. Задайте любые вопросы менеджеру по телефону, готовы обсуждать любые предложения по финансовым условиям договора аренды.
3. Покажем помещение в удобное для Вас время с менеджером в здании, при необходимости подготовим виртуальный тур.

Вы можете позвонить нам в любое время. Мы ответим на Ваши вопросы по будням до 19:00, а поздно вечером или в выходные зафиксируем Ваш контакт и перезвоним в рабочее время.

Коммерческие условия

Арендная плата 4 523 110 ₽
Ставка арендной платы 44 900 ₽ м²/год
Эксплуатационные расходы Включены в ставку
Налоги С учётом НДС
Тип договора Прямая аренда
Срок договора от 11 месяцев
Размер платежей 1 месяц
Обеспечительный платеж 2 месяц
Статус Сдан

О бизнес-центре

Класс А
Этажность 7
Лифты Есть
Общая площадь 36 000 м²
Год постройки 2008
Паркинг Подземный
Вентиляция приточно-вытяжная
Кондиционирование центральное
Телекоммуникации Интернет/Телефония

Расположение

Подробная презентацию по предложению

Собираете информацию? Получите подробную презентацию в удобном формате, чтобы обсудить вариант с коллегами или переслать руководству!

Похожие предложения в других зданиях

БЕЗ КОМИССИИ ID: 242325 Рейтинг9.2 КлассА

Москва, Никольская улица, 11-13 с1

Площадь революции → 77 м
~ 1 мин
Арендная плата в месяц 5 091 833 ₽ 44 600 ₽/м² в год С учётом НДС
Характеристики 1 370 м² -1 - 4 этаж Готово к въезду
Преимущества
  • Класс А
  • Пешком от метро
  • Кондиционирование и вентиляция
  • Свой паркинг

Предлагается в прямую аренду помещение под офис класса А площадью 1370 квадр. метров в историческом недавно отреконструированном бизнес-центре "Никольский"... подробнее

Презентация по предложению

Собираете информацию? Получите подробную презентацию в удобном формате!

БЕЗ КОМИССИИ ID: 391173 Рейтинг9.3 КлассB+

Москва, Ветошный переулок, 13

Площадь революции → 385 м
~ 4 мин
Арендная плата в месяц 4 200 000 ₽ 42 000 ₽/м² в год С учётом НДС
Характеристики 1 200 м² 2 этаж Отделка под арендатора
Преимущества
  • Класс B+
  • Пешком от метро
  • Кондиционирование и вентиляция
  • Свой паркинг

Собственник сдает в долгосрочную прямую аренду помещение под офис класса B+ площадью 1200 кв. метров в бизнес-центре "Ветошный"... подробнее

Презентация по предложению

Собираете информацию? Получите подробную презентацию в удобном формате!

БЕЗ КОМИССИИ ID: 1242559 Рейтинг9.4 КлассА

Москва, улица Петровка, 7

Охотный Ряд → 590 м
~ 6 мин
Арендная плата в месяц 6 298 500 ₽ 49 400 ₽/м² в год С учётом НДС
Характеристики 1 530 м² 5 этаж Готово к въезду
Преимущества
  • Класс А
  • Пешком от метро
  • Кондиционирование и вентиляция
  • Свой паркинг
  • Развитая инфраструктура

Сдается в долгосрочную аренду офисный блок класса А площадью 1530 кв. метров в бизнес-центре "Женевский Дом"... подробнее

Презентация по предложению

Собираете информацию? Получите подробную презентацию в удобном формате!

БЕЗ КОМИССИИ ID: 1235910 Рейтинг8.2 КлассB+

Москва, Дмитровский переулок, 9

Охотный Ряд → 594 м
~ 6 мин
Арендная плата в месяц 4 648 067 ₽ 45 200 ₽/м² в год С учётом НДС
Характеристики 1 234 м² 2 - 3 этаж Готово к въезду
Преимущества
  • Класс B+
  • Пешком от метро
  • Кондиционирование и вентиляция
  • Свой паркинг
  • Несколько провайдеров связи

Предлагаем в долгосрочную аренду офисное помещение класса B+ площадью 1234 кв.м в бизнес-центре... подробнее

Презентация по предложению

Собираете информацию? Получите подробную презентацию в удобном формате!

БЕЗ КОМИССИИ ID: 306772 Рейтинг7.2 КлассА

Москва, Милютинский переулок, 12

Лубянка → 518 м
~ 5 мин
Арендная плата в месяц 4 780 000 ₽ 48 000 ₽/м² в год С учётом НДС
Характеристики 1 195 м² 3 этаж Готово к въезду
Преимущества
  • Класс А
  • Пешком от метро
  • Свой паркинг

Предлагается в долгосрочную прямую аренду помещение под офис класса А общей площадью 1195 квадратных метров в новом бизнес-центре... подробнее

>

Виртуальный тур

Презентация по предложению

Собираете информацию? Получите подробную презентацию в удобном формате!

Посмотреть все похожие предложения
Отнеситесь рационально к процессу поиска нового офиса!

Просто ответьте на 3 вопроса, и наши специалисты сами предложат оптимальные варианты под ваш бюджет

.