8.2
Смотреть все фото
БЕЗ КОМИССИИ ID: 1329051 Рейтинг4.0 КлассB
Бизнес-центр «Номан»

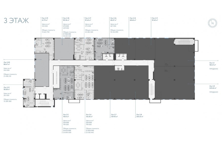
Продажа офиса 105 м²

Москва, Ставропольская улица, вл37

Люблино → 1.35 км
~ 13 мин
Стоимость 20.9 млн ₽ 199 000 ₽/м²

Презентация по предложению

Собираете информацию? Получите подробную презентацию в удобном формате!

Площадь 105 м²
Состояние Под отделку
Планировка Смешанная
Этаж 3

Описание

Преимущества
  • Класс B
  • Пешком от метро
Продается офисный блок площадью 105 кв.м в бизнес-центре "Номан".

Помещение можно адаптировать под любой бизнес благодаря функциональной планировке - идеальный баланс комфорта и экономической выгоды. Оптимальное решение для стабильного бизнеса или выгодных инвестиций.

Офис класса B:
- Помещение без отделки

О объекте:
Москва, ЮВАО, Ставропольская улица, вл37

Удобная локация здания:
- Ближайшее метро: от метро "Люблино" всего 13 мин пешком



Что еще можно узнать о предложении:

1. Мы подготовили презентацию с информацией о помещении, фотографиями и планировкой, чтобы Вы могли поделиться ей с коллегами или руководством. Попросите об этом нашего менеджера по телефону в объявлении.
2. Мы готовы ответить на любые Ваши вопросы о помещении и коммерческих условиях продажи.

Вы можете позвонить нам в любое время. Мы ответим на Ваши вопросы по будням до 19:00, а поздно вечером или в выходные сможем передать Ваш контакт нашему менеджеру.

О бизнес-центре

Класс B
Этажность 4
Лифты Нет
Общая площадь 13 400 м²
Паркинг Наземный
Вентиляция приточно-вытяжная
Кондиционирование сплит-системы
Телекоммуникации Интернет/Телефония

Расположение

Подробная презентацию по предложению

Собираете информацию? Получите подробную презентацию в удобном формате, чтобы обсудить вариант с коллегами или переслать руководству!

Похожие предложения в других зданиях

БЕЗ КОМИССИИ ID: 256189 Рейтинг7.0 КлассB

Москва, Краснодонская улица, 16А

Люблино → 892 м
~ 9 мин
Стоимость 95 000 250 ₽ 186 300 ₽/м²
Характеристики 510 м² 1 - 3 этаж Готово к въезду
Преимущества
  • Класс B
  • Пешком от метро
  • Кондиционирование и вентиляция
  • Свой паркинг
  • Развитая инфраструктура

В продаже офис общей площадью 510 кв.м в бизнес-центре. .. подробнее

Презентация по предложению

Собираете информацию? Получите подробную презентацию в удобном формате!

БЕЗ КОМИССИИ ID: 1319919 Рейтинг7.5 КлассА

Москва, Окская улица, 9

Окская → 553 м
~ 6 мин
Стоимость 48 480 000 ₽ 303 000 ₽/м²
Характеристики 160 м² 4 этаж Под отделку
Преимущества
  • Класс А
  • Пешком от метро
  • Новое строительство
  • Кондиционирование и вентиляция

В продаже офис общей площадью 160 кв. метров в строящемся бизнес-центре "Noon". Год ввода в экслуатацию 2026. .. подробнее

Презентация по предложению

Собираете информацию? Получите подробную презентацию в удобном формате!

БЕЗ КОМИССИИ ID: 1319909 Рейтинг7.5 КлассА

Москва, Окская улица, 9

Окская → 553 м
~ 6 мин
Стоимость 48 000 000 ₽ 300 000 ₽/м²
Характеристики 160 м² 3 этаж Под отделку
Преимущества
  • Класс А
  • Пешком от метро
  • Новое строительство
  • Кондиционирование и вентиляция

В продаже офисное помещение общей площадью 160 квадратных метров в строящемся бизнес-центре "Noon". Год ввода в экслуатацию 2026. .. подробнее

Презентация по предложению

Собираете информацию? Получите подробную презентацию в удобном формате!

БЕЗ КОМИССИИ ID: 1319932 Рейтинг7.5 КлассА

Москва, Окская улица, 9

Окская → 553 м
~ 6 мин
Стоимость 47 124 000 ₽ 306 000 ₽/м²
Характеристики 154 м² 5 этаж Под отделку
Преимущества
  • Класс А
  • Пешком от метро
  • Новое строительство
  • Кондиционирование и вентиляция

В продаже офисный блок площадью 154 квадратных метров в строящемся бизнес-центре "Noon". Год ввода в экслуатацию 2026. .. подробнее

Презентация по предложению

Собираете информацию? Получите подробную презентацию в удобном формате!

БЕЗ КОМИССИИ ID: 1319893 Рейтинг7.5 КлассА

Москва, Окская улица, 9

Окская → 553 м
~ 6 мин
Стоимость 46 629 000 ₽ 297 000 ₽/м²
Характеристики 157 м² 2 этаж Под отделку
Преимущества
  • Класс А
  • Пешком от метро
  • Новое строительство
  • Кондиционирование и вентиляция

Продается офис общей площадью 157 квадратных метров в строящемся бизнес-центре "Noon". Год ввода в экслуатацию 2026. .. подробнее

Презентация по предложению

Собираете информацию? Получите подробную презентацию в удобном формате!

Посмотреть все похожие предложения
Отнеситесь рационально к процессу поиска нового офиса!

Просто ответьте на 3 вопроса, и наши специалисты сами предложат оптимальные варианты под ваш бюджет