8.2
Смотреть все фото
БЕЗ КОМИССИИ ID: 295829 Рейтинг7.5 КлассB
Бизнес-центр «Новь»

Аренда офиса 3345 м²

Москва, Нижняя Красносельская улица, 40/12 к1

Красносельская → 788 м
~ 8 мин
Арендная плата в месяц 7 526 200 ₽ 27 000 ₽/м² в год С учётом НДС

Презентация по предложению

Собираете информацию? Получите подробную презентацию в удобном формате!

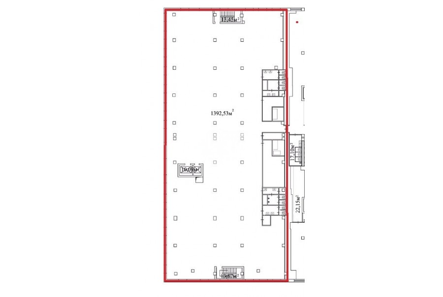
Площадь 3 345 м²
Состояние Готово к въезду
Планировка Смешанная
Этаж 2

Описание

Преимущества
  • Класс B
  • Пешком от метро
  • Кондиционирование и вентиляция
  • Свой паркинг
Собственник сдает в долгосрочную аренду офисное помещение класса B площадью 3345 кв. метров в бизнес-центре "Новь".

Москва, ЦАО, Нижняя Красносельская улица, 40/12 к1

Удобная локация здания:
- Автомобиль: близость транспортных магистралей, таких как Русаковская улица, Третье Транспортное Кольцо и других.
- Возможность аренды парковочных мест.
- Ближайшее метро: от метро "Красносельская" всего 8 мин пешком

Офис класса B:
- Офис с отделкой, полностью готов к аренде
- Вентиляция: Приточно-вытяжная вентиляция
- Кондиционирование: центральное

Возможность заключения контракта в соответствии с 44ФЗ по госзакупкам.

Если данное предложение подходит Вашему запросу:

1. Получите презентацию в течение 10 минут в Whatsapp или на почту с фотографиями и планировкой, чтобы обсудить данный вариант с коллегами или переслать руководству. Для этого позвоните по телефону, указанному в объявлении.
2. Ответим на любые Ваши вопросы, готовы обсуждать любые предложения по коммерческим условиям аренды помещения.
3. Оперативно организуем просмотр помещения с менеджерами на объекте или подготовим виртуальный тур.

Звоните нам в любое время. По будням мы сможем ответить на Ваши вопросы до 19:00. В выходные или вечернее время мы передадим Ваш контакт нашему менеджеру по аренде.

Коммерческие условия

Арендная плата 5 018 060 ₽
Ставка арендной платы 27 000 ₽ м²/год
Эксплуатационные расходы Включены в ставку
Налоги С учётом НДС
Тип договора Прямая аренда
Срок договора от 11 месяцев
Размер платежей 1 месяц
Обеспечительный платеж 1 месяц
Статус Сдан

О бизнес-центре

Класс B
Этажность 10
Лифты Есть
Общая площадь 2 150 м²
Год постройки 2007
Паркинг Наземный
Вентиляция приточно-вытяжная
Кондиционирование центральное
Телекоммуникации Интернет/Телефония

Расположение

Подробная презентацию по предложению

Собираете информацию? Получите подробную презентацию в удобном формате, чтобы обсудить вариант с коллегами или переслать руководству!

Похожие предложения в других зданиях

БЕЗ КОМИССИИ ID: 75712 Рейтинг8.6 КлассА

Москва, Ольховская улица, 4 к1

Комсомольская → 874 м
~ 9 мин
Арендная плата в месяц 6 208 083 ₽ 23 000 ₽/м² в год С учётом НДС
Характеристики 3 239 м² 1 - 2 этаж Готово к въезду
Преимущества
  • Класс А
  • Пешком от метро
  • Кондиционирование и вентиляция
  • Свой паркинг

Сдается в прямую аренду офисное помещение класса А площадью 3239 кв. метров в бизнес-центре "Мельникофф Хаус"... подробнее

Презентация по предложению

Собираете информацию? Получите подробную презентацию в удобном формате!

БЕЗ КОМИССИИ ID: 101862 Рейтинг8.3 КлассА

Москва, Нижняя Красносельская улица, 39 с1

Бауманская → 425 м
~ 4 мин
Арендная плата в месяц 7 352 083 ₽ 25 000 ₽/м² в год С учётом НДС
Характеристики 3 529 м² 6 - 9 этаж Готово к въезду
Преимущества
  • Класс А
  • Пешком от метро
  • Кондиционирование и вентиляция
  • Свой паркинг
  • Развитая инфраструктура

Сдается в прямую аренду офис класса А площадью 3529 квадр. метров в бизнес-центре "PALLAU-NK"... подробнее

Презентация по предложению

Собираете информацию? Получите подробную презентацию в удобном формате!

БЕЗ КОМИССИИ ID: 76034 Рейтинг8.3 КлассА

Москва, Нижняя Красносельская улица, 39 с1

Бауманская → 425 м
~ 4 мин
Арендная плата в месяц 7 138 833 ₽ 29 000 ₽/м² в год С учётом НДС
Характеристики 2 954 м² 7 - 9 этаж Готово к въезду
Преимущества
  • Класс А
  • Пешком от метро
  • Кондиционирование и вентиляция
  • Свой паркинг
  • Развитая инфраструктура

Собственник сдает в долгосрочную аренду помещение под офис класса А общей площадью 2954 кв. метров в бизнес-центре "PALLAU-NK"... подробнее

Презентация по предложению

Собираете информацию? Получите подробную презентацию в удобном формате!

БЕЗ КОМИССИИ ID: 77947 Рейтинг8.2 КлассB+

Москва, Спартаковский переулок, 2 с1

Красносельская → 662 м
~ 7 мин
Арендная плата в месяц 7 325 000 ₽ 29 300 ₽/м² в год С учётом НДС
Характеристики 3 000 м² 1 - 3 этаж Готово к въезду
Преимущества
  • Класс B+
  • Пешком от метро
  • Кондиционирование и вентиляция
  • Свой паркинг
  • Развитая инфраструктура

Собственник сдает в прямую аренду помещение под офис класса B+ общей площадью 3000 квадр. метров в новом бизнес-центре "Платформа"... подробнее

Презентация по предложению

Собираете информацию? Получите подробную презентацию в удобном формате!

БЕЗ КОМИССИИ ID: 544242 Рейтинг8.4 КлассB+

Москва, Токмаков переулок, 5 с1

Бауманская → 942 м
~ 9 мин
Арендная плата в месяц 8 708 333 ₽ 27 500 ₽/м² в год С учётом НДС
Характеристики 3 800 м² -1 - 7 этаж Готово к въезду
Преимущества
  • Класс B+
  • Пешком от метро
  • Кондиционирование и вентиляция
  • Свой паркинг

Предлагается в долгосрочную прямую аренду офисный блок класса B+ общей площадью 3800 кв. метров в бизнес-центре... подробнее

Презентация по предложению

Собираете информацию? Получите подробную презентацию в удобном формате!

Посмотреть все похожие предложения
Отнеситесь рационально к процессу поиска нового офиса!

Просто ответьте на 3 вопроса, и наши специалисты сами предложат оптимальные варианты под ваш бюджет

.