8.2
Смотреть все фото
БЕЗ КОМИССИИ ID: 302041 Рейтинг5.5 КлассB

Москва, Новочерёмушкинская улица, 25

Академическая → 1.06 км
~ 11 мин
Арендная плата в месяц 980 000 ₽ 12 000 ₽/м² в год С учётом НДС

Презентация по предложению

Собираете информацию? Получите подробную презентацию в удобном формате!

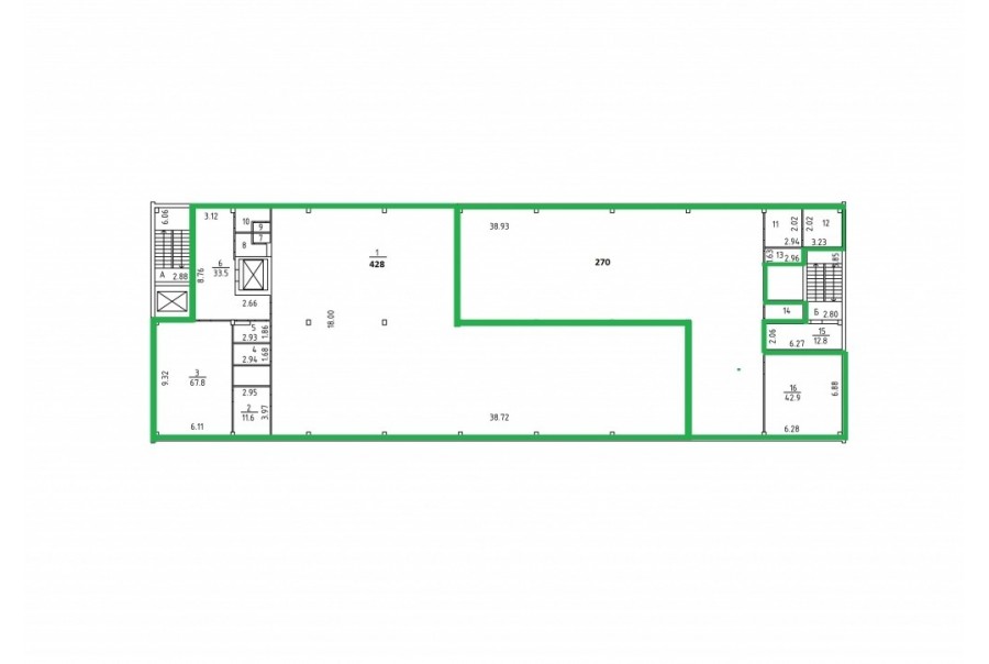
Площадь 980 м²
Состояние Готово к въезду
Планировка Открытая
Этаж 3

Описание

Преимущества
  • Класс B
  • Пешком от метро
  • Кондиционирование и вентиляция
Сдается в прямую аренду офис класса B площадью 980 кв. метров в бизнес-центре.

Москва, ЮЗАО, Новочерёмушкинская улица, 25

Удобная локация здания:
- Автомобиль: близость транспортных магистралей, таких как Севастопольский проспект, Профсоюзная улица и других.
- Ближайшее метро: от метро "Академическая" всего 10 мин пешком

Офис класса B:
- Помещение с отделкой, готово к въезду
- Кондиционирование: центральное


Если данное предложение подходит Вашему запросу:

1. Мы отправим Вам подробную презентацию с планировкой и фотографиями в течение 10 минут после звонка, чтобы Вы могли поделиться информацией с руководством или с коллегами.
2. Мы готовы ответить на любые Ваши вопросы о помещении и коммерческих условиях аренды.
3. Проводим показы ежедневно, договоримся на удобное для Вас время. Можем организовать виртуальный тур по офисному блоку.

Звоните нам в любое время. По будням мы сможем ответить на Ваши вопросы до 19:00. В выходные или вечернее время мы передадим Ваш контакт нашему менеджеру по аренде.

Коммерческие условия

Арендная плата 980 000 ₽
Ставка арендной платы 12 000 ₽ м²/год
Эксплуатационные расходы Включены в ставку
Налоги С учётом НДС
Тип договора Прямая аренда
Срок договора от 11 месяцев
Размер платежей 1 месяц
Обеспечительный платеж 1 месяц
Статус Сдан

О бизнес-центре

Класс B
Этажность 6
Лифты Есть
Общая площадь 6 486 м²
Год постройки 1978
Паркинг Стихийный
Вентиляция естественная
Кондиционирование центральное
Телекоммуникации Интернет/Телефония

Расположение

Подробная презентацию по предложению

Собираете информацию? Получите подробную презентацию в удобном формате, чтобы обсудить вариант с коллегами или переслать руководству!

Похожие предложения в других зданиях

БЕЗ КОМИССИИ ID: 234863 Рейтинг5.8 КлассB

Москва, улица Шверника, 4 с1

Академическая → 718 м
~ 7 мин
Арендная плата в месяц 1 000 000 ₽ 12 000 ₽/м² в год С учётом НДС
Характеристики 1 000 м² 6 - 7 этаж Готово к въезду
Преимущества
  • Класс B
  • Пешком от метро
  • Кондиционирование и вентиляция
  • Свой паркинг

Предлагаем в долгосрочную аренду помещение под офис класса B общей площадью 1000 кв. метров в бизнес-центре... подробнее

Презентация по предложению

Собираете информацию? Получите подробную презентацию в удобном формате!

БЕЗ КОМИССИИ ID: 81223 Рейтинг8.0 КлассB

Москва, Зюзинская улица, 6 к2

Зюзино → 1.65 км
~ 17 мин
Арендная плата в месяц 933 333 ₽ 11 200 ₽/м² в год С учётом НДС
Характеристики 1 000 м² 2 этаж Готово к въезду
Преимущества
  • Класс B
  • Пешком от метро
  • Кондиционирование и вентиляция
  • Свой паркинг

Сдается в долгосрочную аренду помещение под офис класса B площадью 1000 квадр. метров в бизнес-центре... подробнее

Презентация по предложению

Собираете информацию? Получите подробную презентацию в удобном формате!

БЕЗ КОМИССИИ ID: 285704 Рейтинг7.4 КлассB

Москва, Нагорный проезд, 10 с3

Верхние Котлы → 842 м
~ 8 мин
Арендная плата в месяц 897 000 ₽ 12 000 ₽/м² в год С учётом НДС
Характеристики 897 м² 1 - 2 этаж Готово к въезду
Преимущества
  • Класс B
  • Пешком от метро
  • Кондиционирование и вентиляция
  • Свой паркинг
  • Развитая инфраструктура

Предлагается в долгосрочную прямую аренду офисное помещение класса B площадью 897 кв. метров в бизнес-центре... подробнее

Презентация по предложению

Собираете информацию? Получите подробную презентацию в удобном формате!

БЕЗ КОМИССИИ ID: 1281424 Рейтинг5.5 КлассB

Москва, Нагорный проезд, 7

Верхние Котлы → 905 м
~ 9 мин
Арендная плата в месяц 995 400 ₽ 10 800 ₽/м² в год С учётом НДС
Характеристики 1 106 м² 2 - 7 этаж Готово к въезду
Преимущества
  • Класс B
  • Пешком от метро
  • Кондиционирование и вентиляция
  • Свой паркинг
  • Несколько провайдеров связи
  • Развитая инфраструктура

Предлагается в долгосрочную прямую аренду офисное помещение класса B общей площадью 1106 кв.м в бизнес-центре... подробнее

Презентация по предложению

Собираете информацию? Получите подробную презентацию в удобном формате!

БЕЗ КОМИССИИ ID: 1291322 Рейтинг5.5 КлассB

Москва, Нагорный проезд, 7

Верхние Котлы → 905 м
~ 9 мин
Арендная плата в месяц 857 467 ₽ 10 900 ₽/м² в год С учётом НДС
Характеристики 944 м² 2 - 7 этаж Готово к въезду
Преимущества
  • Класс B
  • Пешком от метро
  • Кондиционирование и вентиляция
  • Свой паркинг
  • Несколько провайдеров связи
  • Развитая инфраструктура

Сдается в долгосрочную аренду офисный блок класса B общей площадью 944 квадр. метров в бизнес-центре... подробнее

Презентация по предложению

Собираете информацию? Получите подробную презентацию в удобном формате!

Посмотреть все похожие предложения
Отнеситесь рационально к процессу поиска нового офиса!

Просто ответьте на 3 вопроса, и наши специалисты сами предложат оптимальные варианты под ваш бюджет

.