8.2

Виртуальный тур

Смотреть все фото
БЕЗ КОМИССИИ ID: 237779 Рейтинг8.2 КлассB+
Бизнес-центр «Новоспасский»

Аренда офиса 296 м²

Москва, Дербеневская набережная, 7 с22

Павелецкая → 1.74 км
~ 17 мин
Арендная плата в месяц 616 700 ₽ 25 000 ₽/м² в год С учётом НДС

Презентация по предложению

Собираете информацию? Получите подробную презентацию в удобном формате!

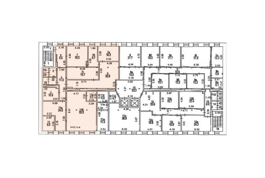
Площадь 296 м²
Состояние Готово к въезду
Планировка Кабинетная
Этаж 5

Описание

Преимущества
  • Класс B+
  • Пешком от метро
  • Кондиционирование и вентиляция
  • Свой паркинг
  • Несколько провайдеров связи
  • Развитая инфраструктура
Предлагаем в долгосрочную прямую аренду офисное помещение класса B+ площадью 296 кв.м в недавно отреконструированном бизнес-центре "Новоспасский".

Москва, ЮАО, Дербеневская набережная, 7 с22

Характеристики местоположения:
- Возможность аренды парковочных мест.
- Ближайшее метро: от метро "Павелецкая" можно добраться пешком или на городском транспорте

Офис класса B+:
- Офис с отделкой, полностью готов к аренде
- Вентиляция: Приточно-вытяжная вентиляция
- Кондиционирование: центральное
- Презентабельный центральный ресепшн
- Круглосуточная охрана и видеонаблюдение
- Развитая инфраструктура внутри здания


Что еще можно узнать о предложении:

1. Мы подготовили презентацию с информацией о помещении, фотографиями и планировкой, чтобы Вы могли поделиться ей с коллегами или руководством. Попросите об этом нашего менеджера по телефону в объявлении.
2. Задайте любые вопросы менеджеру по телефону, готовы обсуждать любые предложения по финансовым условиям договора аренды.
3.

Звоните нам в любое время. По будням мы сможем ответить на Ваши вопросы до 19:00. В выходные или вечернее время мы передадим Ваш контакт нашему менеджеру по аренде.

Коммерческие условия

Арендная плата 616 670 ₽
Ставка арендной платы 25 000 ₽ м²/год
Эксплуатационные расходы Включены в ставку
Налоги С учётом НДС
Тип договора Прямая аренда
Срок договора от 11 месяцев
Размер платежей 1 месяц
Обеспечительный платеж 2 месяц
Статус Сдан

О бизнес-центре

Класс B+
Этажность 6
Лифты Есть
Общая площадь 73 190 м²
Год постройки 2006
Паркинг Наземный
Вентиляция приточно-вытяжная
Кондиционирование центральное
Телекоммуникации Интернет/Телефония

Расположение

Подробная презентацию по предложению

Собираете информацию? Получите подробную презентацию в удобном формате, чтобы обсудить вариант с коллегами или переслать руководству!

Похожие предложения в других зданиях

БЕЗ КОМИССИИ ID: 1321472 Рейтинг5.5 КлассB

Москва, Дербеневская улица, 20

Серпуховская → 1.72 км
~ 17 мин
Арендная плата в месяц 668 000 ₽ 24 000 ₽/м² в год С учётом НДС
Характеристики 334 м² 4 этаж Готово к въезду
Преимущества
  • Класс B
  • Пешком от метро
  • Кондиционирование и вентиляция
  • Развитая инфраструктура

Предлагаем в долгосрочную прямую аренду офисное помещение класса B общей площадью 334 кв.м в историческом недавно отреконструированном бизнес-центре... подробнее

Презентация по предложению

Собираете информацию? Получите подробную презентацию в удобном формате!

БЕЗ КОМИССИИ ID: 1102267 Рейтинг7.6 КлассB+

Москва, Летниковская улица, 10 с1

Павелецкая → 1.04 км
~ 10 мин
Арендная плата в месяц 550 000 ₽ 22 000 ₽/м² в год С учётом НДС
Характеристики 300 м² 6 этаж Готово к въезду
Преимущества
  • Класс B+
  • Пешком от метро
  • Кондиционирование и вентиляция
  • Свой паркинг

Сдается в долгосрочную аренду помещение под офис класса B+ общей площадью 300 кв.м в бизнес-центре "Святогор-1"... подробнее

Презентация по предложению

Собираете информацию? Получите подробную презентацию в удобном формате!

БЕЗ КОМИССИИ ID: 1246979 Рейтинг8.1 КлассB+

Москва, Летниковская улица, 10 с2

Павелецкая → 1.02 км
~ 10 мин
Арендная плата в месяц 554 583 ₽ 24 200 ₽/м² в год С учётом НДС
Характеристики 275 м² 6 этаж Готово к въезду
Преимущества
  • Класс B+
  • Пешком от метро
  • Кондиционирование и вентиляция
  • Свой паркинг
  • Развитая инфраструктура

Предлагаем в долгосрочную прямую аренду офисное помещение класса B+ общей площадью 275 кв.м в бизнес-центре "Святогор-2"... подробнее

>

Виртуальный тур

Презентация по предложению

Собираете информацию? Получите подробную презентацию в удобном формате!

БЕЗ КОМИССИИ ID: 1308424 Рейтинг6.8 КлассB

Москва, Дубининская улица, 33Б

Павелецкая → 872 м
~ 9 мин
Арендная плата в месяц 534 917 ₽ 24 500 ₽/м² в год С учётом НДС
Характеристики 262 м² 2 этаж Готово к въезду
Преимущества
  • Класс B
  • Пешком от метро
  • Кондиционирование и вентиляция
  • Свой паркинг

Предлагаем в долгосрочную прямую аренду офисный блок класса B площадью 262 кв. метров в недавно отреконструированном бизнес-центре... подробнее

>

Виртуальный тур

Презентация по предложению

Собираете информацию? Получите подробную презентацию в удобном формате!

БЕЗ КОМИССИИ ID: 1266140 Рейтинг8.6 КлассА

Москва, Кожевническая улица, 14

Павелецкая → 722 м
~ 7 мин
Арендная плата в месяц 796 163 ₽ 28 400 ₽/м² в год С учётом НДС
Характеристики 337 м² 4 этаж Готово к въезду
Преимущества
  • Класс А
  • Пешком от метро
  • Кондиционирование и вентиляция
  • Свой паркинг
  • Несколько провайдеров связи
  • Развитая инфраструктура

Сдается в долгосрочную аренду офисное помещение класса А площадью 337 квадр. метров в бизнес-центре "Блэк энд Вайт"... подробнее

>

Виртуальный тур

Презентация по предложению

Собираете информацию? Получите подробную презентацию в удобном формате!

Посмотреть все похожие предложения
Отнеситесь рационально к процессу поиска нового офиса!

Просто ответьте на 3 вопроса, и наши специалисты сами предложат оптимальные варианты под ваш бюджет

.