8.2

Виртуальный тур

Смотреть все фото
БЕЗ КОМИССИИ ID: 301119 Рейтинг8.2 КлассB+
Бизнес-центр «Новоспасский»

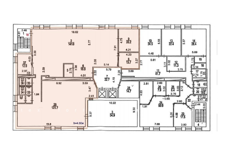
Аренда офиса 406 м²

Москва, Дербеневская набережная, 7 с22

Павелецкая → 1.74 км
~ 17 мин
Арендная плата в месяц 879 700 ₽ 26 000 ₽/м² в год С учётом НДС

Презентация по предложению

Собираете информацию? Получите подробную презентацию в удобном формате!

Площадь 406 м²
Состояние Готово к въезду
Планировка Смешанная
Этаж 6

Описание

Преимущества
  • Класс B+
  • Пешком от метро
  • Кондиционирование и вентиляция
  • Свой паркинг
  • Несколько провайдеров связи
  • Развитая инфраструктура
Предлагается в долгосрочную аренду офисное помещение класса B+ общей площадью 406 квадр. метров в недавно отреконструированном бизнес-центре "Новоспасский".

Москва, ЮАО, Дербеневская набережная, 7 с22

Характеристики местоположения:
- Возможность аренды парковочных мест.
- Ближайшее метро: от метро "Павелецкая" можно добраться пешком или на городском транспорте

Офис класса B+:
- Офис с отделкой, полностью готов к аренде
- Вентиляция: Приточно-вытяжная вентиляция
- Кондиционирование: центральное
- Презентабельный центральный ресепшн
- Круглосуточная охрана и видеонаблюдение
- Развитая инфраструктура внутри здания


Что еще можно узнать о предложении:

1. Получите презентацию в течение 10 минут в Whatsapp или на почту с фотографиями и планировкой, чтобы обсудить данный вариант с коллегами или переслать руководству. Для этого позвоните по телефону, указанному в объявлении.
2. Мы готовы ответить на любые Ваши вопросы о помещении и коммерческих условиях аренды.
3.

Звоните нам в любое время. По будням мы сможем ответить на Ваши вопросы до 19:00. В выходные или вечернее время мы передадим Ваш контакт нашему менеджеру по аренде.

Коммерческие условия

Арендная плата 879 670 ₽
Ставка арендной платы 26 000 ₽ м²/год
Эксплуатационные расходы Включены в ставку
Налоги С учётом НДС
Тип договора Прямая аренда
Срок договора от 11 месяцев
Размер платежей 1 месяц
Обеспечительный платеж 2 месяц
Статус Сдан

О бизнес-центре

Класс B+
Этажность 6
Лифты Есть
Общая площадь 73 190 м²
Год постройки 2006
Паркинг Наземный
Вентиляция приточно-вытяжная
Кондиционирование центральное
Телекоммуникации Интернет/Телефония

Расположение

Подробная презентацию по предложению

Собираете информацию? Получите подробную презентацию в удобном формате, чтобы обсудить вариант с коллегами или переслать руководству!

Похожие предложения в других зданиях

ВОЗМОЖНО ОСВОБОЖДЕНИЕ ID: 239285 Рейтинг8.4 КлассА

Москва, Летниковская улица, 10 с5

Павелецкая → 1.17 км
~ 12 мин
Арендная плата в месяц 782 167 ₽ 26 000 ₽/м² в год С учётом НДС
Характеристики 361 м² 12 этаж Готово к въезду
Преимущества
  • Класс А
  • Пешком от метро
  • Кондиционирование и вентиляция
  • Свой паркинг
  • Развитая инфраструктура

Предлагаем в прямую аренду помещение под офис класса А площадью 361 квадратных метров в бизнес-центре "Святогор-5"... подробнее

Презентация по предложению

Собираете информацию? Получите подробную презентацию в удобном формате!

БЕЗ КОМИССИИ ID: 1316261 Рейтинг6.8 КлассB

Москва, Дубининская улица, 33Б

Павелецкая → 872 м
~ 9 мин
Арендная плата в месяц 888 125 ₽ 24 500 ₽/м² в год С учётом НДС
Характеристики 435 м² 3 этаж Готово к въезду
Преимущества
  • Класс B
  • Пешком от метро
  • Кондиционирование и вентиляция
  • Свой паркинг

Сдается в долгосрочную прямую аренду офисный блок класса B общей площадью 435 квадр. метров в недавно отреконструированном бизнес-центре... подробнее

>

Виртуальный тур

Презентация по предложению

Собираете информацию? Получите подробную презентацию в удобном формате!

ВОЗМОЖНО ОСВОБОЖДЕНИЕ ID: 1309265 Рейтинг6.8 КлассB

Москва, Дубининская улица, 33Б

Павелецкая → 872 м
~ 9 мин
Арендная плата в месяц 750 313 ₽ 25 700 ₽/м² в год С учётом НДС
Характеристики 350 м² 2 этаж Готово к въезду
Преимущества
  • Класс B
  • Пешком от метро
  • Кондиционирование и вентиляция
  • Свой паркинг

Сдается в долгосрочную аренду помещение под офис класса B общей площадью 350 кв.м в недавно отреконструированном бизнес-центре... подробнее

>

Виртуальный тур

Презентация по предложению

Собираете информацию? Получите подробную презентацию в удобном формате!

БЕЗ КОМИССИИ ID: 228493 Рейтинг9.4 КлассА

Москва, Шарикоподшипниковская улица, 5

Дубровка → 898 м
~ 9 мин
Арендная плата в месяц 998 833 ₽ 26 000 ₽/м² в год С учётом НДС
Характеристики 461 м² 1 этаж Под отделку
Преимущества
  • Класс А
  • Пешком от метро
  • Кондиционирование и вентиляция
  • Свой паркинг

Сдается в долгосрочную прямую аренду офисный блок класса А площадью 461 кв. метров в бизнес-центре "Dominion Tower"... подробнее

Презентация по предложению

Собираете информацию? Получите подробную презентацию в удобном формате!

БЕЗ КОМИССИИ ID: 1175898 Рейтинг7.3 КлассB+

Москва, Кожевнический проезд, 1

Павелецкая → 644 м
~ 6 мин
Арендная плата в месяц 709 167 ₽ 23 000 ₽/м² в год С учётом НДС
Характеристики 370 м² 1 этаж Готово к въезду
Преимущества
  • Класс B+
  • Пешком от метро
  • Кондиционирование и вентиляция
  • Свой паркинг
  • Несколько провайдеров связи

Предлагаем в аренду офисное помещение класса B+ общей площадью 370 кв. метров в историческом бизнес-центре "Ривер Плэйс"... подробнее

>

Виртуальный тур

Презентация по предложению

Собираете информацию? Получите подробную презентацию в удобном формате!

Посмотреть все похожие предложения
Отнеситесь рационально к процессу поиска нового офиса!

Просто ответьте на 3 вопроса, и наши специалисты сами предложат оптимальные варианты под ваш бюджет

.