8.2
Смотреть все фото
БЕЗ КОМИССИИ ID: 290118 Рейтинг8.2 КлассB+
Бизнес-центр «Новоспасский»

Аренда офиса 9383 м²

Москва, Дербеневская набережная, 7 с22

Павелецкая → 1.74 км
~ 17 мин
Арендная плата в месяц 15 638 300 ₽ 20 000 ₽/м² в год С учётом НДС

Презентация по предложению

Собираете информацию? Получите подробную презентацию в удобном формате!

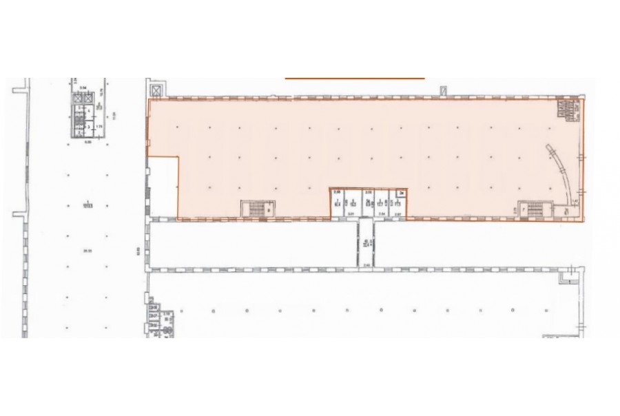
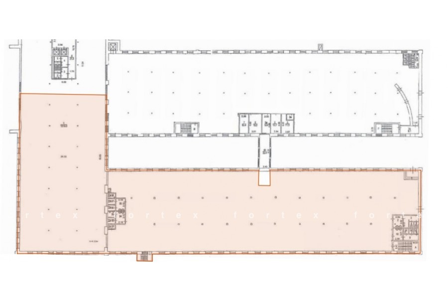
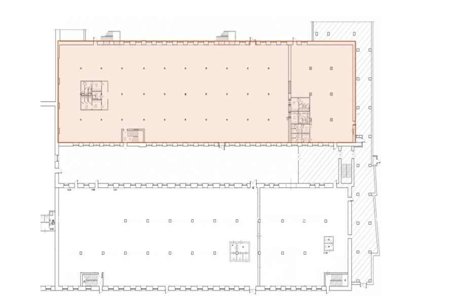
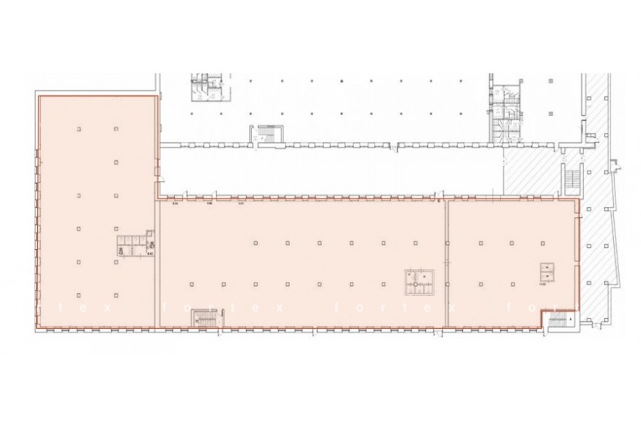
Площадь 9 383 м²
Состояние Под отделку
Планировка Смешанная
Этаж 1 - 3

Описание

Преимущества
  • Класс B+
  • Пешком от метро
  • Кондиционирование и вентиляция
  • Свой паркинг
  • Несколько провайдеров связи
  • Развитая инфраструктура
Сдается в долгосрочную аренду офисный блок класса B+ общей площадью 9383 кв.м в недавно отреконструированном бизнес-центре "Новоспасский".

Москва, ЮАО, Дербеневская набережная, 7 с22

Характеристики местоположения:
- Возможность аренды парковочных мест.
- Ближайшее метро: от метро "Павелецкая" можно добраться пешком или на городском транспорте

Офис класса B+:
- Офис в состоянии shell & core
- Вентиляция: Приточно-вытяжная вентиляция
- Кондиционирование: центральное
- Круглосуточная охрана и видеонаблюдение
- Развитая инфраструктура внутри здания

Возможность заключения контракта в соответствии с 44ФЗ по госзакупкам.

Если предложение предварительно Вам подходит:

1. Мы отправим Вам подробную презентацию с планировкой и фотографиями в течение 10 минут после звонка, чтобы Вы могли поделиться информацией с руководством или с коллегами.
2. Ответим на любые Ваши вопросы, готовы обсуждать любые предложения по коммерческим условиям аренды помещения.
3. Проводим показы ежедневно, договоримся на удобное для Вас время. Можем организовать виртуальный тур по офисному блоку.

Звоните нам в любое время. По будням мы сможем ответить на Ваши вопросы до 19:00. В выходные или вечернее время мы передадим Ваш контакт нашему менеджеру по аренде.

Коммерческие условия

Арендная плата 15 638 330 ₽
Ставка арендной платы 20 000 ₽ м²/год
Эксплуатационные расходы Включены в ставку
Налоги С учётом НДС
Тип договора Прямая аренда
Срок договора от 11 месяцев
Размер платежей 1 месяц
Обеспечительный платеж 1 месяц
Статус Сдан

О бизнес-центре

Класс B+
Этажность 6
Лифты Есть
Общая площадь 73 190 м²
Год постройки 2006
Паркинг Наземный
Вентиляция приточно-вытяжная
Кондиционирование центральное
Телекоммуникации Интернет/Телефония

Расположение

Подробная презентацию по предложению

Собираете информацию? Получите подробную презентацию в удобном формате, чтобы обсудить вариант с коллегами или переслать руководству!

Похожие предложения в других зданиях

БЕЗ КОМИССИИ ID: 14943 Рейтинг9.1 КлассА

Москва, Озерковская набережная, 24

Новокузнецкая → 740 м
~ 9 мин
Арендная плата в месяц 14 940 625 ₽ 17 500 ₽/м² в год С учётом НДС
Характеристики 10 245 м² 4 - 8 этаж Под отделку
Преимущества
  • Класс А
  • Пешком от метро
  • Кондиционирование и вентиляция
  • Свой паркинг

Собственник сдает в долгосрочную аренду офис класса А общей площадью 10245 кв.м в бизнес-центре "Аквамарин III"... подробнее

Презентация по предложению

Собираете информацию? Получите подробную презентацию в удобном формате!

БЕЗ КОМИССИИ ID: 254858 Рейтинг8.2 КлассB+

Москва, Дербеневская набережная, 7 с22

Павелецкая → 1.74 км
~ 17 мин
Арендная плата в месяц 16 423 875 ₽ 19 500 ₽/м² в год С учётом НДС
Характеристики 10 107 м² 1 - 3 этаж Под отделку
Преимущества
  • Класс B+
  • Пешком от метро
  • Кондиционирование и вентиляция
  • Свой паркинг
  • Несколько провайдеров связи
  • Развитая инфраструктура

Предлагается в долгосрочную прямую аренду помещение под офис класса B+ площадью 10107 кв.м в недавно отреконструированном бизнес-центре "Новоспасский"... подробнее

Презентация по предложению

Собираете информацию? Получите подробную презентацию в удобном формате!

Посмотреть все похожие предложения
Отнеситесь рационально к процессу поиска нового офиса!

Просто ответьте на 3 вопроса, и наши специалисты сами предложат оптимальные варианты под ваш бюджет

.