8.2

Виртуальный тур

Смотреть все фото
ВОЗМОЖНО ОСВОБОЖДЕНИЕ ID: 488346 Рейтинг8.6 КлассА
Бизнес-центр «Ньютон Плаза»

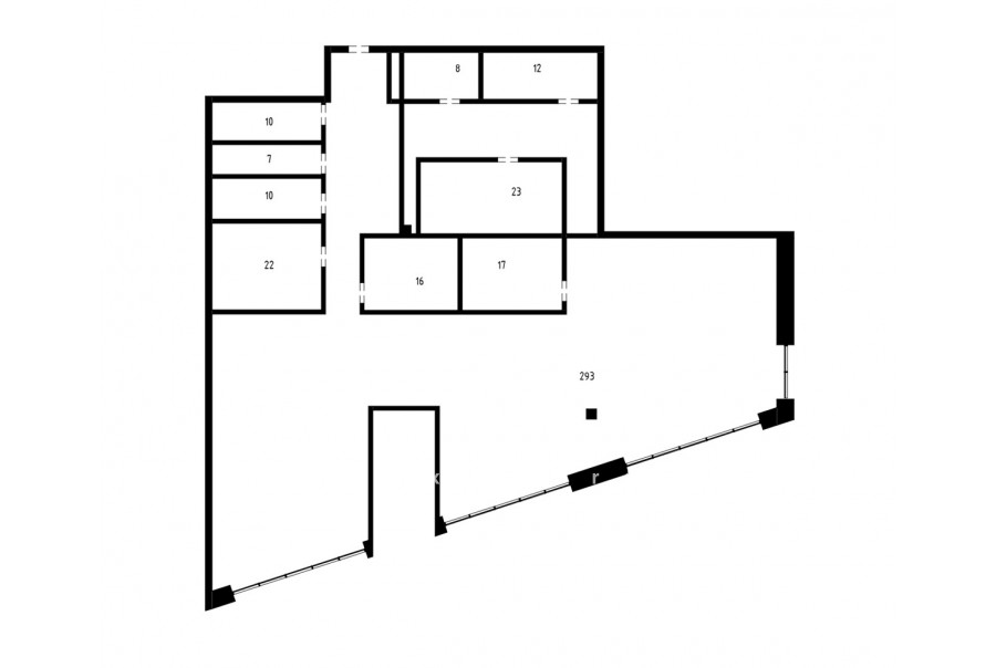
Аренда офиса 470 м²

Москва, 1-й Нагатинский проезд, 10 с1

Нагатинская → 1.07 км
~ 14 мин
Арендная плата в месяц по запросу потенциального арендатора Срок освобождение в течение 3 месяцев

Информация по помещению

Ознакомьтесь с дополнительной информацией по помещению и коммерческим условиям!

Площадь 470 м²
Планировка Смешанная
Этаж 10

Описание

Преимущества
  • Класс А
  • Пешком от метро
  • Кондиционирование и вентиляция
  • Свой паркинг

Коммерческие условия

Арендная плата по запросу
Ставка арендной платы по запросу
Эксплуатационные расходы Включены в ставку
Налоги С учётом НДС
Тип договора Прямая аренда
Срок договора от 11 месяцев
Размер платежей 1 месяц
Обеспечительный платеж 1 месяц
Статус Сдан

О бизнес-центре

Класс А
Этажность 18
Лифты Есть
Общая площадь 84 000 м²
Год постройки 2013
Паркинг Наземный крытый
Вентиляция приточно-вытяжная
Кондиционирование центральное
Телекоммуникации Интернет/Телефония

Расположение

Информация по помещению

Получите дополнительную информацию по помещению и коммерческом условиям!

Похожие предложения в других зданиях

БЕЗ КОМИССИИ ID: 1302930 Рейтинг8.4 КлассB+

Москва, Каширское шоссе, 3к2 с2

Нагатинская → 1.59 км
~ 16 мин
Арендная плата в месяц 1 176 000 ₽ 33 600 ₽/м² в год С учётом НДС
Характеристики 420 м² 3 этаж Готово к въезду
Преимущества
  • Класс B+
  • Пешком от метро
  • Кондиционирование и вентиляция
  • Свой паркинг
  • Несколько провайдеров связи

Предлагаем в долгосрочную прямую аренду офисное помещение класса B+ общей площадью 420 квадр. метров в бизнес-центре "Сириус Парк"... подробнее

>

Виртуальный тур

Презентация по предложению

Собираете информацию? Получите подробную презентацию в удобном формате!

БЕЗ КОМИССИИ ID: 1311820 Рейтинг8.4 КлассB+

Москва, Варшавское шоссе, 26

Нагатинская → 42 м
~ 1 мин
Арендная плата в месяц 1 267 875 ₽ 31 500 ₽/м² в год С учётом НДС
Характеристики 483 м² 2 этаж Готово к въезду
Преимущества
  • Класс B+
  • Пешком от метро
  • Кондиционирование и вентиляция
  • Свой паркинг
  • Развитая инфраструктура

Сдается в долгосрочную прямую аренду помещение под офис класса B+ площадью 483 квадр. метров в недавно отреконструированном бизнес-центре "Варшавская Плаза"... подробнее

>

Виртуальный тур

Презентация по предложению

Собираете информацию? Получите подробную презентацию в удобном формате!

БЕЗ КОМИССИИ ID: 1311817 Рейтинг8.4 КлассB+

Москва, Варшавское шоссе, 26

Нагатинская → 42 м
~ 1 мин
Арендная плата в месяц 1 057 875 ₽ 31 500 ₽/м² в год С учётом НДС
Характеристики 403 м² 2 этаж Готово к въезду
Преимущества
  • Класс B+
  • Пешком от метро
  • Кондиционирование и вентиляция
  • Свой паркинг
  • Развитая инфраструктура

Предлагаем в долгосрочную прямую аренду офисное помещение класса B+ площадью 403 квадратных метров в недавно отреконструированном бизнес-центре "Варшавская Плаза"... подробнее

>

Виртуальный тур

Презентация по предложению

Собираете информацию? Получите подробную презентацию в удобном формате!

БЕЗ КОМИССИИ ID: 215701 Рейтинг8.5 КлассB+

Москва, Новоданиловская набережная, вл6с

Тульская → 1.44 км
~ 14 мин
Арендная плата в месяц 1 524 000 ₽ 36 000 ₽/м² в год С учётом НДС
Характеристики 508 м² 10 этаж Готово к въезду
Преимущества
  • Класс B+
  • Пешком от метро
  • Кондиционирование и вентиляция
  • Свой паркинг

Предлагаем в прямую аренду офисный блок класса B+ общей площадью 508 квадратных метров в новом бизнес-центре "Данилов Плаза"... подробнее

Презентация по предложению

Собираете информацию? Получите подробную презентацию в удобном формате!

БЕЗ КОМИССИИ ID: 1188368 Рейтинг8.5 КлассB+

Москва, Новоданиловская набережная, вл6с

Тульская → 1.44 км
~ 14 мин
Арендная плата в месяц 1 269 000 ₽ 36 000 ₽/м² в год С учётом НДС
Характеристики 423 м² 2 этаж Готово к въезду
Преимущества
  • Класс B+
  • Пешком от метро
  • Кондиционирование и вентиляция
  • Свой паркинг

Предлагаем в долгосрочную прямую аренду офисный блок класса B+ площадью 423 кв. метров в новом бизнес-центре "Данилов Плаза"... подробнее

Презентация по предложению

Собираете информацию? Получите подробную презентацию в удобном формате!

Посмотреть все похожие предложения
Отнеситесь рационально к процессу поиска нового офиса!

Просто ответьте на 3 вопроса, и наши специалисты сами предложат оптимальные варианты под ваш бюджет

.