8.2
Смотреть все фото
ВОЗМОЖНО ОСВОБОЖДЕНИЕ ID: 289390 Рейтинг7.7 КлассB
Бизнес-центр «Оазис»

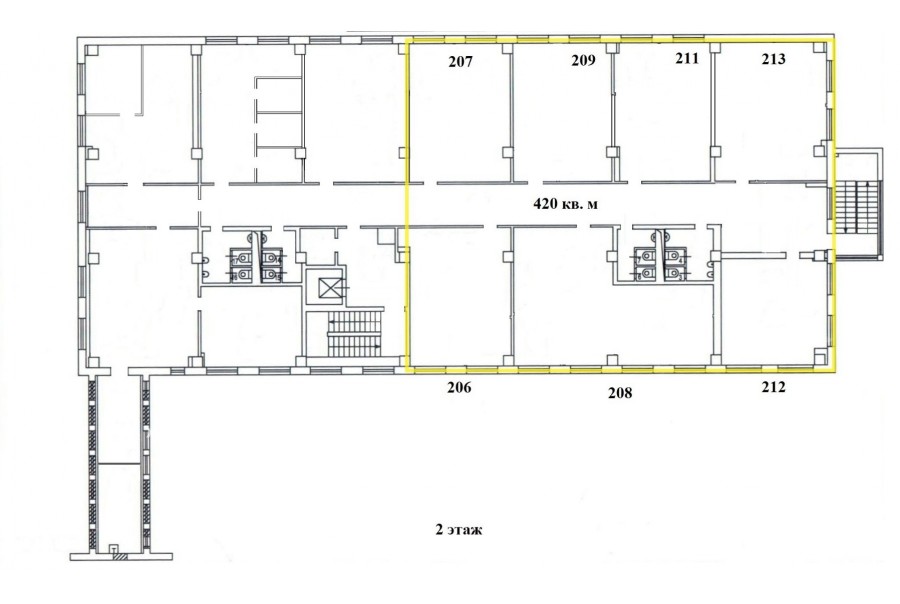
Аренда офиса 420 м²

Москва, Дербеневская набережная, 7 с5

Пролетарская → 1.72 км
~ 17 мин
Арендная плата в месяц по запросу потенциального арендатора Срок освобождение в течение 3 месяцев

Информация по помещению

Ознакомьтесь с дополнительной информацией по помещению и коммерческим условиям!

Площадь 420 м²
Планировка Кабинетная
Этаж 2

Описание

Преимущества
  • Класс B
  • Пешком от метро
  • Кондиционирование и вентиляция
  • Свой паркинг
  • Развитая инфраструктура

Коммерческие условия

Арендная плата по запросу
Ставка арендной платы по запросу
Эксплуатационные расходы Включены в ставку
Налоги С учётом НДС
Тип договора Прямая аренда
Срок договора от 11 месяцев
Размер платежей 1 месяц
Обеспечительный платеж 1 месяц
Статус Сдан

О бизнес-центре

Класс B
Этажность 5
Лифты Есть
Общая площадь 4 500 м²
Год постройки 2005
Паркинг Наземный
Вентиляция приточно-вытяжная
Кондиционирование центральное
Телекоммуникации Интернет/Телефония

Расположение

Информация по помещению

Получите дополнительную информацию по помещению и коммерческом условиям!

Похожие предложения в других зданиях

ВОЗМОЖНО ОСВОБОЖДЕНИЕ ID: 302117 Рейтинг7.1 КлассB

Москва, Дербеневская улица, 11

Серпуховская → 1.72 км
~ 17 мин
Арендная плата в месяц 516 667 ₽ 15 500 ₽/м² в год С учётом НДС
Характеристики 400 м² 1 - 4 этаж Готово к въезду
Преимущества
  • Класс B
  • Пешком от метро
  • Кондиционирование и вентиляция
  • Свой паркинг

Сдается в долгосрочную прямую аренду помещение под офис класса B общей площадью 400 квадратных метров в недавно отреконструированном бизнес-центре... подробнее

Презентация по предложению

Собираете информацию? Получите подробную презентацию в удобном формате!

БЕЗ КОМИССИИ ID: 1329462 Рейтинг6.0 КлассB

Москва, 2-й Кожевнический переулок, 12

Павелецкая → 1.31 км
~ 13 мин
Арендная плата в месяц 596 417 ₽ 17 000 ₽/м² в год С учётом НДС
Характеристики 421 м² 3 этаж Готово к въезду
Преимущества
  • Класс B
  • Пешком от метро
  • Кондиционирование и вентиляция
  • Свой паркинг
  • Несколько провайдеров связи
  • Развитая инфраструктура

Предлагаем в прямую аренду помещение под офис класса B площадью 421 кв. метров в недавно отреконструированном бизнес-центре "Горизонт"... подробнее

Презентация по предложению

Собираете информацию? Получите подробную презентацию в удобном формате!

БЕЗ КОМИССИИ ID: 237934 Рейтинг5.7 КлассB

Москва, Летниковская улица, 11/10

Павелецкая → 1.01 км
~ 10 мин
Арендная плата в месяц 600 383 ₽ 16 300 ₽/м² в год С учётом НДС
Характеристики 442 м² 1 этаж Готово к въезду
Преимущества
  • Класс B
  • Пешком от метро
  • Кондиционирование и вентиляция
  • Свой паркинг
  • Несколько провайдеров связи

Сдается в долгосрочную прямую аренду помещение под офис класса B общей площадью 442 квадратных метров в бизнес-центре "Кэпитал Хаус"... подробнее

Презентация по предложению

Собираете информацию? Получите подробную презентацию в удобном формате!

БЕЗ КОМИССИИ ID: 1033612 Рейтинг7.6 КлассB

Москва, 1-й Кожевнический переулок, 8

Павелецкая → 887 м
~ 9 мин
Арендная плата в месяц 585 000 ₽ 19 500 ₽/м² в год С учётом НДС
Характеристики 360 м² 2 этаж Готово к въезду
Преимущества
  • Класс B
  • Пешком от метро
  • Кондиционирование и вентиляция
  • Свой паркинг

Сдаем в долгосрочную прямую аренду офис класса B общей площадью 360 квадр. метров в бизнес-центре... подробнее

Презентация по предложению

Собираете информацию? Получите подробную презентацию в удобном формате!

БЕЗ КОМИССИИ ID: 1261498 Рейтинг7.2 КлассB

Москва, 1-й Кожевнический переулок, 6 с1

Павелецкая → 973 м
~ 10 мин
Арендная плата в месяц 551 833 ₽ 15 400 ₽/м² в год С учётом НДС
Характеристики 430 м² 1 этаж Готово к въезду
Преимущества
  • Класс B
  • Пешком от метро
  • Кондиционирование и вентиляция
  • Свой паркинг
  • Несколько провайдеров связи
  • Развитая инфраструктура

Собственник сдает в прямую аренду офисное помещение класса B площадью 430 квадратных метров в недавно отреконструированном бизнес-центре "Павелецкий"... подробнее

Презентация по предложению

Собираете информацию? Получите подробную презентацию в удобном формате!

Посмотреть все похожие предложения
Отнеситесь рационально к процессу поиска нового офиса!

Просто ответьте на 3 вопроса, и наши специалисты сами предложат оптимальные варианты под ваш бюджет

.