8.2

Виртуальный тур

Смотреть все фото
БЕЗ КОМИССИИ ID: 1376830 Рейтинг8.3 КлассB+
Бизнес-центр «Образцова 4А»

Аренда офиса 1046 м²

Москва, улица Образцова, 4А

Достоевская → 811 м
~ 8 мин
Арендная плата в месяц 2 800 000 ₽ 32 100 ₽/м² в год С учётом НДС

Презентация по предложению

Собираете информацию? Получите подробную презентацию в удобном формате!

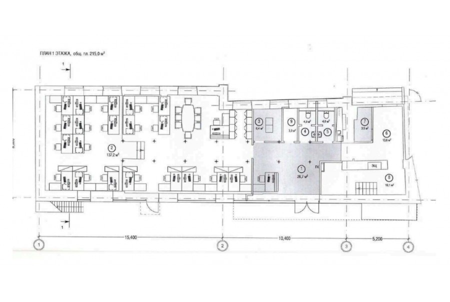
Площадь 1 046 м²
Состояние Готово к въезду
Планировка Смешанная
Этаж 1 - 5

Описание

Преимущества
  • Класс B+
  • Пешком от метро
  • Кондиционирование и вентиляция
  • Свой паркинг
Предлагаем в прямую аренду офисное здание класса B+ общей площадью 1046 кв. метров.

Москва, СВАО, улица Образцова, 4А

Удобная локация здания:
- Автомобиль: близость транспортных магистралей, таких как Третье Транспортное Кольцо и других.
- Возможность аренды парковочных мест.
- Ближайшее метро: от метро "Достоевская" всего 10 мин пешком

Офис класса B+:
- Офис с отделкой, полностью готов к аренде
- Вентиляция: Приточно-вытяжная вентиляция
- Кондиционирование: центральное

Возможность заключения контракта в соответствии с 44ФЗ по госзакупкам.

Что еще можно узнать о предложении:

1. Мы подготовили презентацию с информацией о помещении, фотографиями и планировкой, чтобы Вы могли поделиться ей с коллегами или руководством. Попросите об этом нашего менеджера по телефону в объявлении.
2. Задайте любые вопросы менеджеру по телефону, готовы обсуждать любые предложения по финансовым условиям договора аренды.
3.

Звоните нам в любое время. По будням мы сможем ответить на Ваши вопросы до 19:00. В выходные или вечернее время мы передадим Ваш контакт нашему менеджеру по аренде.

Коммерческие условия

Арендная плата 2 799 970 ₽
Ставка арендной платы 32 100 ₽ м²/год
Эксплуатационные расходы Включены в ставку
Налоги С учётом НДС
Тип договора Прямая аренда
Срок договора от 11 месяцев
Размер платежей 1 месяц
Обеспечительный платеж 1 месяц
Статус Сдан

О бизнес-центре

Класс B+
Этажность 8
Лифты Есть
Общая площадь 1 470 м²
Год постройки 2005
Паркинг Подземный
Вентиляция приточно-вытяжная
Кондиционирование центральное
Телекоммуникации Интернет/Телефония

Расположение

Подробная презентацию по предложению

Собираете информацию? Получите подробную презентацию в удобном формате, чтобы обсудить вариант с коллегами или переслать руководству!

Похожие предложения в других зданиях

БЕЗ КОМИССИИ ID: 1300542 Рейтинг6.7 КлассB

Москва, Сущёвская улица, 20

Менделеевская → 428 м
~ 4 мин
Арендная плата в месяц 2 161 250 ₽ 27 300 ₽/м² в год С учётом НДС
Характеристики 950 м² 2 этаж Готово к въезду
Преимущества
  • Класс B
  • Пешком от метро
  • Кондиционирование и вентиляция

Предлагается в долгосрочную прямую аренду офисный блок класса B общей площадью 950 квадр. метров в бизнес-центре... подробнее

>

Виртуальный тур

Презентация по предложению

Собираете информацию? Получите подробную презентацию в удобном формате!

БЕЗ КОМИССИИ ID: 1300543 Рейтинг6.7 КлассB

Москва, Сущёвская улица, 20

Менделеевская → 428 м
~ 4 мин
Арендная плата в месяц 2 149 875 ₽ 27 300 ₽/м² в год С учётом НДС
Характеристики 945 м² 3 этаж Готово к въезду
Преимущества
  • Класс B
  • Пешком от метро
  • Кондиционирование и вентиляция

Сдается в прямую аренду офисное помещение класса B общей площадью 945 квадратных метров в бизнес-центре... подробнее

>

Виртуальный тур

Презентация по предложению

Собираете информацию? Получите подробную презентацию в удобном формате!

БЕЗ КОМИССИИ ID: 1300541 Рейтинг6.7 КлассB

Москва, Сущёвская улица, 20

Менделеевская → 428 м
~ 4 мин
Арендная плата в месяц 2 106 650 ₽ 27 300 ₽/м² в год С учётом НДС
Характеристики 926 м² 1 этаж Готово к въезду
Преимущества
  • Класс B
  • Пешком от метро
  • Кондиционирование и вентиляция

Предлагается в долгосрочную прямую аренду помещение под офис класса B площадью 926 кв.м в бизнес-центре... подробнее

>

Виртуальный тур

Презентация по предложению

Собираете информацию? Получите подробную презентацию в удобном формате!

БЕЗ КОМИССИИ ID: 1328016 Рейтинг7.4 КлассB+

Москва, 1-й Вышеславцев переулок, 6

Марьина Роща → 798 м
~ 8 мин
Арендная плата в месяц 3 208 425 ₽ 35 000 ₽/м² в год С учётом НДС
Характеристики 1 100 м² -1 - 4 этаж Готово к въезду
Преимущества
  • Класс B+
  • Пешком от метро
  • Кондиционирование и вентиляция
  • Свой паркинг
  • Несколько провайдеров связи

Сдается в долгосрочную прямую аренду здание под офис класса B+ площадью 1100 кв.м. .. подробнее

Презентация по предложению

Собираете информацию? Получите подробную презентацию в удобном формате!

ВОЗМОЖНО ОСВОБОЖДЕНИЕ ID: 465522 Рейтинг7.9 КлассB+

Москва, Новослободская улица, 21

Менделеевская → 77 м
~ 1 мин
Арендная плата в месяц 3 000 000 ₽ 30 000 ₽/м² в год С учётом НДС
Характеристики 1 200 м² 2 - 6 этаж Готово к въезду
Преимущества
  • Класс B+
  • Пешком от метро
  • Кондиционирование и вентиляция
  • Свой паркинг

Собственник сдает в прямую аренду помещение под офис класса B+ общей площадью 1200 квадратных метров в историческом недавно отреконструированном бизнес-центре... подробнее

Презентация по предложению

Собираете информацию? Получите подробную презентацию в удобном формате!

Посмотреть все похожие предложения
Отнеситесь рационально к процессу поиска нового офиса!

Просто ответьте на 3 вопроса, и наши специалисты сами предложат оптимальные варианты под ваш бюджет

.