8.2

Виртуальный тур

Смотреть все фото
БЕЗ КОМИССИИ ID: 1256064 Рейтинг8.3 КлассB+
Бизнес-центр «Образцова 4А»

Аренда офиса 288 м²

Москва, улица Образцова, 4А

Достоевская → 811 м
~ 8 мин
Арендная плата в месяц 605 000 ₽ 25 200 ₽/м² в год С учётом НДС

Презентация по предложению

Собираете информацию? Получите подробную презентацию в удобном формате!

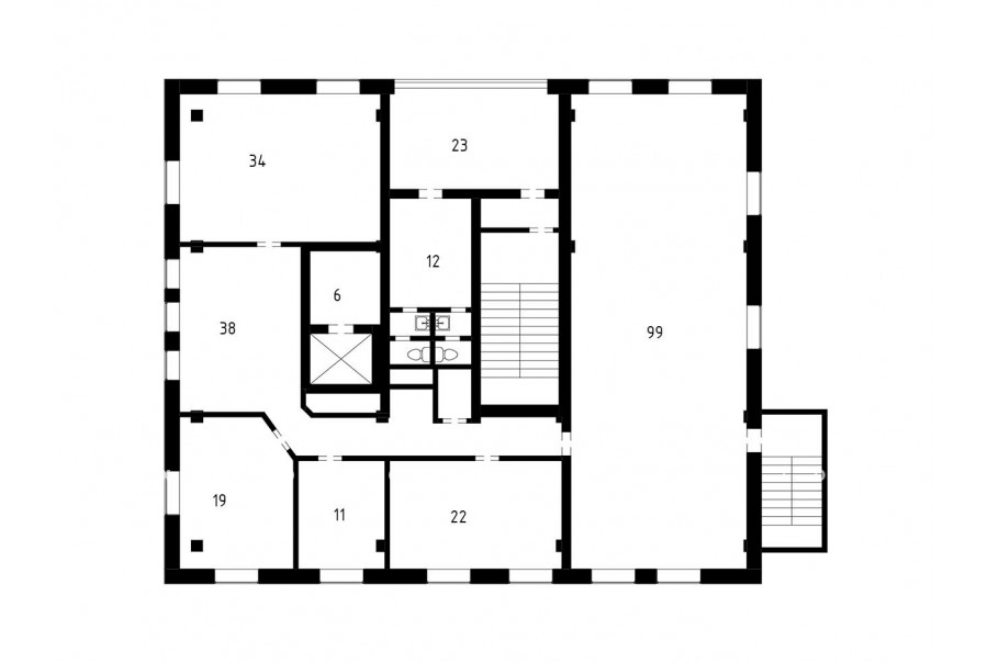
Площадь 288 м²
Состояние Готово к въезду
Планировка Смешанная
Этаж 2

Описание

Преимущества
  • Класс B+
  • Пешком от метро
  • Кондиционирование и вентиляция
  • Свой паркинг
Предлагаем в долгосрочную аренду офис класса B+ площадью 288 кв. метров в бизнес-центре.

Москва, СВАО, улица Образцова, 4А

Удобная локация здания:
- Автомобиль: близость транспортных магистралей, таких как Третье Транспортное Кольцо и других.
- Возможность аренды парковочных мест.
- Ближайшее метро: от метро "Достоевская" всего 10 мин пешком

Офис класса B+:
- Офис с отделкой, полностью готов к аренде
- Вентиляция: Приточно-вытяжная вентиляция
- Кондиционирование: центральное


Если предложение предварительно Вам подходит:

1. Мы подготовили презентацию с информацией о помещении, фотографиями и планировкой, чтобы Вы могли поделиться ей с коллегами или руководством. Попросите об этом нашего менеджера по телефону в объявлении.
2. Задайте любые вопросы менеджеру по телефону, готовы обсуждать любые предложения по финансовым условиям договора аренды.
3.

Звоните нам в любое время. По будням мы сможем ответить на Ваши вопросы до 19:00. В выходные или вечернее время мы передадим Ваш контакт нашему менеджеру по аренде.

Коммерческие условия

Арендная плата 549 980 ₽
Ставка арендной платы 25 200 ₽ м²/год
Эксплуатационные расходы Включены в ставку
Налоги С учётом НДС
Тип договора Прямая аренда
Срок договора от 11 месяцев
Размер платежей 1 месяц
Обеспечительный платеж 1 месяц
Статус Сдан

О бизнес-центре

Класс B+
Этажность 8
Лифты Есть
Общая площадь 1 470 м²
Год постройки 2005
Паркинг Подземный
Вентиляция приточно-вытяжная
Кондиционирование центральное
Телекоммуникации Интернет/Телефония

Расположение

Подробная презентацию по предложению

Собираете информацию? Получите подробную презентацию в удобном формате, чтобы обсудить вариант с коллегами или переслать руководству!

Похожие предложения в других зданиях

БЕЗ КОМИССИИ ID: 165840 Рейтинг6.5 КлассB

Москва, улица Образцова, 7

Достоевская → 826 м
~ 8 мин
Арендная плата в месяц 599 833 ₽ 23 600 ₽/м² в год С учётом НДС
Характеристики 305 м² 1 - 3 этаж Готово к въезду
Преимущества
  • Класс B
  • Пешком от метро
  • Кондиционирование и вентиляция
  • Свой паркинг

Сдаем в прямую аренду офис класса B общей площадью 305 квадратных метров в бизнес-центре... подробнее

Презентация по предложению

Собираете информацию? Получите подробную презентацию в удобном формате!

БЕЗ КОМИССИИ ID: 184362 Рейтинг6.5 КлассB

Москва, улица Образцова, 7 с3

Менделеевская → 991 м
~ 10 мин
Арендная плата в месяц 599 833 ₽ 23 600 ₽/м² в год С учётом НДС
Характеристики 305 м² 1 - 3 этаж Готово к въезду
Преимущества
  • Класс B
  • Пешком от метро
  • Кондиционирование и вентиляция
  • Свой паркинг

Сдаем в долгосрочную прямую аренду офисное помещение класса B площадью 305 кв.м в бизнес-центре... подробнее

Презентация по предложению

Собираете информацию? Получите подробную презентацию в удобном формате!

БЕЗ КОМИССИИ ID: 1284408 Рейтинг7.6 КлассB

Москва, улица Образцова, 23

Марьина Роща → 644 м
~ 6 мин
Арендная плата в месяц 556 967 ₽ 27 000 ₽/м² в год С учётом НДС
Характеристики 248 м² 1 - 2 этаж Готово к въезду
Преимущества
  • Класс B
  • Пешком от метро
  • Кондиционирование и вентиляция

Предлагается в долгосрочную аренду здание под офис класса B площадью 248 квадратных метров. .. подробнее

>

Виртуальный тур

Презентация по предложению

Собираете информацию? Получите подробную презентацию в удобном формате!

БЕЗ КОМИССИИ ID: 1293200 Рейтинг7.6 КлассB

Москва, улица Образцова, 23

Марьина Роща → 644 м
~ 6 мин
Арендная плата в месяц 551 242 ₽ 26 800 ₽/м² в год С учётом НДС
Характеристики 247 м² 1 - 2 этаж Готово к въезду
Преимущества
  • Класс B
  • Пешком от метро
  • Кондиционирование и вентиляция

Сдается в долгосрочную аренду офис класса B площадью 247 квадр. метров в бизнес-центре... подробнее

>

Виртуальный тур

Презентация по предложению

Собираете информацию? Получите подробную презентацию в удобном формате!

БЕЗ КОМИССИИ ID: 131282 Рейтинг8.1 КлассB+

Москва, Сущёвская улица, 27 с1

Менделеевская → 269 м
~ 3 мин
Арендная плата в месяц 625 000 ₽ 25 000 ₽/м² в год С учётом НДС
Характеристики 300 м² 6 этаж Готово к въезду
Преимущества
  • Класс B+
  • Пешком от метро
  • Кондиционирование и вентиляция
  • Свой паркинг
  • Развитая инфраструктура

Собственник сдает в долгосрочную прямую аренду офисное помещение класса B+ общей площадью 300 квадратных метров в бизнес-центре "Салют"... подробнее

Презентация по предложению

Собираете информацию? Получите подробную презентацию в удобном формате!

Посмотреть все похожие предложения
Отнеситесь рационально к процессу поиска нового офиса!

Просто ответьте на 3 вопроса, и наши специалисты сами предложат оптимальные варианты под ваш бюджет