8.2
Смотреть все фото
БЕЗ КОМИССИИ ID: 283064 Рейтинг7.6 КлассB
Бизнес-центр «Обручева 36 к1»

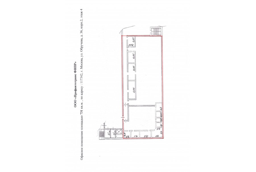
Аренда офиса 730 м²

Москва, улица Обручева, 36 к1

Калужская → 340 м
~ 3 мин
Арендная плата в месяц 882 100 ₽ 14 500 ₽/м² в год С учётом НДС

Презентация по предложению

Собираете информацию? Получите подробную презентацию в удобном формате!

Площадь 730 м²
Состояние Готово к въезду
Планировка Смешанная
Этаж 4

Описание

Преимущества
  • Класс B
  • Пешком от метро
  • Кондиционирование и вентиляция
  • Свой паркинг
Сдается в аренду офис класса B площадью 730 квадр. метров в бизнес-центре.

Москва, ЮЗАО, улица Обручева, 36 к1

Удобное расположение здания для всех видов транспорта:
- Автомобиль: близость транспортных магистралей, таких как Профсоюзная улица, Севастопольский проспект и других.
- Возможность аренды парковочных мест.
- Ближайшее метро: от метро "Калужская" всего 5 мин пешком

Офис класса B:
- Офис с отделкой, полностью готов к аренде
- Вентиляция: Приточно-вытяжная вентиляция
- Кондиционирование: сплит-системы


Если предложение предварительно Вам подходит:

1. Получите презентацию в течение 10 минут в Whatsapp или на почту с фотографиями и планировкой, чтобы обсудить данный вариант с коллегами или переслать руководству. Для этого позвоните по телефону, указанному в объявлении.
2. Мы готовы ответить на любые Ваши вопросы о помещении и коммерческих условиях аренды.
3. Оперативно организуем просмотр помещения с менеджерами на объекте или подготовим виртуальный тур.

Вы можете позвонить нам в любое время. Мы ответим на Ваши вопросы по будням до 19:00, а поздно вечером или в выходные сможем передать Ваш контакт нашему менеджеру.

Коммерческие условия

Арендная плата 882 080 ₽
Ставка арендной платы 14 500 ₽ м²/год
Эксплуатационные расходы Включены в ставку
Налоги С учётом НДС
Тип договора Субаренда
Срок договора от 11 месяцев
Размер платежей 1 месяц
Обеспечительный платеж 1 месяц
Статус Сдан

О бизнес-центре

Класс B
Этажность 8
Лифты Есть
Общая площадь 16 000 м²
Год постройки 1987
Паркинг Наземный
Вентиляция приточно-вытяжная
Кондиционирование сплит-системы
Телекоммуникации Интернет/Телефония

Расположение

Подробная презентацию по предложению

Собираете информацию? Получите подробную презентацию в удобном формате, чтобы обсудить вариант с коллегами или переслать руководству!

Похожие предложения в других зданиях

ВОЗМОЖНО ОСВОБОЖДЕНИЕ ID: 972972 Рейтинг6.0 КлассА

Москва, Профсоюзная улица, 61А

Калужская → 155 м
~ 2 мин
Арендная плата в месяц 1 048 750 ₽ 15 000 ₽/м² в год С учётом НДС
Характеристики 839 м² 6 этаж Готово к въезду
Преимущества
  • Класс А
  • Пешком от метро
  • Развитая инфраструктура

Сдаем в долгосрочную аренду офис класса А общей площадью 839 квадр. метров в бизнес-центре... подробнее

>

Виртуальный тур

Презентация по предложению

Собираете информацию? Получите подробную презентацию в удобном формате!

БЕЗ КОМИССИИ ID: 186198 Рейтинг5.5 КлассB

Москва, улица Обручева, 23 с3

Воронцовская → 821 м
~ 8 мин
Арендная плата в месяц 933 333 ₽ 16 000 ₽/м² в год С учётом НДС
Характеристики 700 м² 1 - 2 этаж Готово к въезду
Преимущества
  • Класс B
  • Пешком от метро
  • Кондиционирование и вентиляция
  • Свой паркинг

Предлагается в долгосрочную аренду помещение под офис класса B площадью 700 кв. метров в бизнес-центре... подробнее

Презентация по предложению

Собираете информацию? Получите подробную презентацию в удобном формате!

БЕЗ КОМИССИИ ID: 233151 Рейтинг7.7 КлассB

Москва, улица Введенского, 1а

Калужская → 1.4 км
~ 14 мин
Арендная плата в месяц 965 000 ₽ 15 000 ₽/м² в год С учётом НДС
Характеристики 772 м² 3 этаж Отделка под арендатора
Преимущества
  • Класс B
  • Пешком от метро
  • Кондиционирование и вентиляция
  • Свой паркинг

Сдается в долгосрочную прямую аренду офисное помещение класса B площадью 772 квадр. метров в бизнес-центре... подробнее

Презентация по предложению

Собираете информацию? Получите подробную презентацию в удобном формате!

БЕЗ КОМИССИИ ID: 276642 Рейтинг7.7 КлассB

Москва, улица Введенского, 1а

Калужская → 1.4 км
~ 14 мин
Арендная плата в месяц 875 000 ₽ 15 000 ₽/м² в год С учётом НДС
Характеристики 700 м² 4 этаж Отделка под арендатора
Преимущества
  • Класс B
  • Пешком от метро
  • Кондиционирование и вентиляция
  • Свой паркинг

Сдается в долгосрочную аренду офис класса B площадью 700 кв. метров в бизнес-центре... подробнее

Презентация по предложению

Собираете информацию? Получите подробную презентацию в удобном формате!

БЕЗ КОМИССИИ ID: 302776 Рейтинг7.5 КлассB

Москва, Старокалужское шоссе, 62

Воронцовская → 194 м
~ 2 мин
Арендная плата в месяц 955 625 ₽ 16 500 ₽/м² в год С учётом НДС
Характеристики 695 м² 4 этаж Готово к въезду
Преимущества
  • Класс B
  • Пешком от метро
  • Кондиционирование и вентиляция
  • Свой паркинг
  • Несколько провайдеров связи
  • Развитая инфраструктура

Предлагается в долгосрочную прямую аренду офисное помещение класса B общей площадью 695 квадратных метров в бизнес-центре... подробнее

Презентация по предложению

Собираете информацию? Получите подробную презентацию в удобном формате!

Посмотреть все похожие предложения
Отнеситесь рационально к процессу поиска нового офиса!

Просто ответьте на 3 вопроса, и наши специалисты сами предложат оптимальные варианты под ваш бюджет

.