8.2
Смотреть все фото
БЕЗ КОМИССИИ ID: 258062 Рейтинг5.5 КлассB
Бизнес-центр «Огородный 14»

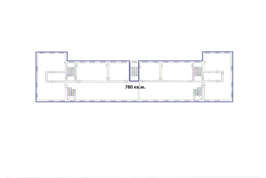
Аренда офиса 780 м²

Москва, Огородный проезд, 14

Бутырская → 166 м
~ 2 мин
Арендная плата в месяц 1 625 000 ₽ 25 000 ₽/м² в год С учётом НДС

Презентация по предложению

Собираете информацию? Получите подробную презентацию в удобном формате!

Площадь 780 м²
Состояние Под отделку
Планировка Смешанная
Этаж 2

Описание

Преимущества
  • Класс B
  • Пешком от метро
  • Развитая инфраструктура
Предлагаем в долгосрочную аренду офисное помещение класса B общей площадью 780 квадр. метров в историческом бизнес-центре.

Москва, СВАО, Огородный проезд, 14

Удобное расположение здания для всех видов транспорта:
- Автомобиль: близость транспортных магистралей, таких как Дмитровское шоссе, Бутырская улица и других.
- Ближайшее метро: буквально 2 мин пешком от метро "Бутырская"

Офис класса B:
- Офис без отделки


Что еще можно узнать о предложении:

1. Мы отправим Вам подробную презентацию с планировкой и фотографиями в течение 10 минут после звонка, чтобы Вы могли поделиться информацией с руководством или с коллегами.
2. Мы готовы ответить на любые Ваши вопросы о помещении и коммерческих условиях аренды.
3. Оперативно организуем просмотр помещения, договоримся на любое удобное время, подготовим виртуальный тур.

Вы можете позвонить нам в любое время. Мы ответим на Ваши вопросы по будням до 19:00, а поздно вечером или в выходные сможем передать Ваш контакт нашему менеджеру.

Коммерческие условия

Арендная плата 1 625 000 ₽
Ставка арендной платы 25 000 ₽ м²/год
Эксплуатационные расходы Включены в ставку
Налоги С учётом НДС
Тип договора Прямая аренда
Срок договора от 11 месяцев
Размер платежей 1 месяц
Обеспечительный платеж 1 месяц
Статус Сдан

О бизнес-центре

Класс B
Этажность 5
Лифты Нет
Общая площадь 3 757 м²
Год постройки 1959
Паркинг Наземный
Вентиляция приточно-вытяжная
Кондиционирование сплит-системы
Телекоммуникации Интернет/Телефония

Расположение

Подробная презентацию по предложению

Собираете информацию? Получите подробную презентацию в удобном формате, чтобы обсудить вариант с коллегами или переслать руководству!

Похожие предложения в других зданиях

БЕЗ КОМИССИИ ID: 1324103 Рейтинг6.3 КлассB

Москва, Огородный проезд, 12 с1

Бутырская → 199 м
~ 3 мин
Арендная плата в месяц 1 659 000 ₽ 28 000 ₽/м² в год С учётом НДС
Характеристики 711 м² 1 этаж Готово к въезду
Преимущества
  • Класс B
  • Пешком от метро

Предлагается в долгосрочную аренду офисное помещение класса B общей площадью 711 квадратных метров в бизнес-центре... подробнее

Презентация по предложению

Собираете информацию? Получите подробную презентацию в удобном формате!

БЕЗ КОМИССИИ ID: 1305808 Рейтинг8.9 КлассА

Москва, Огородный проезд, 16/1 с2

Бутырская → 250 м
~ 3 мин
Арендная плата в месяц 1 578 892 ₽ 22 100 ₽/м² в год С учётом НДС
Характеристики 856 м² 11 этаж Под отделку
Преимущества
  • Класс А
  • Пешком от метро
  • Новое строительство
  • Кондиционирование и вентиляция
  • Свой паркинг

Сдается в долгосрочную аренду офисный блок класса А общей площадью 856 квадр. метров в историческом бизнес-центре "ОСТАНКИНО BUSINESS PARK"... подробнее

Презентация по предложению

Собираете информацию? Получите подробную презентацию в удобном формате!

БЕЗ КОМИССИИ ID: 1300930 Рейтинг8.6 КлассB+

Москва, Новодмитровская улица, 2Б

Дмитровская → 805 м
~ 8 мин
Арендная плата в месяц 2 126 250 ₽ 28 400 ₽/м² в год С учётом НДС
Характеристики 900 м² 4 этаж Готово к въезду
Преимущества
  • Класс B+
  • Пешком от метро
  • Кондиционирование и вентиляция
  • Свой паркинг

Сдается в прямую аренду офисное помещение класса B+ общей площадью 900 квадр. метров в бизнес-центре "Дмитровский"... подробнее

>

Виртуальный тур

Презентация по предложению

Собираете информацию? Получите подробную презентацию в удобном формате!

БЕЗ КОМИССИИ ID: 1300932 Рейтинг8.6 КлассB+

Москва, Новодмитровская улица, 2Б

Дмитровская → 805 м
~ 8 мин
Арендная плата в месяц 2 008 125 ₽ 28 400 ₽/м² в год С учётом НДС
Характеристики 850 м² 4 этаж Готово к въезду
Преимущества
  • Класс B+
  • Пешком от метро
  • Кондиционирование и вентиляция
  • Свой паркинг

Предлагаем в долгосрочную аренду офисное помещение класса B+ общей площадью 850 квадр. метров в бизнес-центре "Дмитровский"... подробнее

>

Виртуальный тур

Презентация по предложению

Собираете информацию? Получите подробную презентацию в удобном формате!

БЕЗ КОМИССИИ ID: 1259646 Рейтинг8.6 КлассB+

Москва, Новодмитровская улица, 2Б

Дмитровская → 805 м
~ 8 мин
Арендная плата в месяц 1 766 875 ₽ 27 500 ₽/м² в год С учётом НДС
Характеристики 771 м² 5 этаж Готово к въезду
Преимущества
  • Класс B+
  • Пешком от метро
  • Кондиционирование и вентиляция
  • Свой паркинг

Сдается в долгосрочную аренду офисный блок класса B+ общей площадью 771 квадратных метров в бизнес-центре "Дмитровский"... подробнее

>

Виртуальный тур

Презентация по предложению

Собираете информацию? Получите подробную презентацию в удобном формате!

Посмотреть все похожие предложения
Отнеситесь рационально к процессу поиска нового офиса!

Просто ответьте на 3 вопроса, и наши специалисты сами предложат оптимальные варианты под ваш бюджет

.