8.2
Смотреть все фото
БЕЗ КОМИССИИ ID: 244182 Рейтинг6.7 КлассB
Бизнес-центр «Олимп»

Аренда офиса 554 м²

Москва, 2-я Магистральная улица, 8А с1

Шелепиха → 1.49 км
~ 15 мин
Арендная плата в месяц 738 700 ₽ 16 000 ₽/м² в год С учётом НДС

Презентация по предложению

Собираете информацию? Получите подробную презентацию в удобном формате!

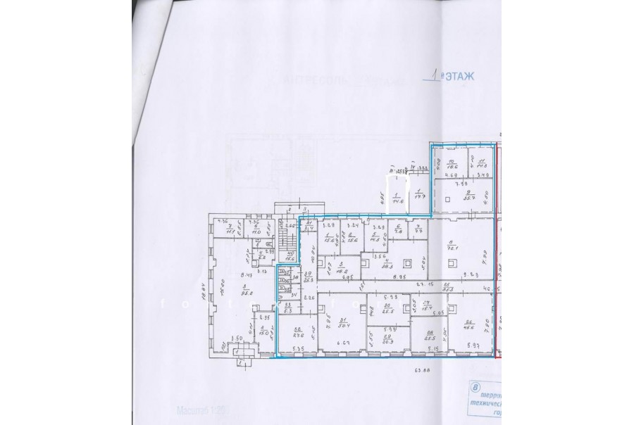
Площадь 554 м²
Состояние Готово к въезду
Планировка Смешанная
Этаж 1

Описание

Преимущества
  • Класс B
  • Пешком от метро
  • Кондиционирование и вентиляция
  • Свой паркинг
  • Несколько провайдеров связи
Предлагаем в прямую аренду офисный блок класса B площадью 554 кв.м в бизнес-центре "Олимп".

Москва, САО, 2-я Магистральная улица, 8А с1

Характеристики местоположения:
- Автомобиль: близость транспортных магистралей, таких как Звенигородское шоссе, Третье Транспортное Кольцо и других.
- Возможность аренды парковочных мест.
- Ближайшее метро: от метро "Шелепиха" можно добраться пешком или на городском транспорте

Офис класса B:
- Офис с отделкой, полностью готов к аренде
- Вентиляция: Приточно-вытяжная вентиляция
- Кондиционирование: центральное
- Круглосуточная охрана и видеонаблюдение


Если предложение предварительно Вам подходит:

1. Мы отправим Вам подробную презентацию с планировкой и фотографиями в течение 10 минут после звонка, чтобы Вы могли поделиться информацией с руководством или с коллегами.
2. Ответим на любые Ваши вопросы, готовы обсуждать любые предложения по коммерческим условиям аренды помещения.
3. Оперативно организуем просмотр помещения, договоримся на любое удобное время, подготовим виртуальный тур.

Вы можете позвонить нам в любое время. Мы ответим на Ваши вопросы по будням до 19:00, а поздно вечером или в выходные зафиксируем Ваш контакт и перезвоним в рабочее время.

Коммерческие условия

Арендная плата 738 670 ₽
Ставка арендной платы 16 000 ₽ м²/год
Эксплуатационные расходы Включены в ставку
Налоги С учётом НДС
Тип договора Прямая аренда
Срок договора от 11 месяцев
Размер платежей 1 месяц
Обеспечительный платеж 2 месяц
Статус Сдан

О бизнес-центре

Класс B
Этажность 4
Лифты Есть
Общая площадь 11 000 м²
Год постройки 2006
Паркинг Наземный
Вентиляция приточно-вытяжная
Кондиционирование центральное
Телекоммуникации Интернет/Телефония

Расположение

Подробная презентацию по предложению

Собираете информацию? Получите подробную презентацию в удобном формате, чтобы обсудить вариант с коллегами или переслать руководству!

Похожие предложения в других зданиях

БЕЗ КОМИССИИ ID: 216587 Рейтинг7.8 КлассB+

Москва, 1-й Магистральный тупик, 11 с1

Хорошёвская → 1.75 км
~ 17 мин
Арендная плата в месяц 719 125 ₽ 16 500 ₽/м² в год С учётом НДС
Характеристики 523 м² 4 этаж Готово к въезду
Преимущества
  • Класс B+
  • Пешком от метро
  • Кондиционирование и вентиляция
  • Свой паркинг
  • Несколько провайдеров связи
  • Развитая инфраструктура

Предлагается в прямую аренду офисный блок класса B+ общей площадью 523 квадр. метров в бизнес-центре "Ярд"... подробнее

Презентация по предложению

Собираете информацию? Получите подробную презентацию в удобном формате!

БЕЗ КОМИССИИ ID: 1069545 Рейтинг6.9 КлассB

Москва, 1-й Магистральный проезд, 11 с1

Хорошёвская → 1.89 км
~ 19 мин
Арендная плата в месяц 811 067 ₽ 17 600 ₽/м² в год С учётом НДС
Характеристики 553 м² 3 этаж Готово к въезду
Преимущества
  • Класс B
  • Пешком от метро
  • Кондиционирование и вентиляция
  • Свой паркинг

Сдается в прямую аренду помещение под офис класса B общей площадью 553 кв. метров в бизнес-центре "Интерьер"... подробнее

>

Виртуальный тур

Презентация по предложению

Собираете информацию? Получите подробную презентацию в удобном формате!

БЕЗ КОМИССИИ ID: 204039 Рейтинг5.2 КлассB

Москва, 4-я Магистральная улица, 5 с1

Хорошёвская → 405 м
~ 4 мин
Арендная плата в месяц 692 567 ₽ 15 800 ₽/м² в год С учётом НДС
Характеристики 526 м² 2 этаж Готово к въезду
Преимущества
  • Класс B
  • Пешком от метро
  • Кондиционирование и вентиляция
  • Свой паркинг
  • Развитая инфраструктура

Предлагается в прямую аренду офисное помещение класса B общей площадью 526 кв.м в историческом бизнес-центре "На Магистральной"... подробнее

Презентация по предложению

Собираете информацию? Получите подробную презентацию в удобном формате!

БЕЗ КОМИССИИ ID: 190972 Рейтинг5.1 КлассB

Москва, 4-я Магистральная улица, 5 с1

Хорошёвская → 335 м
~ 3 мин
Арендная плата в месяц 685 300 ₽ 15 400 ₽/м² в год С учётом НДС
Характеристики 534 м² 1 - 2 этаж Готово к въезду
Преимущества
  • Класс B
  • Пешком от метро
  • Кондиционирование и вентиляция
  • Свой паркинг

Предлагаем в долгосрочную аренду офис класса B общей площадью 534 квадратных метров в историческом бизнес-центре... подробнее

Презентация по предложению

Собираете информацию? Получите подробную презентацию в удобном формате!

БЕЗ КОМИССИИ ID: 81458 Рейтинг4.8 КлассB

Москва, Звенигородское шоссе, 9/27 с1

Улица 1905 года → 843 м
~ 8 мин
Арендная плата в месяц 629 542 ₽ 14 500 ₽/м² в год С учётом НДС
Характеристики 521 м² 4 этаж Готово к въезду
Преимущества
  • Класс B
  • Пешком от метро

Собственник сдает в прямую аренду офисное помещение класса B площадью 521 квадратных метров в историческом бизнес-центре... подробнее

Презентация по предложению

Собираете информацию? Получите подробную презентацию в удобном формате!

Посмотреть все похожие предложения
Отнеситесь рационально к процессу поиска нового офиса!

Просто ответьте на 3 вопроса, и наши специалисты сами предложат оптимальные варианты под ваш бюджет

.