8.2
Смотреть все фото
БЕЗ КОМИССИИ ID: 1102226 Рейтинг8.6 КлассА

Москва, проспект Мира, 33 к1

Проспект Мира → 172 м
~ 2 мин
Арендная плата в месяц 857 200 ₽ 37 000 ₽/м² в год С учётом НДС

Презентация по предложению

Собираете информацию? Получите подробную презентацию в удобном формате!

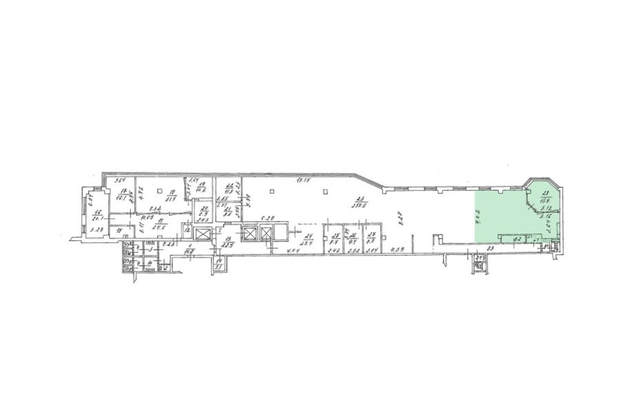
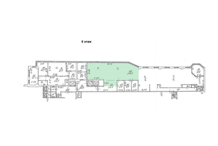
Площадь 278 м²
Состояние Готово к въезду
Планировка Смешанная
Этаж 6

Описание

Преимущества
  • Класс А
  • Пешком от метро
  • Кондиционирование и вентиляция
  • Свой паркинг
  • Развитая инфраструктура
Предлагается в долгосрочную прямую аренду помещение под офис класса А общей площадью 278 кв.м в бизнес-центре "Олимпик плаза".

Москва, ЦАО, проспект Мира, 33 к1

Удобное расположение здания для всех видов транспорта:
- Автомобиль: близость транспортных магистралей, таких как Проспект Мира, Садовое Кольцо и других.
- Возможность аренды парковочных мест.
- Ближайшее метро: буквально 3 мин пешком от метро "Проспект Мира"

Офис класса А:
- Офис с отделкой, полностью готов к аренде
- Вентиляция: Приточно-вытяжная вентиляция
- Кондиционирование: центральное
- Презентабельный центральный ресепшн
- Круглосуточная охрана и видеонаблюдение
- Развитая инфраструктура внутри здания


Что еще можно узнать о предложении:

1. Получите презентацию в течение 10 минут в Whatsapp или на почту с фотографиями и планировкой, чтобы обсудить данный вариант с коллегами или переслать руководству. Для этого позвоните по телефону, указанному в объявлении.
2. Ответим на любые Ваши вопросы, готовы обсуждать любые предложения по коммерческим условиям аренды помещения.
3. Оперативно организуем просмотр помещения с менеджерами на объекте или подготовим виртуальный тур.

Вы можете позвонить нам в любое время. Мы ответим на Ваши вопросы по будням до 19:00, а поздно вечером или в выходные зафиксируем Ваш контакт и перезвоним в рабочее время.

Коммерческие условия

Арендная плата 866 940 ₽
Ставка арендной платы 37 000 ₽ м²/год
Эксплуатационные расходы Включены в ставку
Налоги С учётом НДС
Тип договора Прямая аренда
Срок договора Долгосрочный
Размер платежей 1 месяц
Обеспечительный платеж 2 месяц
Статус Сдан

О бизнес-центре

Класс А
Этажность 10
Лифты Есть
Общая площадь 12 000 м²
Год постройки 1998
Паркинг Подземный
Вентиляция приточно-вытяжная
Кондиционирование центральное
Телекоммуникации Интернет/Телефония

Расположение

Подробная презентацию по предложению

Собираете информацию? Получите подробную презентацию в удобном формате, чтобы обсудить вариант с коллегами или переслать руководству!

Похожие предложения в других зданиях

БЕЗ КОМИССИИ ID: 248532 Рейтинг8.3 КлассА

Москва, проспект Мира, 40

Проспект Мира → 40 м
~ 0 мин
Арендная плата в месяц 805 000 ₽ 35 000 ₽/м² в год С учётом НДС
Характеристики 276 м² 9 этаж Готово к въезду
Преимущества
  • Класс А
  • Пешком от метро
  • Кондиционирование и вентиляция
  • Развитая инфраструктура

Сдается в долгосрочную аренду офис класса А площадью 276 квадратных метров в недавно отреконструированном бизнес-центре "Garden Mir"... подробнее

Презентация по предложению

Собираете информацию? Получите подробную презентацию в удобном формате!

БЕЗ КОМИССИИ ID: 101934 Рейтинг8.3 КлассА

Москва, улица Щепкина, 33

Проспект Мира → 516 м
~ 5 мин
Арендная плата в месяц 871 750 ₽ 33 000 ₽/м² в год С учётом НДС
Характеристики 317 м² 2 этаж Готово к въезду
Преимущества
  • Класс А
  • Пешком от метро
  • Кондиционирование и вентиляция
  • Свой паркинг
  • Несколько провайдеров связи
  • Развитая инфраструктура

Предлагаем в прямую аренду помещение под офис класса А общей площадью 317 квадр. метров в бизнес-центре "Этмиа"... подробнее

Презентация по предложению

Собираете информацию? Получите подробную презентацию в удобном формате!

БЕЗ КОМИССИИ ID: 284255 Рейтинг8.4 КлассB+

Москва, улица Щепкина, 40 с1

Проспект Мира → 361 м
~ 4 мин
Арендная плата в месяц 742 000 ₽ 31 800 ₽/м² в год С учётом НДС
Характеристики 280 м² 8 этаж Под отделку
Преимущества
  • Класс B+
  • Пешком от метро
  • Кондиционирование и вентиляция
  • Свой паркинг

Сдается в долгосрочную аренду офис класса B+ площадью 280 кв. метров в бизнес-центре... подробнее

Презентация по предложению

Собираете информацию? Получите подробную презентацию в удобном формате!

БЕЗ КОМИССИИ ID: 236178 Рейтинг5.7 КлассB

Москва, проспект Мира, 26с1

Проспект Мира → 208 м
~ 2 мин
Арендная плата в месяц 720 000 ₽ 36 000 ₽/м² в год С учётом НДС
Характеристики 240 м² 2 этаж Готово к въезду
Преимущества
  • Класс B
  • Пешком от метро
  • Кондиционирование и вентиляция
  • Развитая инфраструктура

Сдается в прямую аренду офисный блок класса B общей площадью 240 квадратных метров в бизнес-центре "Аптекарский огород"... подробнее

Презентация по предложению

Собираете информацию? Получите подробную презентацию в удобном формате!

БЕЗ КОМИССИИ ID: 1264888 Рейтинг7.6 КлассB

Москва, улица Щепкина, 49

Проспект Мира → 465 м
~ 5 мин
Арендная плата в месяц 802 083 ₽ 38 500 ₽/м² в год С учётом НДС
Характеристики 250 м² 4 этаж Готово к въезду
Преимущества
  • Класс B
  • Пешком от метро
  • Кондиционирование и вентиляция
  • Свой паркинг

Собственник сдает в долгосрочную прямую аренду офисный блок класса B общей площадью 250 квадратных метров в историческом бизнес-центре... подробнее

>

Виртуальный тур

Презентация по предложению

Собираете информацию? Получите подробную презентацию в удобном формате!

Посмотреть все похожие предложения
Отнеситесь рационально к процессу поиска нового офиса!

Просто ответьте на 3 вопроса, и наши специалисты сами предложат оптимальные варианты под ваш бюджет

.