8.2
Смотреть все фото
БЕЗ КОМИССИИ ID: 79691 Рейтинг8.3 КлассB+

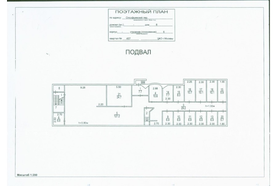
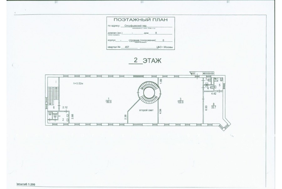
Москва, Олсуфьевский переулок, 8 с6

Фрунзенская → 919 м
~ 9 мин
Арендная плата в месяц 3 935 400 ₽ 25 000 ₽/м² в год С учётом НДС

Презентация по предложению

Собираете информацию? Получите подробную презентацию в удобном формате!

Площадь 1 889 м²
Состояние Готово к въезду
Планировка Смешанная
Этаж 1 - 3

Описание

Преимущества
  • Класс B+
  • Пешком от метро
  • Кондиционирование и вентиляция
  • Свой паркинг
Предлагается в прямую аренду офис класса B+ общей площадью 1889 квадратных метров в недавно отреконструированном бизнес-центре.

Москва, ЦАО, Олсуфьевский переулок, 8 с6

Удобная локация здания:
- Автомобиль: близость транспортных магистралей, таких как Комсомольский проспект, Садовое Кольцо и других.
- Возможность аренды парковочных мест.
- Ближайшее метро: от метро "Фрунзенская" всего 8 мин пешком

Офис класса B+:
- Офис с отделкой, полностью готов к аренде
- Вентиляция: Приточно-вытяжная вентиляция
- Кондиционирование: сплит-системы

Возможность заключения контракта в соответствии с 44ФЗ по госзакупкам.

Если данное предложение подходит Вашему запросу:

1. Получите презентацию в течение 10 минут в Whatsapp или на почту с фотографиями и планировкой, чтобы обсудить данный вариант с коллегами или переслать руководству. Для этого позвоните по телефону, указанному в объявлении.
2. Мы готовы ответить на любые Ваши вопросы о помещении и коммерческих условиях аренды.
3. Оперативно организуем просмотр помещения с менеджерами на объекте или подготовим виртуальный тур.

Звоните нам в любое время. По будням мы сможем ответить на Ваши вопросы до 19:00. В выходные или вечернее время мы передадим Ваш контакт нашему менеджеру по аренде.

Коммерческие условия

Арендная плата 3 935 420 ₽
Ставка арендной платы 25 000 ₽ м²/год
Эксплуатационные расходы Включены в ставку
Налоги С учётом НДС
Тип договора Прямая аренда
Срок договора от 11 месяцев
Размер платежей 1 месяц
Обеспечительный платеж 1 месяц
Статус Сдан

О бизнес-центре

Класс B+
Этажность 4
Лифты Нет
Общая площадь 1 932 м²
Год постройки 1998
Паркинг Наземный
Вентиляция приточно-вытяжная
Кондиционирование сплит-системы
Телекоммуникации Интернет/Телефония

Расположение

Подробная презентацию по предложению

Собираете информацию? Получите подробную презентацию в удобном формате, чтобы обсудить вариант с коллегами или переслать руководству!

Похожие предложения в других зданиях

БЕЗ КОМИССИИ ID: 212374 Рейтинг7.0 КлассB+

Москва, улица Тимура Фрунзе, 11 с15

Парк культуры → 329 м
~ 4 мин
Арендная плата в месяц 4 112 500 ₽ 23 500 ₽/м² в год С учётом НДС
Характеристики 2 100 м² 1 - 4 этаж Готово к въезду
Преимущества
  • Класс B+
  • Пешком от метро
  • Кондиционирование и вентиляция
  • Свой паркинг

Предлагается в долгосрочную аренду помещение под офис класса B+ площадью 2100 кв. метров в историческом бизнес-центре... подробнее

Презентация по предложению

Собираете информацию? Получите подробную презентацию в удобном формате!

БЕЗ КОМИССИИ ID: 137888 Рейтинг7.4 КлассB+

Москва, Большой Саввинский переулок, 2-4-6 с10

Киевская → 1.22 км
~ 12 мин
Арендная плата в месяц 3 750 000 ₽ 25 000 ₽/м² в год С учётом НДС
Характеристики 1 800 м² 0 - 3 этаж Готово к въезду
Преимущества
  • Класс B+
  • Пешком от метро
  • Кондиционирование и вентиляция
  • Свой паркинг

Предлагаем в долгосрочную прямую аренду офисный блок класса B+ общей площадью 1800 квадр. метров в бизнес-центре "Уффици"... подробнее

Презентация по предложению

Собираете информацию? Получите подробную презентацию в удобном формате!

БЕЗ КОМИССИИ ID: 1281815 Рейтинг6.2 КлассB

Москва, Земледельческий переулок, 15

Смоленская → 965 м
~ 10 мин
Арендная плата в месяц 4 071 375 ₽ 24 700 ₽/м² в год С учётом НДС
Характеристики 1 980 м² 2 - 5 этаж Готово к въезду
Преимущества
  • Класс B
  • Пешком от метро
  • Кондиционирование и вентиляция
  • Свой паркинг

Сдаем в прямую аренду офисный блок класса B площадью 1980 квадратных метров в бизнес-центре... подробнее

Презентация по предложению

Собираете информацию? Получите подробную презентацию в удобном формате!

БЕЗ КОМИССИИ ID: 247379 Рейтинг8.3 КлассB+

Москва, Большой Саввинский переулок, 16/14 с3

Спортивная → 1.15 км
~ 11 мин
Арендная плата в месяц 3 995 833 ₽ 25 000 ₽/м² в год С учётом НДС
Характеристики 1 918 м² -1 - 3 этаж Готово к въезду
Преимущества
  • Класс B+
  • Пешком от метро
  • Кондиционирование и вентиляция
  • Свой паркинг

Предлагается в прямую аренду офисный блок класса B+ общей площадью 1918 кв.м в недавно отреконструированном бизнес-центре... подробнее

Презентация по предложению

Собираете информацию? Получите подробную презентацию в удобном формате!

БЕЗ КОМИССИИ ID: 252203 Рейтинг6.6 КлассB

Москва, Малая Пироговская улица, 18 с1

Спортивная → 671 м
~ 7 мин
Арендная плата в месяц 4 005 867 ₽ 22 400 ₽/м² в год С учётом НДС
Характеристики 2 146 м² 1 - 5 этаж Готово к въезду
Преимущества
  • Класс B
  • Пешком от метро
  • Кондиционирование и вентиляция
  • Свой паркинг
  • Несколько провайдеров связи
  • Развитая инфраструктура

Предлагаем в долгосрочную аренду офисный блок класса B площадью 2146 квадратных метров в историческом недавно отреконструированном бизнес-центре... подробнее

Презентация по предложению

Собираете информацию? Получите подробную презентацию в удобном формате!

Посмотреть все похожие предложения
Отнеситесь рационально к процессу поиска нового офиса!

Просто ответьте на 3 вопроса, и наши специалисты сами предложат оптимальные варианты под ваш бюджет

.