8.2
Смотреть все фото
БЕЗ КОМИССИИ ID: 1330109 Рейтинг8.2 КлассB+
Бизнес-центр «Омега плаза II»

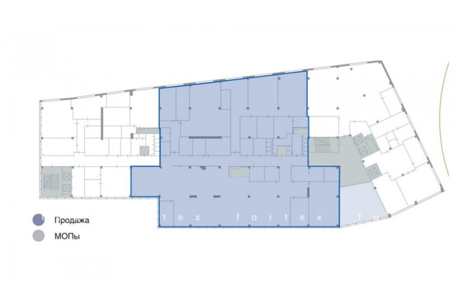
Продажа офиса 1301 м²

Москва, улица Ленинская Слобода, 19 с6

Автозаводская → 519 м
~ 5 мин
Стоимость 275.92 млн ₽ 212 100 ₽/м²

Презентация по предложению

Собираете информацию? Получите подробную презентацию в удобном формате!

Площадь 1 301 м²
Состояние Готово к въезду
Планировка Смешанная
Этаж 6

Описание

Преимущества
  • Класс B+
  • Пешком от метро
  • Кондиционирование и вентиляция
  • Свой паркинг
Продается офисный блок общей площадью 1301 квадратных метров в бизнес-центре "Омега плаза II".

Помещение можно адаптировать под любой бизнес благодаря функциональной планировке - идеальный баланс комфорта и экономической выгоды. Оптимальное решение для стабильного бизнеса или выгодных инвестиций.

Офис класса B+:
- Офис с отделкой, полностью готов к въезду
- Вентиляция: Приточно-вытяжная вентиляция
- Кондиционирование: центральное

О офисном центре:
Москва, ЮАО, улица Ленинская Слобода, 19 с6

Удобное расположение здания для всех видов транспорта:
- Автомобиль: близость транспортных магистралей, таких как Третье Транспортное Кольцо и других.
- Возможность аренды парковочных мест.
- Ближайшее метро: от метро "Автозаводская" всего 5 мин пешком



Если данное предложение подходит Вашему запросу:

1. Мы отправим Вам подробную презентацию с планировкой и фотографиями в течение 10 минут после звонка, чтобы Вы могли поделиться информацией с руководством или с коллегами.
2. Мы готовы ответить на любые Ваши вопросы о помещении и коммерческих условиях продажи.

Звоните нам в любое время. По будням мы сможем ответить на Ваши вопросы до 19:00. В выходные или вечернее время мы передадим Ваш контакт нашему менеджеру.

О бизнес-центре

Класс B+
Этажность 6
Лифты Есть
Общая площадь 110 000 м²
Год постройки 2009
Паркинг Наземный
Вентиляция приточно-вытяжная
Кондиционирование центральное
Телекоммуникации Интернет/Телефония

Расположение

Подробная презентацию по предложению

Собираете информацию? Получите подробную презентацию в удобном формате, чтобы обсудить вариант с коллегами или переслать руководству!

Похожие предложения в других зданиях

БЕЗ КОМИССИИ ID: 1290206 Рейтинг9.3 КлассB

Москва, улица Ленинская Слобода, 19 с5

Автозаводская → 721 м
~ 7 мин
Стоимость 262 370 732 ₽ 214 700 ₽/м²
Характеристики 1 222 м² 1 - 3 этаж Готово к въезду
Преимущества
  • Класс B
  • Пешком от метро
  • Кондиционирование и вентиляция
  • Свой паркинг

Продается офис общей площадью 1222 кв. метров в бизнес-центре. .. подробнее

Презентация по предложению

Собираете информацию? Получите подробную презентацию в удобном формате!

БЕЗ КОМИССИИ ID: 256851 Рейтинг8.6 КлассB+

Москва, улица Ленинская Слобода, 19

Автозаводская → 497 м
~ 5 мин
Стоимость 975 002 462 ₽ 231 100 ₽/м²
Характеристики 4 219 м² 2 этаж Готово к въезду
Преимущества
  • Класс B+
  • Пешком от метро
  • Кондиционирование и вентиляция
  • Свой паркинг
  • Несколько провайдеров связи
  • Развитая инфраструктура

Продается офис общей площадью 4219 квадратных метров в бизнес-центре "Омега Плаза". .. подробнее

Презентация по предложению

Собираете информацию? Получите подробную презентацию в удобном формате!

БЕЗ КОМИССИИ ID: 1373690 Рейтинг5.5 КлассB

Москва, Автозаводская улица, 17 к1

Автозаводская → 307 м
~ 3 мин
Стоимость 45 000 138 ₽ 284 800 ₽/м²
Характеристики 158 м² 2 этаж Готово к въезду
Преимущества
  • Класс B
  • Пешком от метро
  • Кондиционирование и вентиляция
  • Развитая инфраструктура

В продаже офис общей площадью 158 квадратных метров в бизнес-центре. .. подробнее

Презентация по предложению

Собираете информацию? Получите подробную презентацию в удобном формате!

БЕЗ КОМИССИИ ID: 1300158 Рейтинг6.5 КлассB

Москва, Дубининская улица, 63 с8

Павелецкая → 1.41 км
~ 14 мин
Стоимость 159 999 840 ₽ 238 100 ₽/м²
Характеристики 672 м² -1 - 1 этаж Под отделку
Преимущества
  • Класс B
  • Пешком от метро
  • Кондиционирование и вентиляция

Продается офисное помещение площадью 672 кв.м в бизнес-центре. .. подробнее

Презентация по предложению

Собираете информацию? Получите подробную презентацию в удобном формате!

БЕЗ КОМИССИИ ID: 1330004 Рейтинг5.7 КлассB

Москва, Павловская улица, 18 с2

Тульская → 449 м
~ 4 мин
Стоимость 1 085 000 010 ₽ 257 400 ₽/м²
Характеристики 4 215 м² -1 - 5 этаж Готово к въезду
Преимущества
  • Класс B
  • Пешком от метро
  • Кондиционирование и вентиляция
  • Свой паркинг

Продается офисный блок площадью 4215 кв. метров в бизнес-центре. .. подробнее

Презентация по предложению

Собираете информацию? Получите подробную презентацию в удобном формате!

Посмотреть все похожие предложения
Отнеситесь рационально к процессу поиска нового офиса!

Просто ответьте на 3 вопроса, и наши специалисты сами предложат оптимальные варианты под ваш бюджет