8.2
Смотреть все фото
БЕЗ КОМИССИИ ID: 1380692 Рейтинг8.5 КлассB+
Бизнес-центр «Онегин»

Аренда офиса 955 м²

Москва, улица Малая Полянка, 2

Полянка → 118 м
~ 1 мин
Арендная плата в месяц 24 432 400 ₽ 307 000 ₽/м² в год С учётом НДС

Презентация по предложению

Собираете информацию? Получите подробную презентацию в удобном формате!

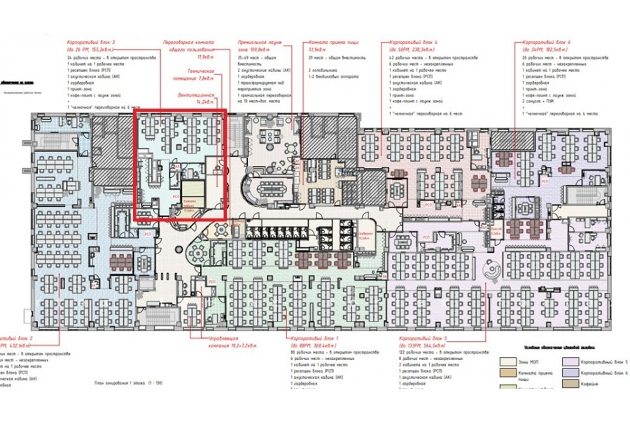
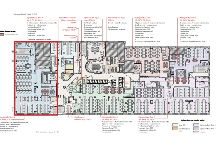
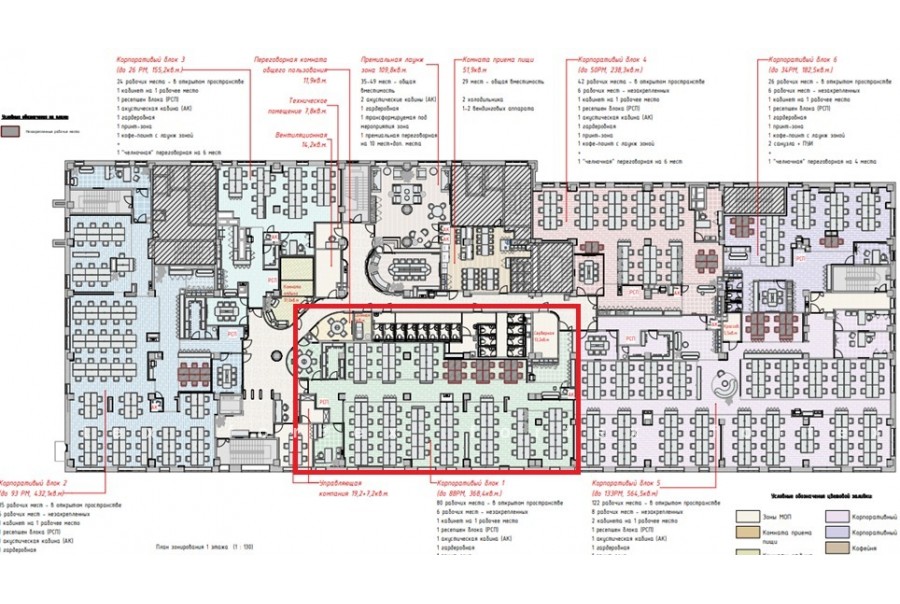
Площадь 955 м²
Состояние Готово к въезду
Планировка Смешанная
Этаж 2

Описание

Преимущества
  • Класс B+
  • Пешком от метро
  • Кондиционирование и вентиляция
  • Свой паркинг
  • Несколько провайдеров связи
Предлагается в долгосрочную прямую аренду комфортабельный сервисный офис на 207 рабочих мест в бизнес-центре "Онегин".

Сервисный офис - это современное офисное решение. Высококлассная дизайнерская отделка, полностью укомплектованные рабочие места, мягкие зоны отдыха, переговорные комнаты - это готовый к работе офис. Ежедневная уборка, обеспечение расходными материалами, включая кухни и санузлы, любая АХО-поддержка - это сервис, который уже включен в стоимость.

Услуги, включенные в арендную плату:
- Качественная мебель для комфортной работы
- Бронирование переговорных комнат
- Печать, IT-услуги и техническое обслуживание офиса
- Зоны отдыха, чай, кофе, вода
- Пополнение расходных материалов
- Ежедневная уборка офиса
- Высокоскоростной интернет

Офис класса B+:
- Помещение готово к въезду
- Вентиляция: Приточно-вытяжная вентиляция
- Кондиционирование: центральное

О офисном здании "Онегин" :
Москва, ЦАО, улица Малая Полянка, 2

Удобное расположение в пределах Садового кольца:
- Возможность аренды парковочных мест.
- Ближайшее метро: буквально 1 мин пешком от метро "Полянка"


Что еще можно узнать о предложении:

1. Мы отправим Вам подробную презентацию с планировкой и фотографиями в течение 10 минут после звонка, чтобы Вы могли поделиться информацией с руководством или с коллегами.
2. Задайте любые вопросы менеджеру по телефону, готовы обсуждать любые предложения по финансовым условиям договора аренды.
3. Оперативно организуем просмотр помещения с менеджерами на объекте или подготовим виртуальный тур.

Вы можете позвонить нам в любое время. Мы ответим на Ваши вопросы по будням до 19:00, а поздно вечером или в выходные зафиксируем Ваш контакт и перезвоним в рабочее время.

Коммерческие условия

Арендная плата 24 432 440 ₽
Ставка арендной платы 251 600 ₽ м²/год
Эксплуатационные расходы Включены в ставку
Налоги Без НДС
Тип договора Прямая аренда
Срок договора от 11 месяцев
Размер платежей 1 месяц
Обеспечительный платеж 2 месяц
Статус Свободен

О бизнес-центре

Класс B+
Этажность 3
Лифты Нет
Общая площадь 9 600 м²
Год постройки 2007
Паркинг Наземный
Вентиляция приточно-вытяжная
Кондиционирование центральное
Телекоммуникации Интернет/Телефония

Расположение

Подробная презентацию по предложению

Собираете информацию? Получите подробную презентацию в удобном формате, чтобы обсудить вариант с коллегами или переслать руководству!

Отнеситесь рационально к процессу поиска нового офиса!

Просто ответьте на 3 вопроса, и наши специалисты сами предложат оптимальные варианты под ваш бюджет

.