8.2

Виртуальный тур

Смотреть все фото
БЕЗ КОМИССИИ ID: 1252674 Рейтинг7.4 КлассB

Москва, улица Орджоникидзе, 11 с1

Ленинский проспект → 712 м
~ 7 мин
Арендная плата в месяц 1 381 200 ₽ 25 000 ₽/м² в год С учётом НДС

Презентация по предложению

Собираете информацию? Получите подробную презентацию в удобном формате!

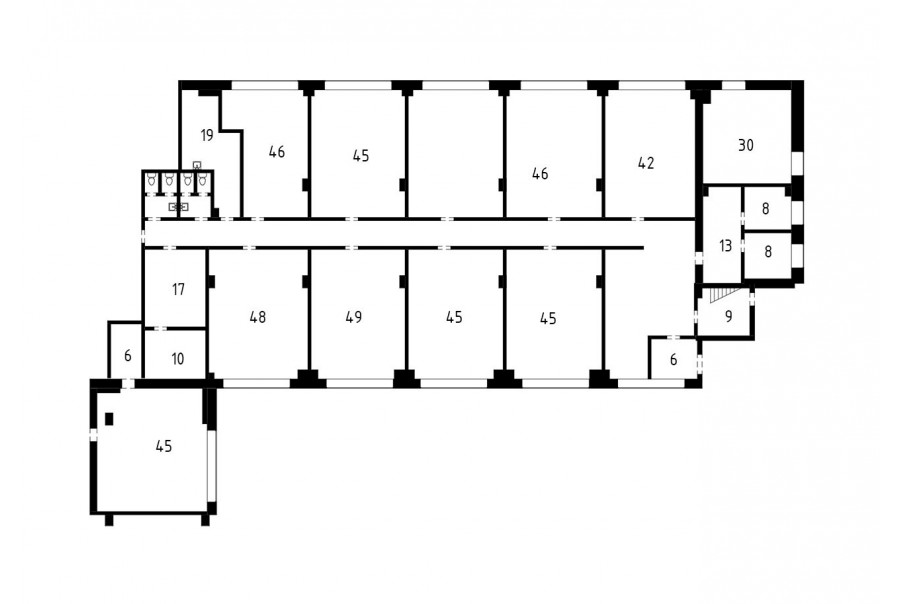
Площадь 663 м²
Состояние Готово к въезду
Планировка Смешанная
Этаж 3

Описание

Преимущества
  • Класс B
  • Пешком от метро
  • Кондиционирование и вентиляция
  • Свой паркинг
  • Несколько провайдеров связи
  • Развитая инфраструктура
Сдаем в долгосрочную прямую аренду офис класса B площадью 663 кв.м в бизнес-центре.

Москва, ЮАО, улица Орджоникидзе, 11 с1

Удобная локация здания:
- Автомобиль: близость транспортных магистралей, таких как Третье Транспортное Кольцо, Ленинский проспект и других.
- Возможность аренды парковочных мест.
- Ближайшее метро: от метро "Ленинский проспект" всего 8 мин пешком

Офис класса B:
- Помещение с отделкой, готово к въезду
- Вентиляция: Приточно-вытяжная вентиляция
- Кондиционирование: сплит-системы


Что еще можно узнать о предложении:

1. Мы отправим Вам подробную презентацию с планировкой и фотографиями в течение 10 минут после звонка, чтобы Вы могли поделиться информацией с руководством или с коллегами.
2. Ответим на любые Ваши вопросы, готовы обсуждать любые предложения по коммерческим условиям аренды помещения.
3.

Вы можете позвонить нам в любое время. Мы ответим на Ваши вопросы по будням до 19:00, а поздно вечером или в выходные сможем передать Ваш контакт нашему менеджеру.

Коммерческие условия

Арендная плата 1 255 720 ₽
Ставка арендной платы 25 000 ₽ м²/год
Эксплуатационные расходы Включены в ставку
Налоги С учётом НДС
Тип договора Прямая аренда
Срок договора от 11 месяцев
Размер платежей 1 месяц
Обеспечительный платеж 2 месяц
Статус Сдан

О бизнес-центре

Класс B
Этажность 11
Лифты Есть
Общая площадь 50 000 м²
Год постройки 2007
Паркинг Наземный
Вентиляция приточно-вытяжная
Кондиционирование сплит-системы
Телекоммуникации Интернет/Телефония

Расположение

Подробная презентацию по предложению

Собираете информацию? Получите подробную презентацию в удобном формате, чтобы обсудить вариант с коллегами или переслать руководству!

Похожие предложения в других зданиях

БЕЗ КОМИССИИ ID: 1282525 Рейтинг6.7 КлассB

Москва, улица Вавилова, 1

Ленинский проспект → 516 м
~ 5 мин
Арендная плата в месяц 1 515 800 ₽ 26 400 ₽/м² в год С учётом НДС
Характеристики 689 м² 2 этаж Готово к въезду
Преимущества
  • Класс B
  • Пешком от метро
  • Кондиционирование и вентиляция

Собственник сдает в долгосрочную аренду офис класса B общей площадью 689 кв.м в бизнес-центре... подробнее

Презентация по предложению

Собираете информацию? Получите подробную презентацию в удобном формате!

БЕЗ КОМИССИИ ID: 280839 Рейтинг7.8 КлассB

Москва, улица Стасовой, 4

Ленинский проспект → 1.04 км
~ 10 мин
Арендная плата в месяц 1 252 100 ₽ 22 800 ₽/м² в год С учётом НДС
Характеристики 659 м² 2 - 5 этаж Готово к въезду
Преимущества
  • Класс B
  • Пешком от метро
  • Кондиционирование и вентиляция
  • Свой паркинг
  • Развитая инфраструктура

Предлагается в долгосрочную прямую аренду офисный блок класса B общей площадью 659 кв.м в бизнес-центре "Донской Посад"... подробнее

Презентация по предложению

Собираете информацию? Получите подробную презентацию в удобном формате!

БЕЗ КОМИССИИ ID: 1372690 Рейтинг7.5 КлассB

Москва, 2-й Рощинский проезд, 8

Ленинский проспект → 1.64 км
~ 16 мин
Арендная плата в месяц 1 548 925 ₽ 26 600 ₽/м² в год С учётом НДС
Характеристики 700 м² 13 этаж Готово к въезду
Преимущества
  • Класс B
  • Пешком от метро
  • Кондиционирование и вентиляция
  • Свой паркинг
  • Несколько провайдеров связи
  • Развитая инфраструктура

Предлагается в долгосрочную прямую аренду офисный блок класса B площадью 700 квадратных метров в историческом бизнес-центре "Серпуховской двор"... подробнее

Презентация по предложению

Собираете информацию? Получите подробную презентацию в удобном формате!

БЕЗ КОМИССИИ ID: 246306 Рейтинг6.0 КлассB

Москва, Малая Калужская улица, 19

Шаболовская → 1.25 км
~ 13 мин
Арендная плата в месяц 1 184 167 ₽ 24 500 ₽/м² в год С учётом НДС
Характеристики 580 м² 3 этаж Готово к въезду
Преимущества
  • Класс B
  • Пешком от метро
  • Кондиционирование и вентиляция
  • Свой паркинг

Предлагаем в прямую аренду офисный блок класса B общей площадью 580 квадр. метров в бизнес-центре "Влакра 3"... подробнее

Презентация по предложению

Собираете информацию? Получите подробную презентацию в удобном формате!

БЕЗ КОМИССИИ ID: 150191 Рейтинг6.0 КлассB

Москва, 4-й Рощинский проезд, 20 с1

Тульская → 1.26 км
~ 13 мин
Арендная плата в месяц 1 381 500 ₽ 27 000 ₽/м² в год С учётом НДС
Характеристики 614 м² 1 этаж Готово к въезду
Преимущества
  • Класс B
  • Пешком от метро
  • Кондиционирование и вентиляция
  • Свой паркинг

Предлагается в долгосрочную аренду офис класса B общей площадью 614 кв. метров в недавно отреконструированном бизнес-центре... подробнее

Презентация по предложению

Собираете информацию? Получите подробную презентацию в удобном формате!

Посмотреть все похожие предложения
Отнеситесь рационально к процессу поиска нового офиса!

Просто ответьте на 3 вопроса, и наши специалисты сами предложат оптимальные варианты под ваш бюджет

.