8.2

Виртуальный тур

Смотреть все фото
БЕЗ КОМИССИИ ID: 1232432 Рейтинг8.9 КлассА
Бизнес-центр «Ост Хаус»

Аренда офиса 839 м²

Москва, Барыковский переулок, 2

Кропоткинская → 597 м
~ 6 мин
Арендная плата в месяц 5 159 800 ₽ 73 800 ₽/м² в год С учётом НДС

Презентация по предложению

Собираете информацию? Получите подробную презентацию в удобном формате!

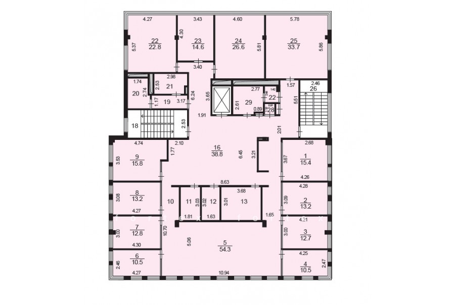
Площадь 839 м²
Состояние Готово к въезду
Планировка Смешанная
Этаж 5 - 6

Описание

Преимущества
  • Класс А
  • Пешком от метро
  • Кондиционирование и вентиляция
  • Свой паркинг
Сдаем в долгосрочную прямую аренду офисный блок класса А площадью 839 кв. метров в бизнес-центре "Ост Хаус".

Москва, ЦАО, Барыковский переулок, 2

Удобное расположение в пределах Садового кольца:
- Возможность аренды парковочных мест.
- Ближайшее метро: от метро "Кропоткинская" всего 6 мин пешком

Офис класса А:
- Помещение с отделкой, готово к въезду
- Вентиляция: Приточно-вытяжная вентиляция
- Кондиционирование: центральное

Возможность заключения контракта в соответствии с 44ФЗ по госзакупкам.

Если предложение предварительно Вам подходит:

1. Получите презентацию в течение 10 минут в Whatsapp или на почту с фотографиями и планировкой, чтобы обсудить данный вариант с коллегами или переслать руководству. Для этого позвоните по телефону, указанному в объявлении.
2. Задайте любые вопросы менеджеру по телефону, готовы обсуждать любые предложения по финансовым условиям договора аренды.
3. Проводим показы ежедневно, договоримся на удобное для Вас время. Можем организовать виртуальный тур по офисному блоку.

Звоните нам в любое время. По будням мы сможем ответить на Ваши вопросы до 19:00. В выходные или вечернее время мы передадим Ваш контакт нашему менеджеру по аренде.

Коммерческие условия

Арендная плата 4 195 070 ₽
Ставка арендной платы 73 800 ₽ м²/год
Эксплуатационные расходы Включены в ставку
Налоги С учётом НДС
Тип договора Прямая аренда
Срок договора от 11 месяцев
Размер платежей 1 месяц
Обеспечительный платеж 1 месяц
Статус Сдан

О бизнес-центре

Класс А
Этажность 6
Лифты Есть
Общая площадь 3 250 м²
Год постройки 2008
Паркинг Подземный
Вентиляция приточно-вытяжная
Кондиционирование центральное
Телекоммуникации Интернет/Телефония

Расположение

Подробная презентацию по предложению

Собираете информацию? Получите подробную презентацию в удобном формате, чтобы обсудить вариант с коллегами или переслать руководству!

Похожие предложения в других зданиях

БЕЗ КОМИССИИ ID: 110171 Рейтинг9.0 КлассА

Москва, Коробейников переулок, 1 с1а

Парк культуры → 602 м
~ 6 мин
Арендная плата в месяц 4 560 000 ₽ 68 400 ₽/м² в год С учётом НДС
Характеристики 800 м² 3 этаж Готово к въезду
Преимущества
  • Класс А
  • Пешком от метро
  • Кондиционирование и вентиляция
  • Свой паркинг

Предлагаем в долгосрочную аренду помещение под офис класса А площадью 800 кв.м в бизнес-центре "Кеско Хаус"... подробнее

Презентация по предложению

Собираете информацию? Получите подробную презентацию в удобном формате!

БЕЗ КОМИССИИ ID: 222154 Рейтинг8.7 КлассА

Москва, Бутиковский переулок, 7

Парк культуры → 778 м
~ 8 мин
Арендная плата в месяц 4 610 392 ₽ 76 100 ₽/м² в год С учётом НДС
Характеристики 727 м² 5 этаж Готово к въезду
Преимущества
  • Класс А
  • Пешком от метро
  • Кондиционирование и вентиляция
  • Свой паркинг
  • Развитая инфраструктура

Сдаем в долгосрочную прямую аренду помещение под офис класса А общей площадью 727 квадратных метров в бизнес-центре "Бутик-Офис"... подробнее

Презентация по предложению

Собираете информацию? Получите подробную презентацию в удобном формате!

БЕЗ КОМИССИИ ID: 1232757 Рейтинг9.3 КлассА

Москва, Гоголевский бульвар, 11

Кропоткинская → 193 м
~ 3 мин
Арендная плата в месяц 5 318 860 ₽ 70 000 ₽/м² в год С учётом НДС
Характеристики 912 м² 5 этаж Готово к въезду
Преимущества
  • Класс А
  • Пешком от метро
  • Кондиционирование и вентиляция
  • Свой паркинг

Сдается в прямую аренду офисное помещение класса А площадью 912 квадратных метров в бизнес-центре "Гоголевский"... подробнее

>

Виртуальный тур

Презентация по предложению

Собираете информацию? Получите подробную презентацию в удобном формате!

БЕЗ КОМИССИИ ID: 1183249 Рейтинг9.3 КлассА

Москва, Гоголевский бульвар, 11

Кропоткинская → 193 м
~ 3 мин
Арендная плата в месяц 4 199 100 ₽ 70 000 ₽/м² в год С учётом НДС
Характеристики 720 м² 3 этаж Готово к въезду
Преимущества
  • Класс А
  • Пешком от метро
  • Кондиционирование и вентиляция
  • Свой паркинг

Предлагаем в прямую аренду помещение под офис класса А общей площадью 720 кв.м в бизнес-центре "Гоголевский"... подробнее

>

Виртуальный тур

Презентация по предложению

Собираете информацию? Получите подробную презентацию в удобном формате!

БЕЗ КОМИССИИ ID: 307446 Рейтинг8.1 КлассB

Москва, Зубовский бульвар, 17 с1

Парк культуры → 220 м
~ 2 мин
Арендная плата в месяц 5 001 167 ₽ 81 100 ₽/м² в год С учётом НДС
Характеристики 740 м² 8 - 9 этаж Готово к въезду
Преимущества
  • Класс B
  • Пешком от метро
  • Кондиционирование и вентиляция
  • Свой паркинг
  • Развитая инфраструктура

Собственник сдает в долгосрочную прямую аренду офис класса B площадью 740 квадр. метров в бизнес-центре... подробнее

>

Виртуальный тур

Презентация по предложению

Собираете информацию? Получите подробную презентацию в удобном формате!

Посмотреть все похожие предложения
Отнеситесь рационально к процессу поиска нового офиса!

Просто ответьте на 3 вопроса, и наши специалисты сами предложат оптимальные варианты под ваш бюджет

.