8.2

Виртуальный тур

Смотреть все фото
БЕЗ КОМИССИИ ID: 1269812 Рейтинг8.6 КлассB+
Бизнес-центр «Отрадное»

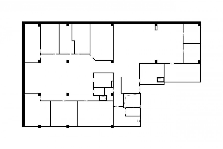
Аренда офиса 627 м²

Москва, Отрадная улица, 2Б

Отрадное → 691 м
~ 7 мин
Арендная плата в месяц 1 408 100 ₽ 27 000 ₽/м² в год С учётом НДС

Презентация по предложению

Собираете информацию? Получите подробную презентацию в удобном формате!

Площадь 627 м²
Состояние Готово к въезду
Планировка Кабинетная
Этаж 6

Описание

Преимущества
  • Класс B+
  • Пешком от метро
  • Кондиционирование и вентиляция
  • Свой паркинг
  • Несколько провайдеров связи
Собственник сдает в долгосрочную аренду помещение под офис класса B+ общей площадью 627 кв.м в бизнес-центре "Отрадное".

Москва, СВАО, Отрадная улица, 2Б

Удобная локация здания:
- Автомобиль: близость транспортных магистралей, таких как Алтуфьевское шоссе и других.
- Возможность аренды парковочных мест.
- Ближайшее метро: от метро "Отрадное" всего 7 мин пешком

Офис класса B+:
- Помещение готово к въезду
- Вентиляция: Приточно-вытяжная вентиляция
- Кондиционирование: центральное
- Презентабельный центральный рецепшн
- Круглосуточная охрана и видеонаблюдение

Возможность заключения контракта в соответствии с 44ФЗ по госзакупкам.

Если данное предложение подходит Вашему запросу:

1. Мы подготовили презентацию с информацией о помещении, фотографиями и планировкой, чтобы Вы могли поделиться ей с коллегами или руководством. Попросите об этом нашего менеджера по телефону в объявлении.
2. Ответим на любые Ваши вопросы, готовы обсуждать любые предложения по коммерческим условиям аренды помещения.
3.

Вы можете позвонить нам в любое время. Мы ответим на Ваши вопросы по будням до 19:00, а поздно вечером или в выходные сможем передать Ваш контакт нашему менеджеру.

Коммерческие условия

Арендная плата 1 280 130 ₽
Ставка арендной платы 27 000 ₽ м²/год
Эксплуатационные расходы Включены в ставку
Налоги С учётом НДС
Тип договора Прямая аренда
Срок договора от 11 месяцев
Размер платежей 1 месяц
Обеспечительный платеж 2 месяц
Статус Сдан

О бизнес-центре

Класс B+
Этажность 11
Лифты Есть
Общая площадь 35 900 м²
Год постройки 2009
Паркинг Наземный
Вентиляция приточно-вытяжная
Кондиционирование центральное
Телекоммуникации Интернет/Телефония

Расположение

Подробная презентацию по предложению

Собираете информацию? Получите подробную презентацию в удобном формате, чтобы обсудить вариант с коллегами или переслать руководству!

Похожие предложения в других зданиях

БЕЗ КОМИССИИ ID: 1321036 Рейтинг7.6 КлассB

Москва, проезд Серебрякова, 14А с5

Свиблово → 1.08 км
~ 13 мин
Арендная плата в месяц 1 470 000 ₽ 29 400 ₽/м² в год С учётом НДС
Характеристики 600 м² 2 этаж Готово к въезду
Преимущества
  • Класс B
  • Пешком от метро
  • Кондиционирование и вентиляция
  • Свой паркинг

Предлагается в долгосрочную аренду комфортабельный сервисный офис на 84 рабочих места в бизнес-центре "Сильвер Стоун"... подробнее

>

Виртуальный тур

Презентация по предложению

Собираете информацию? Получите подробную презентацию в удобном формате!

ВОЗМОЖНО ОСВОБОЖДЕНИЕ ID: 1260421 Рейтинг8.6 КлассB+

Москва, Отрадная улица, 2Б

Отрадное → 691 м
~ 7 мин
Арендная плата в месяц 1 443 750 ₽ 24 800 ₽/м² в год С учётом НДС
Характеристики 700 м² 6 этаж Готово к въезду
Преимущества
  • Класс B+
  • Пешком от метро
  • Кондиционирование и вентиляция
  • Свой паркинг
  • Несколько провайдеров связи

Сдается в долгосрочную прямую аренду помещение под офис класса B+ общей площадью 700 кв.м в бизнес-центре "Отрадное"... подробнее

>

Виртуальный тур

Презентация по предложению

Собираете информацию? Получите подробную презентацию в удобном формате!

БЕЗ КОМИССИИ ID: 1269811 Рейтинг8.6 КлассB+

Москва, Отрадная улица, 2Б

Отрадное → 691 м
~ 7 мин
Арендная плата в месяц 1 391 592 ₽ 25 800 ₽/м² в год С учётом НДС
Характеристики 646 м² 3 этаж Готово к въезду
Преимущества
  • Класс B+
  • Пешком от метро
  • Кондиционирование и вентиляция
  • Свой паркинг
  • Несколько провайдеров связи

Предлагается в долгосрочную прямую аренду офисное помещение класса B+ общей площадью 646 квадр. метров в бизнес-центре "Отрадное"... подробнее

>

Виртуальный тур

Презентация по предложению

Собираете информацию? Получите подробную презентацию в удобном формате!

Посмотреть все похожие предложения
Отнеситесь рационально к процессу поиска нового офиса!

Просто ответьте на 3 вопроса, и наши специалисты сами предложат оптимальные варианты под ваш бюджет

.