8.2

Виртуальный тур

Смотреть все фото
БЕЗ КОМИССИИ ID: 1260429 Рейтинг8.6 КлассB+
Бизнес-центр «Отрадное»

Аренда офиса 960 м²

Москва, Отрадная улица, 2Б

Отрадное → 691 м
~ 7 мин
Арендная плата в месяц 1 935 100 ₽ 24 200 ₽/м² в год С учётом НДС

Презентация по предложению

Собираете информацию? Получите подробную презентацию в удобном формате!

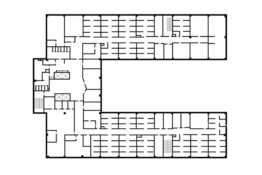
Площадь 960 м²
Состояние Готово к въезду
Планировка Смешанная
Этаж 5

Описание

Преимущества
  • Класс B+
  • Пешком от метро
  • Кондиционирование и вентиляция
  • Свой паркинг
  • Несколько провайдеров связи
Собственник сдает в долгосрочную прямую аренду офисное помещение класса B+ общей площадью 960 квадратных метров в бизнес-центре "Отрадное".

Москва, СВАО, Отрадная улица, 2Б

Удобная локация здания:
- Автомобиль: близость транспортных магистралей, таких как Алтуфьевское шоссе и других.
- Возможность аренды парковочных мест.
- Ближайшее метро: от метро "Отрадное" всего 7 мин пешком

Офис класса B+:
- Помещение готово к въезду
- Вентиляция: Приточно-вытяжная вентиляция
- Кондиционирование: центральное
- Презентабельный центральный рецепшн
- Круглосуточная охрана и видеонаблюдение

Возможность заключения контракта в соответствии с 44ФЗ по госзакупкам.

Если предложение предварительно Вам подходит:

1. Мы подготовили презентацию с информацией о помещении, фотографиями и планировкой, чтобы Вы могли поделиться ей с коллегами или руководством. Попросите об этом нашего менеджера по телефону в объявлении.
2. Ответим на любые Ваши вопросы, готовы обсуждать любые предложения по коммерческим условиям аренды помещения.
3.

Вы можете позвонить нам в любое время. Мы ответим на Ваши вопросы по будням до 19:00, а поздно вечером или в выходные сможем передать Ваш контакт нашему менеджеру.

Коммерческие условия

Арендная плата 1 759 200 ₽
Ставка арендной платы 24 200 ₽ м²/год
Эксплуатационные расходы Включены в ставку
Налоги С учётом НДС
Тип договора Прямая аренда
Срок договора от 11 месяцев
Размер платежей 1 месяц
Обеспечительный платеж 2 месяц
Статус Сдан

О бизнес-центре

Класс B+
Этажность 11
Лифты Есть
Общая площадь 35 900 м²
Год постройки 2009
Паркинг Наземный
Вентиляция приточно-вытяжная
Кондиционирование центральное
Телекоммуникации Интернет/Телефония

Расположение

Подробная презентацию по предложению

Собираете информацию? Получите подробную презентацию в удобном формате, чтобы обсудить вариант с коллегами или переслать руководству!

Похожие предложения в других зданиях

БЕЗ КОМИССИИ ID: 1377784 Рейтинг7.1 КлассB

Москва, Высоковольтный проезд, 1 с49

Отрадное → 1.98 км
~ 20 мин
Арендная плата в месяц 1 626 870 ₽ 22 000 ₽/м² в год С учётом НДС
Характеристики 889 м² 1 этаж Готово к въезду
Преимущества
  • Класс B
  • Пешком от метро
  • Кондиционирование и вентиляция
  • Свой паркинг
  • Несколько провайдеров связи
  • Развитая инфраструктура

Предлагаем в долгосрочную прямую аренду офисное помещение класса B общей площадью 889 квадр. метров в бизнес-центре "Вольт центр"... подробнее

Презентация по предложению

Собираете информацию? Получите подробную презентацию в удобном формате!

БЕЗ КОМИССИИ ID: 118166 Рейтинг8.0 КлассB

Москва, Дмитровское шоссе, 71 с1

Верхние лихоборы → 79 м
~ 1 мин
Арендная плата в месяц 1 891 667 ₽ 22 700 ₽/м² в год С учётом НДС
Характеристики 1 000 м² 8 этаж По запросу
Преимущества
  • Класс B
  • Пешком от метро
  • Кондиционирование и вентиляция

Сдается офисный блок класса B общей площадью 1000 кв. метров в бизнес-центре... подробнее

Презентация по предложению

Собираете информацию? Получите подробную презентацию в удобном формате!

БЕЗ КОМИССИИ ID: 1373477 Рейтинг8.3 КлассB+

Москва, Кольская улица, 2 к4

Свиблово → 300 м
~ 3 мин
Арендная плата в месяц 2 071 417 ₽ 26 500 ₽/м² в год С учётом НДС
Характеристики 938 м² 6 этаж Готово к въезду
Преимущества
  • Класс B+
  • Пешком от метро
  • Кондиционирование и вентиляция
  • Свой паркинг

Предлагаем в долгосрочную прямую аренду помещение под офис класса B+ общей площадью 938 квадр. метров в бизнес-центре "РТС Свиблово"... подробнее

Презентация по предложению

Собираете информацию? Получите подробную презентацию в удобном формате!

БЕЗ КОМИССИИ ID: 1311964 Рейтинг8.4 КлассB+

Москва, Дмитровское шоссе, 81

Селигерская → 705 м
~ 7 мин
Арендная плата в месяц 2 100 000 ₽ 25 200 ₽/м² в год С учётом НДС
Характеристики 1 000 м² 2 - 3 этаж Готово к въезду
Преимущества
  • Класс B+
  • Пешком от метро
  • Кондиционирование и вентиляция
  • Свой паркинг
  • Развитая инфраструктура

Предлагается в аренду высококачественный сервисный офис на 150 рабочих мест в недавно отреконструированном бизнес-центре "Apart Ville"... подробнее

Презентация по предложению

Собираете информацию? Получите подробную презентацию в удобном формате!

БЕЗ КОМИССИИ ID: 1299421 Рейтинг8.2 КлассB

Москва, улица Докукина, 16 с1

Ботанический сад → 947 м
~ 9 мин
Арендная плата в месяц 2 062 500 ₽ 27 500 ₽/м² в год С учётом НДС
Характеристики 900 м² 6 этаж Готово к въезду
Преимущества
  • Класс B
  • Пешком от метро
  • Кондиционирование и вентиляция
  • Свой паркинг
  • Несколько провайдеров связи

Предлагаем в долгосрочную прямую аренду офисное помещение класса B площадью 900 кв.м в бизнес-центре "Смена"... подробнее

Презентация по предложению

Собираете информацию? Получите подробную презентацию в удобном формате!

Посмотреть все похожие предложения
Отнеситесь рационально к процессу поиска нового офиса!

Просто ответьте на 3 вопроса, и наши специалисты сами предложат оптимальные варианты под ваш бюджет

.