8.2
Смотреть все фото
БЕЗ КОМИССИИ ID: 275724 Рейтинг8.5 КлассB+
Бизнес-центр «Парк Победы»

Аренда офиса 2468 м²

Москва, улица Василисы Кожиной, 1

Багратионовская → 1.08 км
~ 11 мин
Арендная плата в месяц 12 196 000 ₽ 59 300 ₽/м² в год С учётом НДС

Презентация по предложению

Собираете информацию? Получите подробную презентацию в удобном формате!

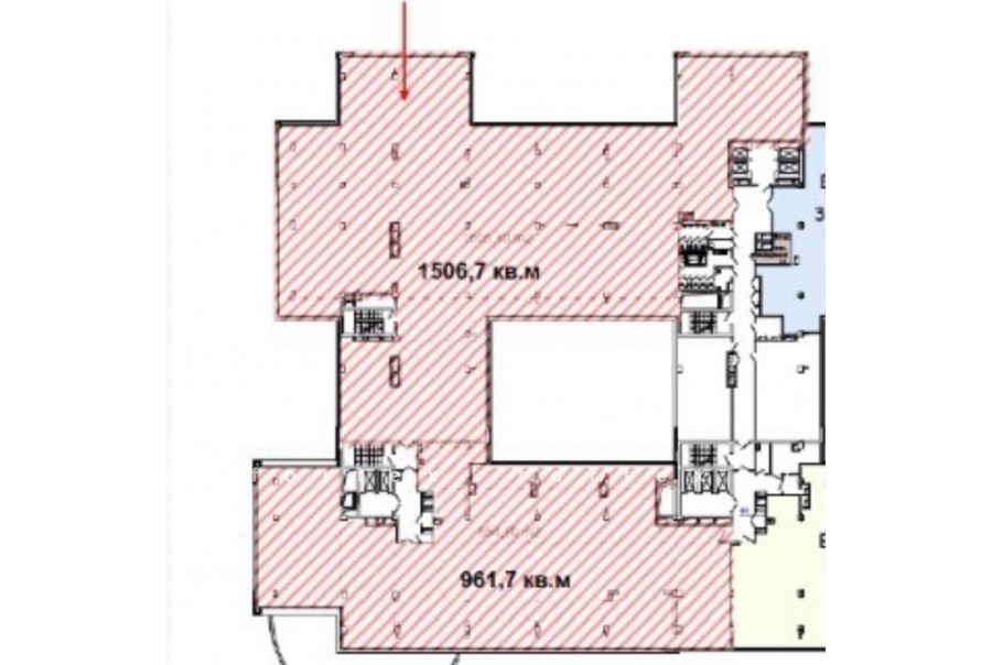
Площадь 2 468 м²
Состояние Под отделку
Планировка Открытая
Этаж 6

Описание

Преимущества
  • Класс B+
  • Пешком от метро
  • Кондиционирование и вентиляция
  • Свой паркинг
Предлагаем в прямую аренду офис класса B+ площадью 2468 кв. метров в бизнес-центре "Парк Победы".

Москва, ЗАО, улица Василисы Кожиной, 1

Удобная локация здания:
- Автомобиль: близость транспортных магистралей, таких как Кутузовский проспект, Третье Транспортное Кольцо и других.
- Возможность аренды парковочных мест.
- Ближайшее метро: от метро "Багратионовская" всего 11 мин пешком

Офис класса B+:
- Офис без отделки
- Вентиляция: Приточно-вытяжная вентиляция
- Кондиционирование: центральное
- Презентабельный центральный ресепшн
- Круглосуточная охрана и видеонаблюдение

Возможность заключения контракта в соответствии с 44ФЗ по госзакупкам.

Если предложение предварительно Вам подходит:

1. Получите презентацию в течение 10 минут в Whatsapp или на почту с фотографиями и планировкой, чтобы обсудить данный вариант с коллегами или переслать руководству. Для этого позвоните по телефону, указанному в объявлении.
2. Ответим на любые Ваши вопросы, готовы обсуждать любые предложения по коммерческим условиям аренды помещения.
3. Оперативно организуем просмотр помещения с менеджерами на объекте или подготовим виртуальный тур.

Звоните нам в любое время. По будням мы сможем ответить на Ваши вопросы до 19:00. В выходные или вечернее время мы передадим Ваш контакт нашему менеджеру по аренде.

Коммерческие условия

Арендная плата 5 771 010 ₽
Ставка арендной платы 59 300 ₽ м²/год
Эксплуатационные расходы Включены в ставку
Налоги С учётом НДС
Тип договора Прямая аренда
Срок договора Долгосрочный
Размер платежей 1 месяц
Обеспечительный платеж 2 месяц
Статус Сдан

О бизнес-центре

Класс B+
Этажность 28
Лифты Есть
Общая площадь 136 000 м²
Год постройки 2012
Паркинг Подземный
Вентиляция приточно-вытяжная
Кондиционирование центральное
Телекоммуникации Интернет/Телефония

Расположение

Подробная презентацию по предложению

Собираете информацию? Получите подробную презентацию в удобном формате, чтобы обсудить вариант с коллегами или переслать руководству!

Похожие предложения в других зданиях

БЕЗ КОМИССИИ ID: 4608 Рейтинг8.6 КлассB+

Москва, Мосфильмовская улица, 38А

Минская → 1.72 км
~ 17 мин
Арендная плата в месяц 11 083 333 ₽ 53 200 ₽/м² в год С учётом НДС
Характеристики 2 500 м² 3 этаж Под отделку
Преимущества
  • Класс B+
  • Пешком от метро
  • Кондиционирование и вентиляция
  • Свой паркинг

Предлагаем в долгосрочную прямую аренду офисное помещение класса B+ общей площадью 2500 квадратных метров в бизнес-центре... подробнее

Презентация по предложению

Собираете информацию? Получите подробную презентацию в удобном формате!

БЕЗ КОМИССИИ ID: 241734 Рейтинг9.5 КлассА

Москва, 1-й Красногвардейский проезд, 15

Выставочная → 201 м
~ 2 мин
Арендная плата в месяц 10 911 333 ₽ 52 000 ₽/м² в год С учётом НДС
Характеристики 2 518 м² 16 этаж Готово к въезду
Преимущества
  • Класс А
  • Пешком от метро
  • Кондиционирование и вентиляция
  • Свой паркинг

Предлагается в аренду офисное помещение класса А площадью 2518 кв.м в бизнес-центре "Меркурий Тауэр"... подробнее

Презентация по предложению

Собираете информацию? Получите подробную презентацию в удобном формате!

БЕЗ КОМИССИИ ID: 356490 Рейтинг7.6 КлассB+

Москва, Университетский проспект, 12

Ломоносовский проспект → 1.43 км
~ 14 мин
Арендная плата в месяц 10 633 333 ₽ 58 000 ₽/м² в год С учётом НДС
Характеристики 2 200 м² 8 - 9 этаж Готово к въезду
Преимущества
  • Класс B+
  • Пешком от метро
  • Кондиционирование и вентиляция
  • Свой паркинг
  • Развитая инфраструктура

Предлагаем в долгосрочную прямую аренду офисное помещение класса B+ общей площадью 2200 кв. метров в недавно отреконструированном бизнес-центре "Воробьёвский"... подробнее

Презентация по предложению

Собираете информацию? Получите подробную презентацию в удобном формате!

БЕЗ КОМИССИИ ID: 1308952 Рейтинг9.1 КлассА

Москва, улица Можайский Вал, 8

Киевская → 822 м
~ 8 мин
Арендная плата в месяц 14 625 177 ₽ 62 800 ₽/м² в год С учётом НДС
Характеристики 2 796 м² 2 - 5 этаж Готово к въезду
Преимущества
  • Класс А
  • Пешком от метро
  • Кондиционирование и вентиляция
  • Свой паркинг

Сдается в долгосрочную аренду офис класса А площадью 2796 кв. метров в бизнес-центре "Атлантик"... подробнее

Презентация по предложению

Собираете информацию? Получите подробную презентацию в удобном формате!

БЕЗ КОМИССИИ ID: 1322907 Рейтинг8.0 КлассB

Москва, Нежинская улица, 13А

Давыдково → 1.66 км
~ 17 мин
Арендная плата в месяц 11 250 000 ₽ 54 000 ₽/м² в год С учётом НДС
Характеристики 2 500 м² 1 - 3 этаж Под отделку
Преимущества
  • Класс B
  • Пешком от метро
  • Новое строительство
  • Кондиционирование и вентиляция
  • Свой паркинг

Сдаем в прямую аренду здание под офис класса B общей площадью 2500 кв. метров. .. подробнее

Презентация по предложению

Собираете информацию? Получите подробную презентацию в удобном формате!

Посмотреть все похожие предложения
Отнеситесь рационально к процессу поиска нового офиса!

Просто ответьте на 3 вопроса, и наши специалисты сами предложат оптимальные варианты под ваш бюджет

.