8.2
Смотреть все фото
БЕЗ КОМИССИИ ID: 1198208 Рейтинг5.8 КлассB
Бизнес-центр «Партийный 1»

Аренда офиса 495 м²

Москва, Партийный переулок, 1

Серпуховская → 932 м
~ 9 мин
Арендная плата в месяц 825 000 ₽ 20 000 ₽/м² в год С учётом НДС

Презентация по предложению

Собираете информацию? Получите подробную презентацию в удобном формате!

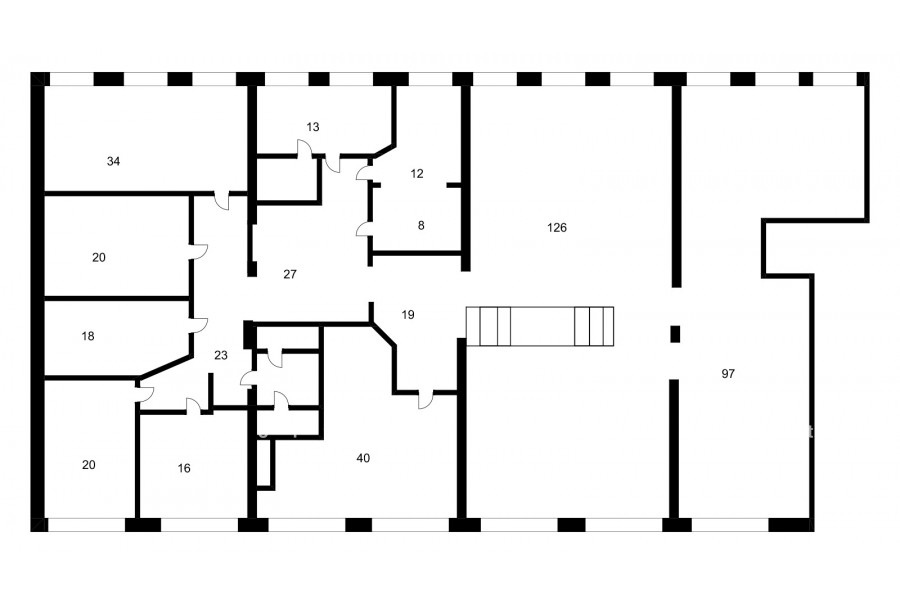
Площадь 495 м²
Состояние Готово к въезду
Планировка Смешанная
Этаж 2

Описание

Преимущества
  • Класс B
  • Пешком от метро
  • Свой паркинг
  • Развитая инфраструктура
Сдаем в прямую аренду помещение под офис класса B площадью 495 кв.м в историческом бизнес-центре.

Москва, ЮАО, Партийный переулок, 1

Удобная локация здания:
- Возможность аренды парковочных мест.
- Ближайшее метро: от метро "Серпуховская" всего 9 мин пешком

Офис класса B:
- Помещение готово к въезду


Что еще можно узнать о предложении:

1. Мы подготовили презентацию с информацией о помещении, фотографиями и планировкой, чтобы Вы могли поделиться ей с коллегами или руководством. Попросите об этом нашего менеджера по телефону в объявлении.
2. Мы готовы ответить на любые Ваши вопросы о помещении и коммерческих условиях аренды.
3. Оперативно организуем просмотр помещения с менеджерами на объекте или подготовим виртуальный тур.

Звоните нам в любое время. По будням мы сможем ответить на Ваши вопросы до 19:00. В выходные или вечернее время мы передадим Ваш контакт нашему менеджеру по аренде.

Коммерческие условия

Арендная плата 825 000 ₽
Ставка арендной платы 20 000 ₽ м²/год
Эксплуатационные расходы Включены в ставку
Налоги С учётом НДС
Тип договора Прямая аренда
Срок договора от 11 месяцев
Размер платежей 1 месяц
Обеспечительный платеж 1 месяц
Статус Сдан

О бизнес-центре

Класс B
Этажность 7
Лифты Нет
Общая площадь 10 900 м²
Год постройки 1960
Паркинг Наземный
Вентиляция приточно-вытяжная
Кондиционирование сплит-системы
Телекоммуникации Интернет/Телефония

Расположение

Подробная презентацию по предложению

Собираете информацию? Получите подробную презентацию в удобном формате, чтобы обсудить вариант с коллегами или переслать руководству!

Похожие предложения в других зданиях

БЕЗ КОМИССИИ ID: 273566 Рейтинг7.8 КлассB

Москва, Партийный переулок, 1 к11

Серпуховская → 950 м
~ 10 мин
Арендная плата в месяц 833 333 ₽ 20 000 ₽/м² в год С учётом НДС
Характеристики 500 м² 1 этаж Готово к въезду
Преимущества
  • Класс B
  • Пешком от метро
  • Кондиционирование и вентиляция
  • Свой паркинг
  • Развитая инфраструктура

Предлагаем в долгосрочную аренду офисный блок класса B общей площадью 500 квадратных метров в бизнес-центре "ЗВИ"... подробнее

Презентация по предложению

Собираете информацию? Получите подробную презентацию в удобном формате!

БЕЗ КОМИССИИ ID: 216321 Рейтинг5.4 КлассB

Москва, Партийный переулок, 1 к10

Серпуховская → 1.22 км
~ 12 мин
Арендная плата в месяц 733 833 ₽ 17 000 ₽/м² в год С учётом НДС
Характеристики 518 м² 6 этаж Готово к въезду
Преимущества
  • Класс B
  • Пешком от метро
  • Свой паркинг

Собственник сдает в долгосрочную прямую аренду офисное помещение класса B общей площадью 518 квадратных метров в историческом бизнес-центре... подробнее

Презентация по предложению

Собираете информацию? Получите подробную презентацию в удобном формате!

БЕЗ КОМИССИИ ID: 261794 Рейтинг7.4 КлассB

Москва, Павловская улица, 6

Серпуховская → 927 м
~ 9 мин
Арендная плата в месяц 812 250 ₽ 17 100 ₽/м² в год С учётом НДС
Характеристики 570 м² 2 - 4 этаж Готово к въезду
Преимущества
  • Класс B
  • Пешком от метро
  • Кондиционирование и вентиляция
  • Свой паркинг
  • Несколько провайдеров связи
  • Развитая инфраструктура

Предлагаем в долгосрочную аренду офисное помещение класса B площадью 570 кв.м в бизнес-центре "Павловский"... подробнее

Презентация по предложению

Собираете информацию? Получите подробную презентацию в удобном формате!

БЕЗ КОМИССИИ ID: 299941 Рейтинг7.5 КлассB

Москва, улица Щипок, 22 с1

Серпуховская → 725 м
~ 7 мин
Арендная плата в месяц 770 000 ₽ 22 000 ₽/м² в год С учётом НДС
Характеристики 420 м² 3 этаж Готово к въезду
Преимущества
  • Класс B
  • Пешком от метро
  • Кондиционирование и вентиляция
  • Свой паркинг

Предлагается в прямую аренду офисное помещение класса B площадью 420 квадратных метров в бизнес-центре... подробнее

Презентация по предложению

Собираете информацию? Получите подробную презентацию в удобном формате!

ВОЗМОЖНО ОСВОБОЖДЕНИЕ ID: 183823 Рейтинг8.6 КлассB+

Москва, улица Щипок, 18 с2

Серпуховская → 655 м
~ 7 мин
Арендная плата в месяц 881 667 ₽ 23 000 ₽/м² в год С учётом НДС
Характеристики 460 м² 6 этаж Готово к въезду
Преимущества
  • Класс B+
  • Пешком от метро
  • Кондиционирование и вентиляция
  • Свой паркинг

Предлагаем в прямую аренду офис класса B+ общей площадью 460 кв.м в бизнес-центре... подробнее

Презентация по предложению

Собираете информацию? Получите подробную презентацию в удобном формате!

Посмотреть все похожие предложения
Отнеситесь рационально к процессу поиска нового офиса!

Просто ответьте на 3 вопроса, и наши специалисты сами предложат оптимальные варианты под ваш бюджет

.