8.2
Смотреть все фото
БЕЗ КОМИССИИ ID: 965476 Рейтинг5.8 КлассB
Бизнес-центр «Партийный 1»

Аренда офиса 950 м²

Москва, Партийный переулок, 1

Серпуховская → 932 м
~ 9 мин
Арендная плата в месяц 1 654 600 ₽ 20 900 ₽/м² в год С учётом НДС

Презентация по предложению

Собираете информацию? Получите подробную презентацию в удобном формате!

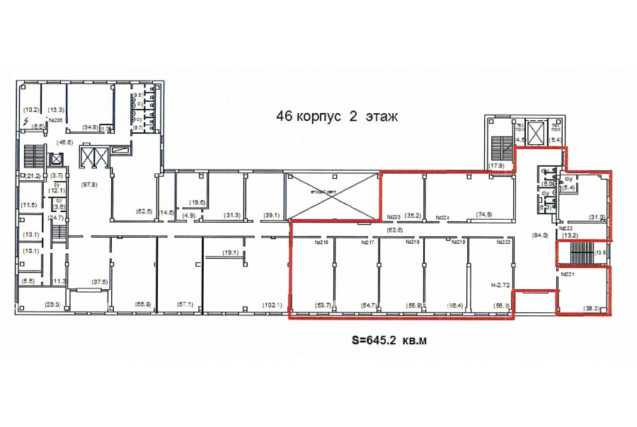
Площадь 950 м²
Состояние Готово к въезду
Планировка Кабинетная
Этаж 2

Описание

Преимущества
  • Класс B
  • Пешком от метро
  • Свой паркинг
  • Развитая инфраструктура
Предлагаем в прямую аренду офисное помещение класса B общей площадью 950 квадр. метров в историческом бизнес-центре.

Москва, ЮАО, Партийный переулок, 1

Удобная локация здания:
- Возможность аренды парковочных мест.
- Ближайшее метро: от метро "Серпуховская" всего 9 мин пешком

Офис класса B:
- Офис с отделкой, полностью готов к аренде


Если предложение предварительно Вам подходит:

1. Мы отправим Вам подробную презентацию с планировкой и фотографиями в течение 10 минут после звонка, чтобы Вы могли поделиться информацией с руководством или с коллегами.
2. Мы готовы ответить на любые Ваши вопросы о помещении и коммерческих условиях аренды.
3. Оперативно организуем просмотр помещения, договоримся на любое удобное время, подготовим виртуальный тур.

Звоните нам в любое время. По будням мы сможем ответить на Ваши вопросы до 19:00. В выходные или вечернее время мы передадим Ваш контакт нашему менеджеру по аренде.

Коммерческие условия

Арендная плата 1 504 170 ₽
Ставка арендной платы 20 900 ₽ м²/год
Эксплуатационные расходы Включены в ставку
Налоги С учётом НДС
Тип договора Прямая аренда
Срок договора от 11 месяцев
Размер платежей 1 месяц
Обеспечительный платеж 1 месяц
Статус Сдан

О бизнес-центре

Класс B
Этажность 7
Лифты Нет
Общая площадь 10 900 м²
Год постройки 1960
Паркинг Наземный
Вентиляция приточно-вытяжная
Кондиционирование сплит-системы
Телекоммуникации Интернет/Телефония

Расположение

Подробная презентацию по предложению

Собираете информацию? Получите подробную презентацию в удобном формате, чтобы обсудить вариант с коллегами или переслать руководству!

Похожие предложения в других зданиях

БЕЗ КОМИССИИ ID: 257936 Рейтинг8.2 КлассB+

Москва, Дубининская улица, 57 к2

Павелецкая → 1.16 км
~ 12 мин
Арендная плата в месяц 1 750 000 ₽ 21 000 ₽/м² в год С учётом НДС
Характеристики 1 000 м² 1 этаж Готово к въезду
Преимущества
  • Класс B+
  • Пешком от метро
  • Кондиционирование и вентиляция
  • Свой паркинг
  • Несколько провайдеров связи
  • Развитая инфраструктура

Сдаем в долгосрочную аренду помещение под офис класса B+ общей площадью 1000 кв.м в бизнес-центре "Брент Сити"... подробнее

Презентация по предложению

Собираете информацию? Получите подробную презентацию в удобном формате!

БЕЗ КОМИССИИ ID: 175627 Рейтинг7.5 КлассB+

Москва, Дубининская улица, 80

Серпуховская → 1.34 км
~ 13 мин
Арендная плата в месяц 1 947 333 ₽ 23 000 ₽/м² в год С учётом НДС
Характеристики 1 016 м² 3 этаж Готово к въезду
Преимущества
  • Класс B+
  • Пешком от метро
  • Кондиционирование и вентиляция
  • Свой паркинг
  • Развитая инфраструктура

Предлагается в долгосрочную прямую аренду помещение под офис класса B+ площадью 1016 квадратных метров в бизнес-центре... подробнее

Презентация по предложению

Собираете информацию? Получите подробную презентацию в удобном формате!

БЕЗ КОМИССИИ ID: 180981 Рейтинг7.5 КлассB

Москва, улица Щипок, 22 с1

Серпуховская → 725 м
~ 7 мин
Арендная плата в месяц 1 583 333 ₽ 19 000 ₽/м² в год С учётом НДС
Характеристики 1 000 м² 1 - 3 этаж Готово к въезду
Преимущества
  • Класс B
  • Пешком от метро
  • Кондиционирование и вентиляция
  • Свой паркинг

Предлагаем в прямую аренду офисное помещение класса B площадью 1000 кв. метров в бизнес-центре... подробнее

Презентация по предложению

Собираете информацию? Получите подробную презентацию в удобном формате!

БЕЗ КОМИССИИ ID: 74642 Рейтинг7.9 КлассB+

Москва, Дубининская улица, 53 с5

Серпуховская → 1.22 км
~ 12 мин
Арендная плата в месяц 1 920 000 ₽ 24 000 ₽/м² в год С учётом НДС
Характеристики 960 м² 2 этаж Готово к въезду
Преимущества
  • Класс B+
  • Пешком от метро
  • Кондиционирование и вентиляция
  • Свой паркинг
  • Развитая инфраструктура

Собственник сдает в прямую аренду офисное помещение класса B+ общей площадью 960 квадратных метров в недавно отреконструированном бизнес-центре "Квартал Сити"... подробнее

Презентация по предложению

Собираете информацию? Получите подробную презентацию в удобном формате!

БЕЗ КОМИССИИ ID: 296519 Рейтинг7.7 КлассB

Москва, Большая Серпуховская улица, 25 с14

Серпуховская → 235 м
~ 2 мин
Арендная плата в месяц 1 498 500 ₽ 22 200 ₽/м² в год С учётом НДС
Характеристики 810 м² -1 - 4 этаж Готово к въезду
Преимущества
  • Класс B
  • Пешком от метро
  • Кондиционирование и вентиляция
  • Свой паркинг

Предлагается в долгосрочную аренду офис класса B общей площадью 810 квадратных метров в историческом бизнес-центре... подробнее

Презентация по предложению

Собираете информацию? Получите подробную презентацию в удобном формате!

Посмотреть все похожие предложения
Отнеситесь рационально к процессу поиска нового офиса!

Просто ответьте на 3 вопроса, и наши специалисты сами предложат оптимальные варианты под ваш бюджет

.