8.2
Смотреть все фото
БЕЗ КОМИССИИ ID: 1320822 Рейтинг8.4 КлассB+
Бизнес-центр «Парус»

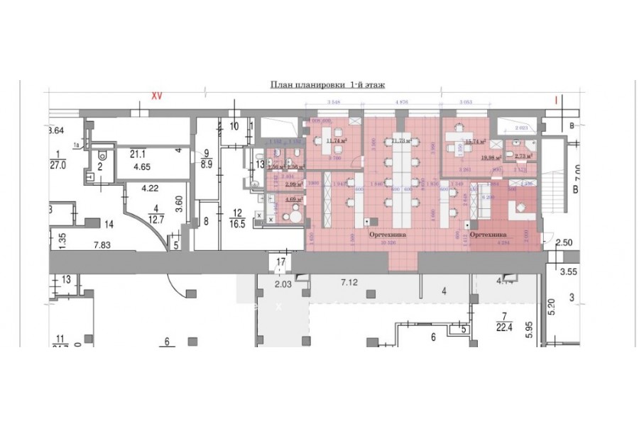
Аренда офиса 131 м²

Москва, 1-я Тверская-Ямская улица, 23 с1

Белорусская → 379 м
~ 4 мин
Арендная плата в месяц 590 300 ₽ 54 100 ₽/м² в год С учётом НДС

Презентация по предложению

Собираете информацию? Получите подробную презентацию в удобном формате!

Площадь 131 м²
Состояние Готово к въезду
Планировка Смешанная
Этаж 1

Описание

Преимущества
  • Класс B+
  • Пешком от метро
  • Кондиционирование и вентиляция
  • Свой паркинг
  • Несколько провайдеров связи
  • Развитая инфраструктура
Предлагаем в долгосрочную аренду офисный блок класса B+ площадью 131 квадратных метров в бизнес-центре "Парус".

Москва, ЦАО, 1-я Тверская-Ямская улица, 23 с1

Удобное расположение здания для всех видов транспорта:
- Автомобиль: близость транспортных магистралей, таких как Садовое Кольцо, Ленинградский проспект и других.
- Возможность аренды парковочных мест.
- Ближайшее метро: от метро "Белорусская" всего 4 мин пешком

Офис класса B+:
- Помещение готово к въезду
- Вентиляция: Приточно-вытяжная вентиляция
- Кондиционирование: центральное
- Презентабельный центральный ресепшн
- Круглосуточная охрана и видеонаблюдение
- Развитая инфраструктура внутри здания


Если предложение предварительно Вам подходит:

1. Мы отправим Вам подробную презентацию с планировкой и фотографиями в течение 10 минут после звонка, чтобы Вы могли поделиться информацией с руководством или с коллегами.
2. Мы готовы ответить на любые Ваши вопросы о помещении и коммерческих условиях аренды.
3. Покажем помещение в удобное для Вас время с менеджером в здании, при необходимости подготовим виртуальный тур.

Вы можете позвонить нам в любое время. Мы ответим на Ваши вопросы по будням до 19:00, а поздно вечером или в выходные зафиксируем Ваш контакт и перезвоним в рабочее время.

Коммерческие условия

Арендная плата 590 250 ₽
Ставка арендной платы 54 100 ₽ м²/год
Эксплуатационные расходы Включены в ставку
Налоги С учётом НДС
Тип договора Прямая аренда
Срок договора от 11 месяцев
Размер платежей 1 месяц
Обеспечительный платеж 1 месяц
Статус Сдан

О бизнес-центре

Класс B+
Этажность 9
Лифты Есть
Общая площадь 16 435 м²
Год постройки 1994
Паркинг Подземный
Вентиляция приточно-вытяжная
Кондиционирование центральное
Телекоммуникации Интернет/Телефония

Расположение

Подробная презентацию по предложению

Собираете информацию? Получите подробную презентацию в удобном формате, чтобы обсудить вариант с коллегами или переслать руководству!

Похожие предложения в других зданиях

БЕЗ КОМИССИИ ID: 1313038 Рейтинг6.5 КлассB

Москва, Долгоруковская улица, 34 с2

Новослободская → 457 м
~ 5 мин
Арендная плата в месяц 661 500 ₽ 52 900 ₽/м² в год С учётом НДС
Характеристики 150 м² 2 этаж Готово к въезду
Преимущества
  • Класс B
  • Пешком от метро
  • Кондиционирование и вентиляция

Предлагаем в прямую аренду офисный блок класса B площадью 150 квадр. метров в историческом бизнес-центре... подробнее

Презентация по предложению

Собираете информацию? Получите подробную презентацию в удобном формате!

БЕЗ КОМИССИИ ID: 354893 Рейтинг8.1 КлассB+

Москва, Сущёвская улица, 27 с1

Менделеевская → 269 м
~ 3 мин
Арендная плата в месяц 657 825 ₽ 53 700 ₽/м² в год С учётом НДС
Характеристики 147 м² 1 этаж Готово к въезду
Преимущества
  • Класс B+
  • Пешком от метро
  • Кондиционирование и вентиляция
  • Свой паркинг
  • Развитая инфраструктура

Сдается в долгосрочную аренду офисное помещение класса B+ площадью 147 кв. метров в бизнес-центре "Салют"... подробнее

Презентация по предложению

Собираете информацию? Получите подробную презентацию в удобном формате!

БЕЗ КОМИССИИ ID: 1307341 Рейтинг7.0 КлассB

Москва, Трёхпрудный переулок, 4 с1

Маяковская → 764 м
~ 8 мин
Арендная плата в месяц 650 900 ₽ 56 600 ₽/м² в год С учётом НДС
Характеристики 138 м² 3 этаж Под отделку
Преимущества
  • Класс B
  • Пешком от метро
  • Кондиционирование и вентиляция
  • Свой паркинг

Сдается в долгосрочную прямую аренду помещение под офис класса B площадью 138 квадратных метров в историческом бизнес-центре... подробнее

Презентация по предложению

Собираете информацию? Получите подробную презентацию в удобном формате!

БЕЗ КОМИССИИ ID: 1285632 Рейтинг8.2 КлассB

Москва, улица Петровка, 27

Пушкинская → 424 м
~ 4 мин
Арендная плата в месяц 678 245 ₽ 61 200 ₽/м² в год С учётом НДС
Характеристики 133 м² 5 этаж Готово к въезду
Преимущества
  • Класс B
  • Пешком от метро
  • Кондиционирование и вентиляция
  • Свой паркинг
  • Несколько провайдеров связи
  • Развитая инфраструктура

Предлагаем в долгосрочную аренду офис класса B общей площадью 133 кв. метров в историческом недавно отреконструированном бизнес-центре "Венский дом"... подробнее

>

Виртуальный тур

Презентация по предложению

Собираете информацию? Получите подробную презентацию в удобном формате!

БЕЗ КОМИССИИ ID: 1370873 Рейтинг6.1 КлассB

Москва, Малая Бронная улица, 2 с1

Арбатская → 939 м
~ 9 мин
Арендная плата в месяц 657 055 ₽ 54 400 ₽/м² в год С учётом НДС
Характеристики 145 м² 2 - 3 этаж Готово к въезду
Преимущества
  • Класс B
  • Пешком от метро
  • Кондиционирование и вентиляция

Предлагается в долгосрочную прямую аренду офисный блок класса B общей площадью 145 кв. метров в историческом бизнес-центре... подробнее

Презентация по предложению

Собираете информацию? Получите подробную презентацию в удобном формате!

Посмотреть все похожие предложения
Отнеситесь рационально к процессу поиска нового офиса!

Просто ответьте на 3 вопроса, и наши специалисты сами предложат оптимальные варианты под ваш бюджет

.