8.2
Смотреть все фото
БЕЗ КОМИССИИ ID: 288187 Рейтинг7.7 КлассB

Москва, Перовская улица, 61/2 с1

Перово → 1.04 км
~ 10 мин
Арендная плата в месяц 640 500 ₽ 14 000 ₽/м² в год С учётом НДС

Презентация по предложению

Собираете информацию? Получите подробную презентацию в удобном формате!

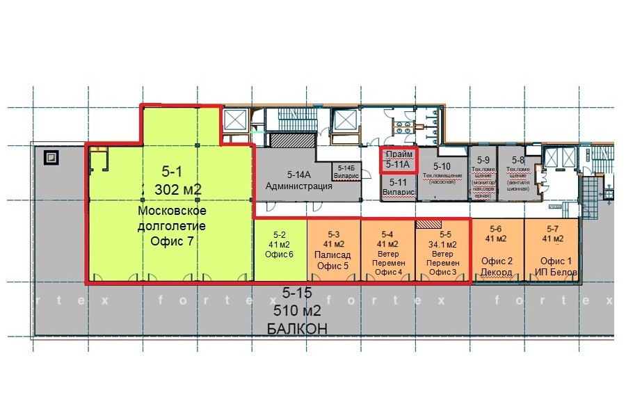
Площадь 549 м²
Состояние Готово к въезду
Планировка Кабинетная
Этаж 5

Описание

Преимущества
  • Класс B
  • Пешком от метро
  • Кондиционирование и вентиляция
  • Свой паркинг
  • Развитая инфраструктура
Сдаем в долгосрочную прямую аренду офис класса B площадью 549 квадратных метров в недавно отреконструированном бизнес-центре.

Москва, ВАО, Перовская улица, 61/2 с1

Удобная локация здания:
- Возможность аренды парковочных мест.
- Ближайшее метро: от метро "Перово" всего 13 мин пешком

Офис класса B:
- Помещение готово к въезду
- Вентиляция: Приточно-вытяжная вентиляция
- Кондиционирование: центральное
- Развитая инфраструктура внутри здания


Что еще можно узнать о предложении:

1. Мы подготовили презентацию с информацией о помещении, фотографиями и планировкой, чтобы Вы могли поделиться ей с коллегами или руководством. Попросите об этом нашего менеджера по телефону в объявлении.
2. Ответим на любые Ваши вопросы, готовы обсуждать любые предложения по коммерческим условиям аренды помещения.
3. Проводим показы ежедневно, договоримся на удобное для Вас время. Можем организовать виртуальный тур по офисному блоку.

Звоните нам в любое время. По будням мы сможем ответить на Ваши вопросы до 19:00. В выходные или вечернее время мы передадим Ваш контакт нашему менеджеру по аренде.

Коммерческие условия

Арендная плата 893 040 ₽
Ставка арендной платы 14 000 ₽ м²/год
Эксплуатационные расходы Включены в ставку
Налоги С учётом НДС
Тип договора Прямая аренда
Срок договора от 11 месяцев
Размер платежей 1 месяц
Обеспечительный платеж 1 месяц
Статус Сдан

О бизнес-центре

Класс B
Этажность 5
Лифты Есть
Общая площадь 4 810 м²
Паркинг Наземный
Вентиляция приточно-вытяжная
Кондиционирование центральное
Телекоммуникации Интернет/Телефония

Расположение

Подробная презентацию по предложению

Собираете информацию? Получите подробную презентацию в удобном формате, чтобы обсудить вариант с коллегами или переслать руководству!

Похожие предложения в других зданиях

БЕЗ КОМИССИИ ID: 1285359 Рейтинг7.1 КлассB

Москва, Зелёный проспект, 20

Перово → 179 м
~ 2 мин
Арендная плата в месяц 641 667 ₽ 15 400 ₽/м² в год С учётом НДС
Характеристики 500 м² 11 этаж Под отделку
Преимущества
  • Класс B
  • Пешком от метро
  • Кондиционирование и вентиляция
  • Свой паркинг
  • Развитая инфраструктура

Предлагается в долгосрочную прямую аренду офисное помещение класса B площадью 500 квадратных метров в бизнес-центре... подробнее

Презентация по предложению

Собираете информацию? Получите подробную презентацию в удобном формате!

БЕЗ КОМИССИИ ID: 1329271 Рейтинг6.6 КлассB

Москва, Кусковская улица, 20А

Перово → 1.51 км
~ 15 мин
Арендная плата в месяц 637 200 ₽ 14 400 ₽/м² в год С учётом НДС
Характеристики 531 м² 7 этаж Готово к въезду
Преимущества
  • Класс B
  • Пешком от метро
  • Кондиционирование и вентиляция
  • Свой паркинг
  • Развитая инфраструктура

Предлагаем в прямую аренду помещение под офис класса B общей площадью 532 квадратных метров в бизнес-центре "Кусково"... подробнее

Презентация по предложению

Собираете информацию? Получите подробную презентацию в удобном формате!

БЕЗ КОМИССИИ ID: 1372870 Рейтинг6.6 КлассB

Москва, Кусковская улица, 20А

Перово → 1.51 км
~ 15 мин
Арендная плата в месяц 531 000 ₽ 12 000 ₽/м² в год С учётом НДС
Характеристики 531 м² 7 этаж Готово к въезду
Преимущества
  • Класс B
  • Пешком от метро
  • Кондиционирование и вентиляция
  • Свой паркинг
  • Развитая инфраструктура

Предлагаем в прямую аренду офис класса B общей площадью 531 кв.м в бизнес-центре "Кусково"... подробнее

>

Виртуальный тур

Презентация по предложению

Собираете информацию? Получите подробную презентацию в удобном формате!

БЕЗ КОМИССИИ ID: 282845 Рейтинг7.2 КлассB+

Москва, 1-й проезд Перова Поля, 9 с1

Перово → 1.04 км
~ 10 мин
Арендная плата в месяц 692 683 ₽ 13 900 ₽/м² в год С учётом НДС
Характеристики 598 м² 3 этаж Готово к въезду
Преимущества
  • Класс B+
  • Пешком от метро
  • Кондиционирование и вентиляция
  • Свой паркинг

Предлагаем в долгосрочную прямую аренду офисное помещение класса B+ общей площадью 598 квадратных метров в бизнес-центре "Гелиос-сити"... подробнее

Презентация по предложению

Собираете информацию? Получите подробную презентацию в удобном формате!

БЕЗ КОМИССИИ ID: 1240863 Рейтинг7.5 КлассB+

Москва, улица Плеханова, 15А

Шоссе Энтузиастов → 1.51 км
~ 15 мин
Арендная плата в месяц 620 858 ₽ 14 300 ₽/м² в год С учётом НДС
Характеристики 521 м² 3 этаж Готово к въезду
Преимущества
  • Класс B+
  • Пешком от метро
  • Кондиционирование и вентиляция
  • Свой паркинг
  • Развитая инфраструктура

Предлагаем в долгосрочную аренду офисный блок класса B+ площадью 521 квадр. метров в бизнес-центре "ВОСТОК"... подробнее

Презентация по предложению

Собираете информацию? Получите подробную презентацию в удобном формате!

Посмотреть все похожие предложения
Отнеситесь рационально к процессу поиска нового офиса!

Просто ответьте на 3 вопроса, и наши специалисты сами предложат оптимальные варианты под ваш бюджет

.