8.2
Смотреть все фото
БЕЗ КОМИССИИ ID: 1376886 Рейтинг7.7 КлассB+

Москва, Подсосенский переулок, 20 с1

Курская → 725 м
~ 7 мин
Арендная плата в месяц 390 100 ₽ 46 300 ₽/м² в год С учётом НДС

Презентация по предложению

Собираете информацию? Получите подробную презентацию в удобном формате!

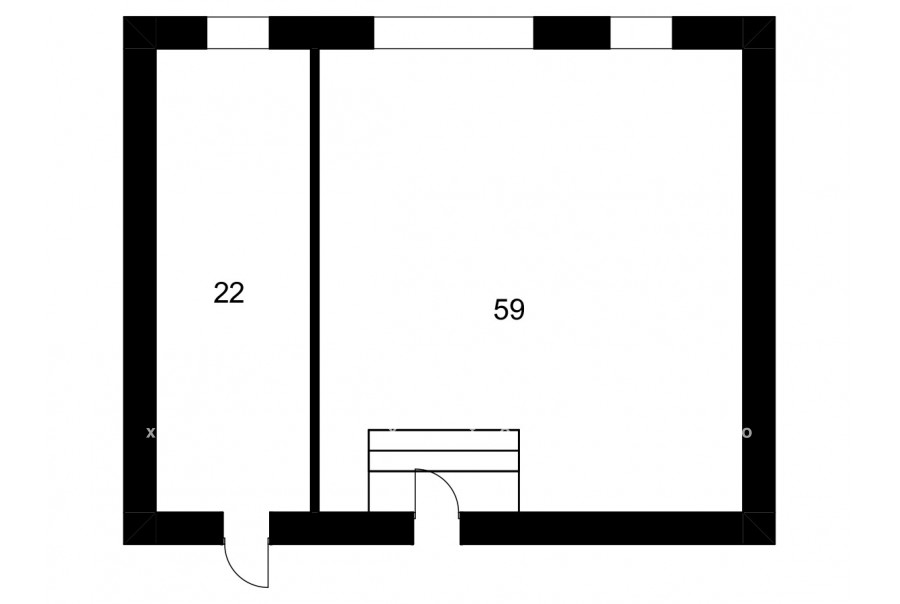
Площадь 101 м²
Состояние Готово к въезду
Планировка Смешанная
Этаж 5

Описание

Преимущества
  • Класс B+
  • Пешком от метро
  • Кондиционирование и вентиляция
  • Свой паркинг
  • Несколько провайдеров связи
Предлагаем в долгосрочную прямую аренду офисное помещение класса B+ площадью 101 квадратных метров в историческом недавно отреконструированном бизнес-центре.

Москва, ЦАО, Подсосенский переулок, 20 с1

Удобное расположение в пределах Садового кольца:
- Возможность аренды парковочных мест.
- Ближайшее метро: от метро "Курская" всего 8 мин пешком

Офис класса B+:
- Офис с отделкой, полностью готов к аренде
- Вентиляция: Приточно-вытяжная вентиляция
- Кондиционирование: центральное


Если предложение предварительно Вам подходит:

1. Мы отправим Вам подробную презентацию с планировкой и фотографиями в течение 10 минут после звонка, чтобы Вы могли поделиться информацией с руководством или с коллегами.
2. Ответим на любые Ваши вопросы, готовы обсуждать любые предложения по коммерческим условиям аренды помещения.
3. Покажем помещение в удобное для Вас время с менеджером в здании, при необходимости подготовим виртуальный тур.

Звоните нам в любое время. По будням мы сможем ответить на Ваши вопросы до 19:00. В выходные или вечернее время мы передадим Ваш контакт нашему менеджеру по аренде.

Коммерческие условия

Арендная плата 390 070 ₽
Ставка арендной платы 46 300 ₽ м²/год
Эксплуатационные расходы Включены в ставку
Налоги С учётом НДС
Тип договора Прямая аренда
Срок договора от 11 месяцев
Размер платежей 1 месяц
Обеспечительный платеж 1 месяц
Статус Свободен

О бизнес-центре

Класс B+
Этажность 5
Лифты Нет
Общая площадь 3 500 м²
Год постройки 1907
Паркинг Наземный
Вентиляция приточно-вытяжная
Кондиционирование центральное
Телекоммуникации Интернет/Телефония

Расположение

Подробная презентацию по предложению

Собираете информацию? Получите подробную презентацию в удобном формате, чтобы обсудить вариант с коллегами или переслать руководству!

Похожие предложения в других зданиях

БЕЗ КОМИССИИ ID: 1322219 Рейтинг6.3 КлассB

Москва, Подсосенский переулок, 23 с6/8

Курская → 468 м
~ 5 мин
Арендная плата в месяц 501 806 ₽ 51 900 ₽/м² в год С учётом НДС
Характеристики 116 м² 1 этаж Готово к въезду
Преимущества
  • Класс B
  • Пешком от метро
  • Кондиционирование и вентиляция

Сдается в прямую аренду офисный блок класса B общей площадью 116 кв.м в бизнес-центре... подробнее

>

Виртуальный тур

Презентация по предложению

Собираете информацию? Получите подробную презентацию в удобном формате!

БЕЗ КОМИССИИ ID: 1378048 Рейтинг6.6 КлассB

Москва, Подкопаевский переулок, 4 с6

Китай-город → 566 м
~ 6 мин
Арендная плата в месяц 388 500 ₽ 42 000 ₽/м² в год Упрощённая система налогообложения
Характеристики 111 м² 1 этаж Готово к въезду
Преимущества
  • Класс B
  • Пешком от метро

Предлагаем в прямую аренду офис класса B площадью 111 кв.м в историческом бизнес-центре... подробнее

Презентация по предложению

Собираете информацию? Получите подробную презентацию в удобном формате!

БЕЗ КОМИССИИ ID: 1381313 Рейтинг7.6 КлассB

Москва, улица Казакова, 3 с2

Курская → 698 м
~ 7 мин
Арендная плата в месяц 316 800 ₽ 39 600 ₽/м² в год Упрощённая система налогообложения
Характеристики 96 м² 1 этаж Готово к въезду
Преимущества
  • Класс B
  • Пешком от метро
  • Кондиционирование и вентиляция
  • Свой паркинг

Предлагаем в прямую аренду офисный блок класса B общей площадью 96 квадратных метров в бизнес-центре... подробнее

Презентация по предложению

Собираете информацию? Получите подробную презентацию в удобном формате!

Посмотреть все похожие предложения
Отнеситесь рационально к процессу поиска нового офиса!

Просто ответьте на 3 вопроса, и наши специалисты сами предложат оптимальные варианты под ваш бюджет

.