8.2
Смотреть все фото
БЕЗ КОМИССИИ ID: 637628 Рейтинг7.8 КлассB+

Москва, Подсосенский переулок, 5 с1

Курская → 769 м
~ 8 мин
Арендная плата в месяц 9 146 200 ₽ 45 000 ₽/м² в год С учётом НДС

Презентация по предложению

Собираете информацию? Получите подробную презентацию в удобном формате!

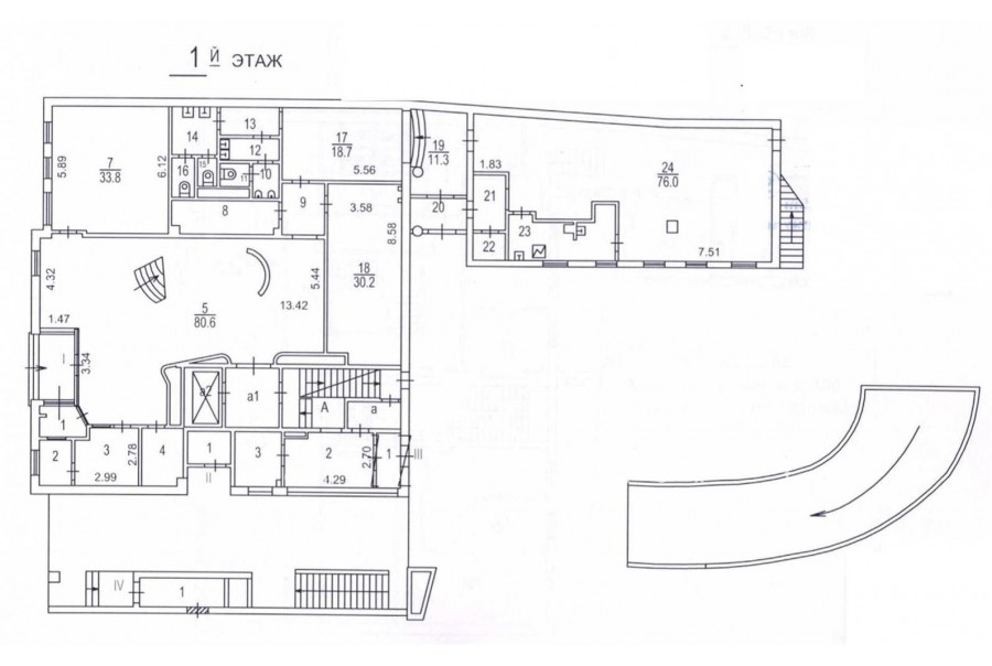
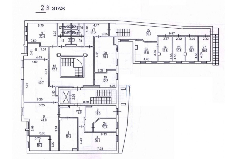
Площадь 2 439 м²
Состояние Готово к въезду
Планировка Кабинетная
Этаж 1 - 6

Описание

Преимущества
  • Класс B+
  • Пешком от метро
  • Кондиционирование и вентиляция
  • Несколько провайдеров связи
Собственник сдает в долгосрочную аренду помещение под офис класса B+ общей площадью 2439 квадратных метров в недавно отреконструированном бизнес-центре.

Москва, ЦАО, Подсосенский переулок, 5 с1

Удобное расположение в пределах Садового кольца:
- Возможность аренды парковочных мест.
- Ближайшее метро: от метро "Курская" всего 9 мин пешком

Офис класса B+:
- Помещение с отделкой, готово к въезду
- Вентиляция: Приточно-вытяжная вентиляция
- Кондиционирование: центральное


Если предложение предварительно Вам подходит:

1. Мы отправим Вам подробную презентацию с планировкой и фотографиями в течение 10 минут после звонка, чтобы Вы могли поделиться информацией с руководством или с коллегами.
2. Ответим на любые Ваши вопросы, готовы обсуждать любые предложения по коммерческим условиям аренды помещения.
3. Оперативно организуем просмотр помещения с менеджерами на объекте или подготовим виртуальный тур.

Вы можете позвонить нам в любое время. Мы ответим на Ваши вопросы по будням до 19:00, а поздно вечером или в выходные сможем передать Ваш контакт нашему менеджеру.

Коммерческие условия

Арендная плата 4 999 950 ₽
Ставка арендной платы 45 000 ₽ м²/год
Эксплуатационные расходы Включены в ставку
Налоги С учётом НДС
Тип договора Прямая аренда
Срок договора Долгосрочный
Размер платежей 1 месяц
Обеспечительный платеж 1 месяц
Статус Сдан

О бизнес-центре

Класс B+
Этажность 7
Лифты Есть
Общая площадь 3 439 м²
Год постройки 1997
Паркинг Наземный и подземный
Вентиляция приточно-вытяжная
Кондиционирование центральное
Телекоммуникации Интернет/Телефония

Расположение

Подробная презентацию по предложению

Собираете информацию? Получите подробную презентацию в удобном формате, чтобы обсудить вариант с коллегами или переслать руководству!

Похожие предложения в других зданиях

БЕЗ КОМИССИИ ID: 1380581 Рейтинг9.3 КлассА

Москва, улица Земляной Вал, 9

Курская → 447 м
~ 4 мин
Арендная плата в месяц 14 757 120 ₽ 76 900 ₽/м² в год С учётом НДС
Характеристики 2 304 м² 9 этаж Готово к въезду
Преимущества
  • Класс А
  • Пешком от метро
  • Кондиционирование и вентиляция
  • Свой паркинг
  • Развитая инфраструктура

Предлагаем в прямую аренду офис класса А общей площадью 2304 кв. метров в бизнес-центре "СитиДел"... подробнее

Презентация по предложению

Собираете информацию? Получите подробную презентацию в удобном формате!

БЕЗ КОМИССИИ ID: 138570 Рейтинг8.1 КлассB+

Москва, Старая Басманная улица, 7 с2

Курская → 822 м
~ 8 мин
Арендная плата в месяц 9 041 667 ₽ 43 400 ₽/м² в год С учётом НДС
Характеристики 2 500 м² 1 - 3 этаж Готово к въезду
Преимущества
  • Класс B+
  • Пешком от метро
  • Кондиционирование и вентиляция
  • Свой паркинг

Предлагается в прямую аренду помещение под офис класса B+ площадью 2500 квадратных метров в бизнес-центре... подробнее

Презентация по предложению

Собираете информацию? Получите подробную презентацию в удобном формате!

БЕЗ КОМИССИИ ID: 1304394 Рейтинг9.0 КлассА

Москва, Серебряническая набережная, 29

Курская → 839 м
~ 8 мин
Арендная плата в месяц 9 749 103 ₽ 49 400 ₽/м² в год С учётом НДС
Характеристики 2 366 м² 6 этаж Готово к въезду
Преимущества
  • Класс А
  • Пешком от метро
  • Кондиционирование и вентиляция
  • Свой паркинг
  • Несколько провайдеров связи
  • Развитая инфраструктура

Предлагаем в долгосрочную прямую аренду офисное помещение класса А площадью 2366 кв.м в бизнес-центре "Silver City"... подробнее

>

Виртуальный тур

Презентация по предложению

Собираете информацию? Получите подробную презентацию в удобном формате!

ВОЗМОЖНО ОСВОБОЖДЕНИЕ ID: 302906 Рейтинг8.7 КлассА

Москва, Тургеневская площадь, 2

Сретенский бульвар → 73 м
~ 1 мин
Арендная плата в месяц 8 800 000 ₽ 48 000 ₽/м² в год С учётом НДС
Характеристики 2 200 м² 4 - 5 этаж Готово к въезду
Преимущества
  • Класс А
  • Пешком от метро
  • Кондиционирование и вентиляция
  • Свой паркинг
  • Развитая инфраструктура

Предлагается в долгосрочную аренду офисный блок класса А общей площадью 2200 кв.м в историческом бизнес-центре... подробнее

Презентация по предложению

Собираете информацию? Получите подробную презентацию в удобном формате!

БЕЗ КОМИССИИ ID: 1222522 Рейтинг7.4 КлассB

Москва, Новорязанская улица, 8

Красные Ворота → 641 м
~ 6 мин
Арендная плата в месяц 10 805 900 ₽ 51 600 ₽/м² в год С учётом НДС
Характеристики 2 513 м² 2 - 4 этаж Готово к въезду
Преимущества
  • Класс B
  • Пешком от метро
  • Кондиционирование и вентиляция
  • Свой паркинг

Предлагаем в прямую аренду офисный блок класса B общей площадью 2513 кв. метров в бизнес-центре... подробнее

Презентация по предложению

Собираете информацию? Получите подробную презентацию в удобном формате!

Посмотреть все похожие предложения
Отнеситесь рационально к процессу поиска нового офиса!

Просто ответьте на 3 вопроса, и наши специалисты сами предложат оптимальные варианты под ваш бюджет

.