8.2

Виртуальный тур

Смотреть все фото
БЕЗ КОМИССИИ ID: 280821 Рейтинг8.1 КлассB+
Бизнес-центр «Покрышкина 7»

Аренда офиса 583 м²

Москва, улица Покрышкина, 7

Юго-Западная → 1.03 км
~ 10 мин
Арендная плата в месяц 1 117 400 ₽ 23 000 ₽/м² в год С учётом НДС

Презентация по предложению

Собираете информацию? Получите подробную презентацию в удобном формате!

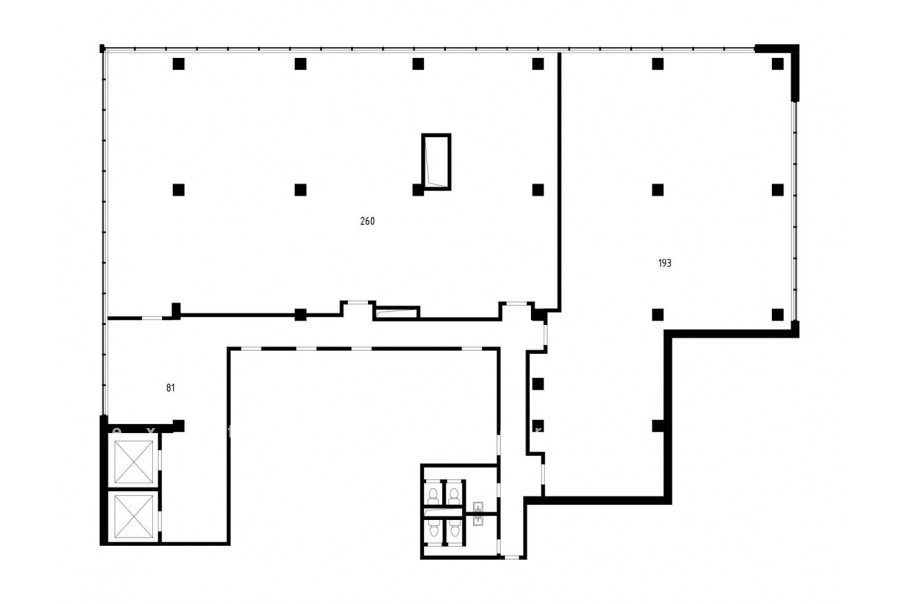
Площадь 583 м²
Состояние Готово к въезду
Планировка Открытая
Этаж 2

Описание

Преимущества
  • Класс B+
  • Пешком от метро
  • Кондиционирование и вентиляция
  • Свой паркинг
  • Несколько провайдеров связи
Предлагается в долгосрочную прямую аренду офисное помещение класса B+ площадью 583 квадратных метров в новом бизнес-центре.

Москва, ЗАО, улица Покрышкина, 7

Удобная локация здания:
- Автомобиль: близость транспортных магистралей, таких как Проспект Вернадского, Мичуринский проспект, Ленинский проспект и других.
- Возможность аренды парковочных мест.
- Ближайшее метро: от метро "Юго-Западная" всего 13 мин пешком

Офис класса B+:
- Помещение готово к въезду
- Вентиляция: Приточно-вытяжная вентиляция
- Кондиционирование: центральное
- Презентабельный центральный рецепшн
- Круглосуточная охрана и видеонаблюдение

Возможность заключения контракта в соответствии с 44ФЗ по госзакупкам.

Если предложение предварительно Вам подходит:

1. Получите презентацию в течение 10 минут в Whatsapp или на почту с фотографиями и планировкой, чтобы обсудить данный вариант с коллегами или переслать руководству. Для этого позвоните по телефону, указанному в объявлении.
2. Мы готовы ответить на любые Ваши вопросы о помещении и коммерческих условиях аренды.
3.

Вы можете позвонить нам в любое время. Мы ответим на Ваши вопросы по будням до 19:00, а поздно вечером или в выходные сможем передать Ваш контакт нашему менеджеру.

Коммерческие условия

Арендная плата 1 117 420 ₽
Ставка арендной платы 23 000 ₽ м²/год
Эксплуатационные расходы Включены в ставку
Налоги С учётом НДС
Тип договора Прямая аренда
Срок договора Долгосрочный
Размер платежей 1 месяц
Обеспечительный платеж 2 месяц
Статус Сдан

О бизнес-центре

Класс B+
Этажность 4
Лифты Есть
Общая площадь 11 000 м²
Год постройки 2015
Паркинг Наземный
Вентиляция приточно-вытяжная
Кондиционирование центральное
Телекоммуникации Интернет/Телефония

Расположение

Подробная презентацию по предложению

Собираете информацию? Получите подробную презентацию в удобном формате, чтобы обсудить вариант с коллегами или переслать руководству!

Похожие предложения в других зданиях

БЕЗ КОМИССИИ ID: 1315232 Рейтинг7.1 КлассB

Москва, Озёрная улица, 42

Озёрная → 341 м
~ 3 мин
Арендная плата в месяц 1 064 000 ₽ 22 800 ₽/м² в год С учётом НДС
Характеристики 560 м² 13 этаж Готово к въезду
Преимущества
  • Класс B
  • Пешком от метро
  • Кондиционирование и вентиляция
  • Свой паркинг
  • Несколько провайдеров связи
  • Развитая инфраструктура

Сдается в прямую аренду офис класса B площадью 560 кв.м в бизнес-центре... подробнее

Презентация по предложению

Собираете информацию? Получите подробную презентацию в удобном формате!

БЕЗ КОМИССИИ ID: 1250771 Рейтинг8.8 КлассА

Москва, Ленинский проспект, 119А

Тропарево → 1.39 км
~ 14 мин
Арендная плата в месяц 1 782 979 ₽ 37 200 ₽/м² в год С учётом НДС
Характеристики 575 м² 2 этаж Готово к въезду
Преимущества
  • Класс А
  • Пешком от метро
  • Кондиционирование и вентиляция
  • Свой паркинг

Предлагаем в долгосрочную прямую аренду офисный блок класса А общей площадью 575 кв. метров в бизнес-центре... подробнее

Презентация по предложению

Собираете информацию? Получите подробную презентацию в удобном формате!

ВОЗМОЖНО ОСВОБОЖДЕНИЕ ID: 274054 Рейтинг7.1 КлассB

Москва, проспект Вернадского, 41 с1

Проспект Вернадского → 430 м
~ 4 мин
Арендная плата в месяц 1 285 350 ₽ 24 600 ₽/м² в год С учётом НДС
Характеристики 627 м² 5 этаж Готово к въезду
Преимущества
  • Класс B
  • Пешком от метро
  • Кондиционирование и вентиляция

Сдается в прямую аренду офисный блок класса B площадью 627 квадратных метров в бизнес-центре... подробнее

Презентация по предложению

Собираете информацию? Получите подробную презентацию в удобном формате!

БЕЗ КОМИССИИ ID: 166125 Рейтинг7.9 КлассB+

Москва, 47-й километр МКАД, с21

Говорово → 1.19 км
~ 12 мин
Арендная плата в месяц 990 000 ₽ 22 000 ₽/м² в год С учётом НДС
Характеристики 540 м² 9 этаж Готово к въезду
Преимущества
  • Класс B+
  • Пешком от метро
  • Кондиционирование и вентиляция
  • Свой паркинг
  • Несколько провайдеров связи

Сдается в долгосрочную прямую аренду помещение под офис класса B+ общей площадью 540 квадратных метров в бизнес-центре "Боровский"... подробнее

Презентация по предложению

Собираете информацию? Получите подробную презентацию в удобном формате!

БЕЗ КОМИССИИ ID: 1098923 Рейтинг5.9 КлассB

Москва, улица Островитянова, 7

Тропарево → 1.81 км
~ 18 мин
Арендная плата в месяц 870 833 ₽ 20 900 ₽/м² в год С учётом НДС
Характеристики 500 м² 1 - 3 этаж Готово к въезду
Преимущества
  • Класс B
  • Пешком от метро
  • Кондиционирование и вентиляция
  • Развитая инфраструктура

Предлагается в прямую аренду офис класса B общей площадью 500 кв. метров в бизнес-центре... подробнее

Презентация по предложению

Собираете информацию? Получите подробную презентацию в удобном формате!

Посмотреть все похожие предложения
Отнеситесь рационально к процессу поиска нового офиса!

Просто ответьте на 3 вопроса, и наши специалисты сами предложат оптимальные варианты под ваш бюджет

.