8.2
Смотреть все фото
БЕЗ КОМИССИИ ID: 1294104 Рейтинг7.9 КлассB+
Бизнес-центр «Полларс»

Аренда офиса 1450 м²

Москва, Дербеневская набережная, 11

Павелецкая → 1.88 км
~ 19 мин
Арендная плата в месяц 1 899 700 ₽ 15 700 ₽/м² в год С учётом НДС

Презентация по предложению

Собираете информацию? Получите подробную презентацию в удобном формате!

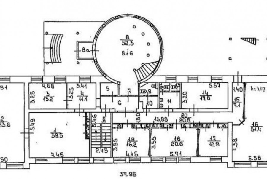
Площадь 1 450 м²
Состояние Готово к въезду
Планировка Смешанная
Этаж 15

Описание

Преимущества
  • Класс B+
  • Пешком от метро
  • Кондиционирование и вентиляция
  • Свой паркинг
  • Несколько провайдеров связи
  • Развитая инфраструктура
Сдается в долгосрочную прямую аренду помещение под офис класса B+ общей площадью 2429 кв. метров в бизнес-центре "Полларс".

Москва, ЮАО, Дербеневская набережная, 11

Характеристики местоположения:
- Возможность аренды парковочных мест.
- Ближайшее метро: от метро "Павелецкая" можно добраться пешком или на городском транспорте

Офис класса B+:
- Помещение с отделкой, готово к въезду
- Вентиляция: Приточно-вытяжная вентиляция
- Кондиционирование: центральное
- Круглосуточная охрана и видеонаблюдение
- Развитая инфраструктура внутри здания


Что еще можно узнать о предложении:

1. Мы отправим Вам подробную презентацию с планировкой и фотографиями в течение 10 минут после звонка, чтобы Вы могли поделиться информацией с руководством или с коллегами.
2. Задайте любые вопросы менеджеру по телефону, готовы обсуждать любые предложения по финансовым условиям договора аренды.
3. Оперативно организуем просмотр помещения, договоримся на любое удобное время, подготовим виртуальный тур.

Звоните нам в любое время. По будням мы сможем ответить на Ваши вопросы до 19:00. В выходные или вечернее время мы передадим Ваш контакт нашему менеджеру по аренде.

Коммерческие условия

Арендная плата 1 727 070 ₽
Ставка арендной платы 15 700 ₽ м²/год
Эксплуатационные расходы Включены в ставку
Налоги С учётом НДС
Тип договора Прямая аренда
Срок договора от 11 месяцев
Размер платежей 1 месяц
Обеспечительный платеж 1 месяц
Статус Сдан

О бизнес-центре

Класс B+
Этажность 16
Лифты Есть
Общая площадь 54 950 м²
Год постройки 2006
Паркинг Подземный
Вентиляция приточно-вытяжная
Кондиционирование центральное
Телекоммуникации Интернет/Телефония

Расположение

Подробная презентацию по предложению

Собираете информацию? Получите подробную презентацию в удобном формате, чтобы обсудить вариант с коллегами или переслать руководству!

Похожие предложения в других зданиях

БЕЗ КОМИССИИ ID: 261935 Рейтинг8.4 КлассB+

Москва, Дербеневская улица, 15Б

Павелецкая → 1.81 км
~ 18 мин
Арендная плата в месяц 2 250 000 ₽ 18 000 ₽/м² в год С учётом НДС
Характеристики 1 500 м² 5 - 6 этаж Под отделку
Преимущества
  • Класс B+
  • Пешком от метро
  • Кондиционирование и вентиляция
  • Свой паркинг

Предлагаем в прямую аренду офис класса B+ площадью 1500 квадр. метров в бизнес-центре "Свежий ветер"... подробнее

Презентация по предложению

Собираете информацию? Получите подробную презентацию в удобном формате!

БЕЗ КОМИССИИ ID: 281216 Рейтинг6.5 КлассB

Москва, Дербеневская улица, 20 с2

Павелецкая → 1.73 км
~ 17 мин
Арендная плата в месяц 1 715 833 ₽ 14 500 ₽/м² в год С учётом НДС
Характеристики 1 420 м² -1 - 4 этаж Готово к въезду
Преимущества
  • Класс B
  • Пешком от метро
  • Кондиционирование и вентиляция
  • Несколько провайдеров связи

Собственник сдает в долгосрочную аренду офис класса B площадью 1420 кв.м в бизнес-центре "Дербеневский ДД"... подробнее

Презентация по предложению

Собираете информацию? Получите подробную презентацию в удобном формате!

БЕЗ КОМИССИИ ID: 284587 Рейтинг6.0 КлассB

Москва, 2-й Кожевнический переулок, 12

Павелецкая → 1.31 км
~ 13 мин
Арендная плата в месяц 2 266 667 ₽ 17 000 ₽/м² в год С учётом НДС
Характеристики 1 600 м² 2 - 3 этаж Готово к въезду
Преимущества
  • Класс B
  • Пешком от метро
  • Кондиционирование и вентиляция
  • Свой паркинг
  • Несколько провайдеров связи
  • Развитая инфраструктура

Сдаем в долгосрочную прямую аренду офис класса B общей площадью 1600 кв.м в недавно отреконструированном бизнес-центре "Горизонт"... подробнее

Презентация по предложению

Собираете информацию? Получите подробную презентацию в удобном формате!

БЕЗ КОМИССИИ ID: 213834 Рейтинг5.7 КлассB

Москва, Летниковская улица, 11/10

Павелецкая → 1.01 км
~ 10 мин
Арендная плата в месяц 2 044 792 ₽ 15 100 ₽/м² в год С учётом НДС
Характеристики 1 625 м² 1 - 2 этаж Готово к въезду
Преимущества
  • Класс B
  • Пешком от метро
  • Кондиционирование и вентиляция
  • Свой паркинг
  • Несколько провайдеров связи

Сдается в долгосрочную прямую аренду офисное помещение класса B площадью 1625 квадр. метров в бизнес-центре "Кэпитал Хаус"... подробнее

Презентация по предложению

Собираете информацию? Получите подробную презентацию в удобном формате!

БЕЗ КОМИССИИ ID: 12457 Рейтинг7.2 КлассB

Москва, 1-й Кожевнический переулок, 6 с1

Павелецкая → 973 м
~ 10 мин
Арендная плата в месяц 2 125 000 ₽ 17 000 ₽/м² в год С учётом НДС
Характеристики 1 500 м² 4 этаж Готово к въезду
Преимущества
  • Класс B
  • Пешком от метро
  • Кондиционирование и вентиляция
  • Свой паркинг
  • Несколько провайдеров связи
  • Развитая инфраструктура

Предлагаем в прямую аренду помещение под офис класса B общей площадью 1500 кв.м в недавно отреконструированном бизнес-центре "Павелецкий"... подробнее

Презентация по предложению

Собираете информацию? Получите подробную презентацию в удобном формате!

Посмотреть все похожие предложения
Отнеситесь рационально к процессу поиска нового офиса!

Просто ответьте на 3 вопроса, и наши специалисты сами предложат оптимальные варианты под ваш бюджет

.