8.2
Смотреть все фото
БЕЗ КОМИССИИ ID: 1373788 Рейтинг8.2 КлассB+
Бизнес-центр «Порт Плаза»

Аренда офиса 816 м²

Москва, Проектируемый проезд 4062, 6

Технопарк → 275 м
~ 3 мин
Арендная плата в месяц 1 948 000 ₽ 28 600 ₽/м² в год С учётом НДС

Презентация по предложению

Собираете информацию? Получите подробную презентацию в удобном формате!

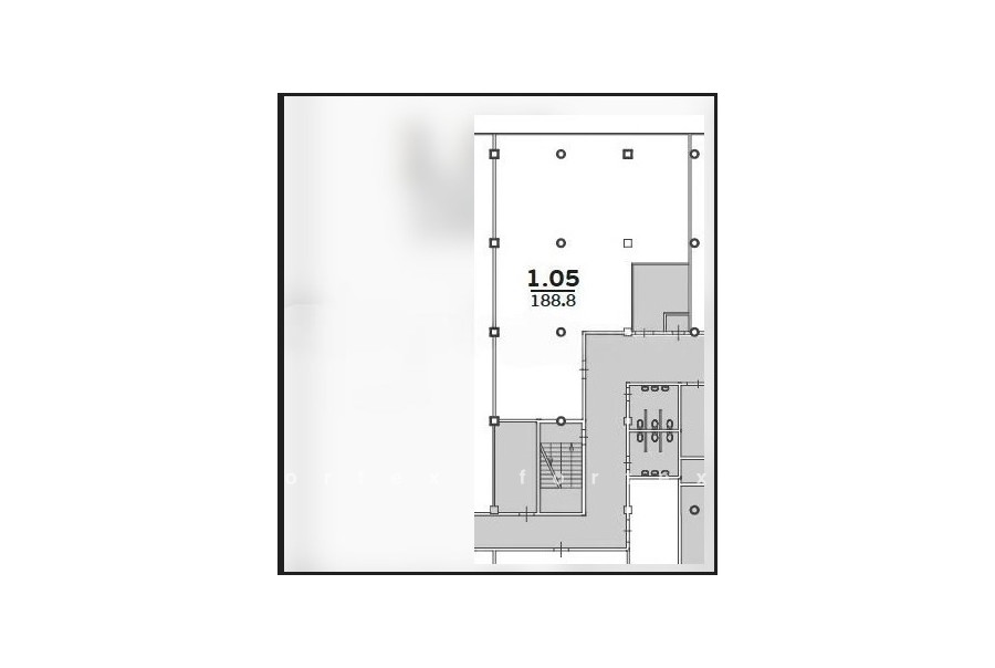
Площадь 816 м²
Состояние Готово к въезду
Планировка Смешанная
Этаж 2

Описание

Преимущества
  • Класс B+
  • Пешком от метро
  • Кондиционирование и вентиляция
  • Несколько провайдеров связи
Предлагается в прямую аренду офисное помещение класса B+ площадью 816 квадратных метров в бизнес-центре "Порт Плаза".

Москва, ЮАО, Проектируемый проезд 4062, 6

Удобное расположение здания для всех видов транспорта:
- Автомобиль: близость транспортных магистралей, таких как Проспект Андропова, Третье Транспортное Кольцо и других.
- Ближайшее метро: буквально 1 мин пешком от метро "Технопарк"

Офис класса B+:
- Помещение готово к въезду
- Вентиляция: Приточно-вытяжная вентиляция
- Кондиционирование: центральное
- Презентабельный центральный ресепшн
- Круглосуточная охрана и видеонаблюдение


Если данное предложение подходит Вашему запросу:

1. Получите презентацию в течение 10 минут в Whatsapp или на почту с фотографиями и планировкой, чтобы обсудить данный вариант с коллегами или переслать руководству. Для этого позвоните по телефону, указанному в объявлении.
2. Мы готовы ответить на любые Ваши вопросы о помещении и коммерческих условиях аренды.
3. Оперативно организуем просмотр помещения с менеджерами на объекте или подготовим виртуальный тур.

Звоните нам в любое время. По будням мы сможем ответить на Ваши вопросы до 19:00. В выходные или вечернее время мы передадим Ваш контакт нашему менеджеру по аренде.

Коммерческие условия

Арендная плата 1 948 000 ₽
Ставка арендной платы 28 600 ₽ м²/год
Эксплуатационные расходы Включены в ставку
Налоги С учётом НДС
Тип договора Прямая аренда
Срок договора от 11 месяцев
Размер платежей 1 месяц
Обеспечительный платеж 2 месяц
Статус Сдан

О бизнес-центре

Класс B+
Этажность 6
Лифты Есть
Общая площадь 65 000 м²
Год постройки 2013
Паркинг Стихийный
Вентиляция приточно-вытяжная
Кондиционирование центральное
Телекоммуникации Интернет/Телефония

Расположение

Подробная презентацию по предложению

Собираете информацию? Получите подробную презентацию в удобном формате, чтобы обсудить вариант с коллегами или переслать руководству!

Похожие предложения в других зданиях

ВОЗМОЖНО ОСВОБОЖДЕНИЕ ID: 1288436 Рейтинг9.1 КлассА

Москва, проспект Андропова, 18 к5

Технопарк → 165 м
~ 2 мин
Арендная плата в месяц 2 031 233 ₽ 28 700 ₽/м² в год С учётом НДС
Характеристики 849 м² 9 этаж Готово к въезду
Преимущества
  • Класс А
  • Пешком от метро
  • Кондиционирование и вентиляция
  • Свой паркинг
  • Развитая инфраструктура

Предлагается в прямую аренду офисный блок класса А общей площадью 849 кв. метров в бизнес-центре "Нагатино Айлэнд"... подробнее

>

Виртуальный тур

Презентация по предложению

Собираете информацию? Получите подробную презентацию в удобном формате!

БЕЗ КОМИССИИ ID: 1296957 Рейтинг8.2 КлассB

Москва, проспект Андропова, 11

Технопарк → 1.44 км
~ 14 мин
Арендная плата в месяц 1 926 838 ₽ 32 000 ₽/м² в год С учётом НДС
Характеристики 722 м² 2 этаж Под отделку
Преимущества
  • Класс B
  • Пешком от метро
  • Кондиционирование и вентиляция

Предлагается в долгосрочную аренду офисное помещение класса B площадью 722 квадратных метров в бизнес-центре... подробнее

Презентация по предложению

Собираете информацию? Получите подробную презентацию в удобном формате!

БЕЗ КОМИССИИ ID: 1317675 Рейтинг7.8 КлассB

Москва, улица Мастеркова, 4

Автозаводская → 69 м
~ 1 мин
Арендная плата в месяц 2 049 775 ₽ 27 300 ₽/м² в год С учётом НДС
Характеристики 901 м² 2 этаж Под отделку
Преимущества
  • Класс B
  • Пешком от метро
  • Кондиционирование и вентиляция
  • Свой паркинг
  • Развитая инфраструктура

Сдается в долгосрочную аренду помещение под офис класса B общей площадью 901 кв.м в бизнес-центре... подробнее

Презентация по предложению

Собираете информацию? Получите подробную презентацию в удобном формате!

БЕЗ КОМИССИИ ID: 1378774 Рейтинг7.8 КлассB

Москва, улица Мастеркова, 4

Автозаводская → 69 м
~ 1 мин
Арендная плата в месяц 1 840 000 ₽ 30 000 ₽/м² в год С учётом НДС
Характеристики 736 м² 2 - 3 этаж Готово к въезду
Преимущества
  • Класс B
  • Пешком от метро
  • Кондиционирование и вентиляция
  • Свой паркинг
  • Развитая инфраструктура

Предлагается в долгосрочную прямую аренду офис класса B общей площадью 736 кв. метров в бизнес-центре... подробнее

Презентация по предложению

Собираете информацию? Получите подробную презентацию в удобном формате!

БЕЗ КОМИССИИ ID: 288558 Рейтинг8.6 КлассB+

Москва, улица Ленинская Слобода, 19

Автозаводская → 494 м
~ 5 мин
Арендная плата в месяц 2 434 667 ₽ 32 000 ₽/м² в год С учётом НДС
Характеристики 913 м² 4 этаж Готово к въезду
Преимущества
  • Класс B+
  • Пешком от метро
  • Кондиционирование и вентиляция
  • Свой паркинг
  • Несколько провайдеров связи
  • Развитая инфраструктура

Предлагается в долгосрочную аренду офисное помещение класса B+ общей площадью 913 квадратных метров в бизнес-центре "Омега Плаза"... подробнее

Презентация по предложению

Собираете информацию? Получите подробную презентацию в удобном формате!

Посмотреть все похожие предложения
Отнеситесь рационально к процессу поиска нового офиса!

Просто ответьте на 3 вопроса, и наши специалисты сами предложат оптимальные варианты под ваш бюджет

.