8.2
Смотреть все фото
БЕЗ КОМИССИИ ID: 284418 Рейтинг8.2 КлассB+
Бизнес-центр «Порт Плаза»

Аренда офиса 933 м²

Москва, Проектируемый проезд 4062, 6

Технопарк → 275 м
~ 3 мин
Арендная плата в месяц 1 803 800 ₽ 23 200 ₽/м² в год С учётом НДС

Презентация по предложению

Собираете информацию? Получите подробную презентацию в удобном формате!

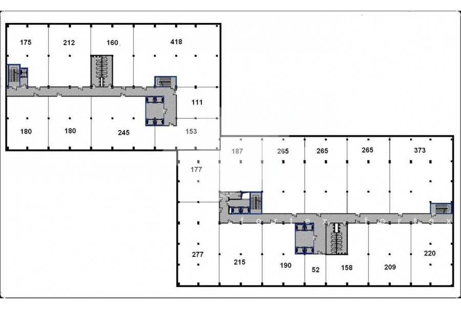
Площадь 933 м²
Состояние Готово к въезду
Планировка Смешанная
Этаж 3 - 4

Описание

Преимущества
  • Класс B+
  • Пешком от метро
  • Кондиционирование и вентиляция
  • Несколько провайдеров связи
Предлагаем в долгосрочную аренду офисный блок класса B+ площадью 933 кв.м в новом бизнес-центре "Порт Плаза".

Москва, ЮАО, Проектируемый проезд 4062, 6

Удобное расположение здания для всех видов транспорта:
- Автомобиль: близость транспортных магистралей, таких как Проспект Андропова, Третье Транспортное Кольцо и других.
- Возможность аренды парковочных мест.
- Ближайшее метро: буквально 3 мин пешком от метро "Технопарк"

Офис класса B+:
- Помещение с отделкой, готово к въезду
- Вентиляция: Приточно-вытяжная вентиляция
- Кондиционирование: центральное
- Презентабельный центральный рецепшн
- Круглосуточная охрана и видеонаблюдение

Возможность заключения контракта в соответствии с 44ФЗ по госзакупкам.

Что еще можно узнать о предложении:

1. Мы отправим Вам подробную презентацию с планировкой и фотографиями в течение 10 минут после звонка, чтобы Вы могли поделиться информацией с руководством или с коллегами.
2. Задайте любые вопросы менеджеру по телефону, готовы обсуждать любые предложения по финансовым условиям договора аренды.
3. Оперативно организуем просмотр помещения, договоримся на любое удобное время, подготовим виртуальный тур.

Звоните нам в любое время. По будням мы сможем ответить на Ваши вопросы до 19:00. В выходные или вечернее время мы передадим Ваш контакт нашему менеджеру по аренде.

Коммерческие условия

Арендная плата 1 804 190 ₽
Ставка арендной платы 23 200 ₽ м²/год
Эксплуатационные расходы Включены в ставку
Налоги С учётом НДС
Тип договора Прямая аренда
Срок договора от 11 месяцев
Размер платежей 1 месяц
Обеспечительный платеж 1 месяц
Статус Сдан

О бизнес-центре

Класс B+
Этажность 6
Лифты Есть
Общая площадь 65 000 м²
Год постройки 2013
Паркинг Стихийный
Вентиляция приточно-вытяжная
Кондиционирование центральное
Телекоммуникации Интернет/Телефония

Расположение

Подробная презентацию по предложению

Собираете информацию? Получите подробную презентацию в удобном формате, чтобы обсудить вариант с коллегами или переслать руководству!

Похожие предложения в других зданиях

БЕЗ КОМИССИИ ID: 422063 Рейтинг9.1 КлассА

Москва, проспект Андропова, 18 к5

Технопарк → 165 м
~ 2 мин
Арендная плата в месяц 2 041 667 ₽ 24 500 ₽/м² в год С учётом НДС
Характеристики 1 000 м² 17 этаж Готово к въезду
Преимущества
  • Класс А
  • Пешком от метро
  • Кондиционирование и вентиляция
  • Свой паркинг
  • Развитая инфраструктура

Предлагаем в прямую аренду офис класса А общей площадью 1000 кв.м в бизнес-центре "Нагатино Айлэнд"... подробнее

Презентация по предложению

Собираете информацию? Получите подробную презентацию в удобном формате!

БЕЗ КОМИССИИ ID: 1297996 Рейтинг8.7 КлассB

Москва, проспект Андропова, 8

Технопарк → 267 м
~ 3 мин
Арендная плата в месяц 2 200 000 ₽ 26 400 ₽/м² в год С учётом НДС
Характеристики 1 000 м² 5 этаж Готово к въезду
Преимущества
  • Класс B
  • Пешком от метро
  • Кондиционирование и вентиляция
  • Свой паркинг
  • Развитая инфраструктура

Предлагается в прямую аренду помещение под офис класса B площадью 1000 квадратных метров в Офисно-торговом центре "Мегаполис"... подробнее

Презентация по предложению

Собираете информацию? Получите подробную презентацию в удобном формате!

БЕЗ КОМИССИИ ID: 305382 Рейтинг7.7 КлассB

Москва, Автозаводская улица, 21 к1

ЗИЛ → 625 м
~ 6 мин
Арендная плата в месяц 1 380 000 ₽ 20 000 ₽/м² в год С учётом НДС
Характеристики 828 м² 1 - 3 этаж Готово к въезду
Преимущества
  • Класс B
  • Пешком от метро
  • Кондиционирование и вентиляция
  • Свой паркинг
  • Развитая инфраструктура

Предлагаем в прямую аренду помещение под офис класса B площадью 828 квадратных метров в историческом недавно отреконструированном бизнес-центре... подробнее

Презентация по предложению

Собираете информацию? Получите подробную презентацию в удобном формате!

БЕЗ КОМИССИИ ID: 76215 Рейтинг8.1 КлассB

Москва, улица Ленинская Слобода, 26

Автозаводская → 550 м
~ 7 мин
Арендная плата в месяц 1 833 333 ₽ 22 000 ₽/м² в год С учётом НДС
Характеристики 1 000 м² 2 этаж Готово к въезду
Преимущества
  • Класс B
  • Пешком от метро
  • Кондиционирование и вентиляция
  • Свой паркинг
  • Развитая инфраструктура

Предлагается в прямую аренду офисное помещение класса B общей площадью 1000 квадр. метров в новом недавно отреконструированном бизнес-центре "Омега-2"... подробнее

Презентация по предложению

Собираете информацию? Получите подробную презентацию в удобном формате!

БЕЗ КОМИССИИ ID: 1324733 Рейтинг6.3 КлассB

Москва, 2-й Южнопортовый проезд, 14/22

Кожуховская → 598 м
~ 6 мин
Арендная плата в месяц 1 633 333 ₽ 20 000 ₽/м² в год С учётом НДС
Характеристики 980 м² 4 этаж Готово к въезду
Преимущества
  • Класс B
  • Пешком от метро
  • Кондиционирование и вентиляция
  • Свой паркинг
  • Несколько провайдеров связи
  • Развитая инфраструктура

Предлагается в долгосрочную аренду офис класса B общей площадью 980 кв.м в бизнес-центре "Южнопортовый"... подробнее

Презентация по предложению

Собираете информацию? Получите подробную презентацию в удобном формате!

Посмотреть все похожие предложения
Отнеситесь рационально к процессу поиска нового офиса!

Просто ответьте на 3 вопроса, и наши специалисты сами предложат оптимальные варианты под ваш бюджет

.