8.2
Смотреть все фото
БЕЗ КОМИССИИ ID: 1330092 Рейтинг8.2 КлассB+
Бизнес-центр «Порт Плаза»

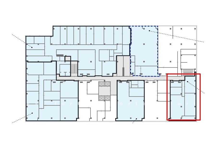
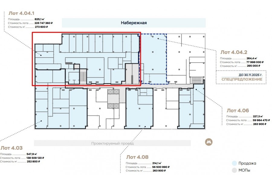
Продажа офиса 2078 м²

Москва, Проектируемый проезд 4062, 6

Технопарк → 275 м
~ 3 мин
Стоимость 558.74 млн ₽ 268 900 ₽/м²

Презентация по предложению

Собираете информацию? Получите подробную презентацию в удобном формате!

Площадь 2 078 м²
Состояние Готово к въезду
Планировка Смешанная
Этаж 4

Описание

Преимущества
  • Класс B+
  • Пешком от метро
  • Кондиционирование и вентиляция
  • Несколько провайдеров связи
В продаже офисный блок площадью 2078 кв. метров в бизнес-центре "Порт Плаза".

Помещение можно адаптировать под любой бизнес благодаря функциональной планировке - идеальный баланс комфорта и экономической выгоды. Оптимальное решение для стабильного бизнеса или выгодных инвестиций.

Офис класса B+:
- Помещение с отделкой, готово к въезду
- Вентиляция: Приточно-вытяжная вентиляция
- Кондиционирование: центральное

О офисном центре:
Москва, ЮАО, Проектируемый проезд 4062, 6

Удобное расположение здания для всех видов транспорта:
- Автомобиль: близость транспортных магистралей, таких как Третье Транспортное Кольцо, Проспект Андропова и других.
- Ближайшее метро: буквально 1 мин пешком от метро "Технопарк"



Если данное предложение подходит Вашему запросу:

1. Мы подготовили презентацию с информацией о помещении, фотографиями и планировкой, чтобы Вы могли поделиться ей с коллегами или руководством. Попросите об этом нашего менеджера по телефону в объявлении.
2. Ответим на любые Ваши вопросы, готовы обсуждать любые предложения по коммерческим условиям продажи помещения.

Вы можете позвонить нам в любое время. Мы ответим на Ваши вопросы по будням до 19:00, а поздно вечером или в выходные сможем передать Ваш контакт нашему менеджеру.

О бизнес-центре

Класс B+
Этажность 6
Лифты Есть
Общая площадь 65 000 м²
Год постройки 2013
Паркинг Стихийный
Вентиляция приточно-вытяжная
Кондиционирование центральное
Телекоммуникации Интернет/Телефония

Расположение

Подробная презентацию по предложению

Собираете информацию? Получите подробную презентацию в удобном формате, чтобы обсудить вариант с коллегами или переслать руководству!

Похожие предложения в других зданиях

БЕЗ КОМИССИИ ID: 1373826 Рейтинг9.1 КлассА

Москва, проспект Андропова, 18 к5

Технопарк → 165 м
~ 2 мин
Стоимость 3 160 025 000 ₽ 275 000 ₽/м²
Характеристики 11 491 м² 14 - 20 этаж Готово к въезду
Преимущества
  • Класс А
  • Пешком от метро
  • Кондиционирование и вентиляция
  • Свой паркинг
  • Развитая инфраструктура

В продаже офисный блок общей площадью 11491 кв. метров в бизнес-центре "Нагатино Айлэнд". .. подробнее

Презентация по предложению

Собираете информацию? Получите подробную презентацию в удобном формате!

БЕЗ КОМИССИИ ID: 1318350 Рейтинг9.1 КлассА

Москва, проспект Андропова, 18 к5

Технопарк → 165 м
~ 2 мин
Стоимость 672 210 000 ₽ 330 000 ₽/м²
Характеристики 2 037 м² 11 этаж Готово к въезду
Преимущества
  • Класс А
  • Пешком от метро
  • Кондиционирование и вентиляция
  • Свой паркинг
  • Развитая инфраструктура

Продается офис площадью 2037 квадратных метров в бизнес-центре "Нагатино Айлэнд". .. подробнее

Презентация по предложению

Собираете информацию? Получите подробную презентацию в удобном формате!

БЕЗ КОМИССИИ ID: 1318351 Рейтинг9.1 КлассА

Москва, проспект Андропова, 18 к5

Технопарк → 165 м
~ 2 мин
Стоимость 418 110 000 ₽ 330 000 ₽/м²
Характеристики 1 267 м² 8 этаж Готово к въезду
Преимущества
  • Класс А
  • Пешком от метро
  • Кондиционирование и вентиляция
  • Свой паркинг
  • Развитая инфраструктура

В продаже офисный блок общей площадью 1267 кв.м в бизнес-центре "Нагатино Айлэнд". .. подробнее

Презентация по предложению

Собираете информацию? Получите подробную презентацию в удобном формате!

БЕЗ КОМИССИИ ID: 1326251 Рейтинг9.0 КлассА

Москва, проспект Андропова, 10

Технопарк → 264 м
~ 3 мин
Стоимость 109 999 904 ₽ 491 100 ₽/м²
Характеристики 224 м² 4 этаж Готово к въезду
Преимущества
  • Класс А
  • Пешком от метро
  • Новое строительство
  • Кондиционирование и вентиляция

В продаже офисное помещение площадью 224 кв. метров в жилом комплексе "YES Технопарк". .. подробнее

Презентация по предложению

Собираете информацию? Получите подробную презентацию в удобном формате!

БЕЗ КОМИССИИ ID: 1373690 Рейтинг5.5 КлассB

Москва, Автозаводская улица, 17 к1

Автозаводская → 307 м
~ 3 мин
Стоимость 45 000 138 ₽ 284 800 ₽/м²
Характеристики 158 м² 2 этаж Готово к въезду
Преимущества
  • Класс B
  • Пешком от метро
  • Кондиционирование и вентиляция
  • Развитая инфраструктура

В продаже офис общей площадью 158 квадратных метров в бизнес-центре. .. подробнее

Презентация по предложению

Собираете информацию? Получите подробную презентацию в удобном формате!

Посмотреть все похожие предложения
Отнеситесь рационально к процессу поиска нового офиса!

Просто ответьте на 3 вопроса, и наши специалисты сами предложат оптимальные варианты под ваш бюджет