8.2
Смотреть все фото
БЕЗ КОМИССИИ ID: 1324573 Рейтинг6.1 КлассB

Москва, Посланников переулок, 5 с1

Бауманская → 459 м
~ 5 мин
Арендная плата в месяц 505 700 ₽ 21 000 ₽/м² в год С учётом НДС

Презентация по предложению

Собираете информацию? Получите подробную презентацию в удобном формате!

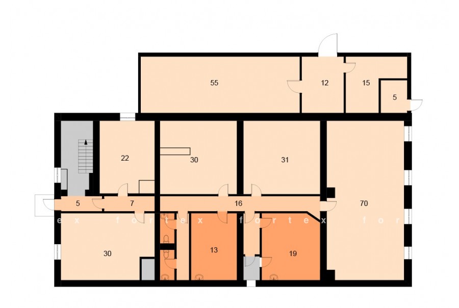
Площадь 289 м²
Состояние Готово к въезду
Планировка Смешанная
Этаж 3

Описание

Преимущества
  • Класс B
  • Пешком от метро
  • Кондиционирование и вентиляция
  • Свой паркинг
Предлагается в прямую аренду офисное помещение класса B общей площадью 289 квадратных метров в бизнес-центре.

Москва, ЦАО, Посланников переулок, 5 с1

Удобное расположение здания для всех видов транспорта:
- Автомобиль: близость транспортных магистралей, таких как Третье Транспортное Кольцо и других.
- Возможность аренды парковочных мест.
- Ближайшее метро: от метро "Бауманская" всего 5 мин пешком

Офис класса B:
- Помещение с отделкой, готово к въезду
- Кондиционирование: сплит-системы


Если данное предложение подходит Вашему запросу:

1. Мы подготовили презентацию с информацией о помещении, фотографиями и планировкой, чтобы Вы могли поделиться ей с коллегами или руководством. Попросите об этом нашего менеджера по телефону в объявлении.
2. Мы готовы ответить на любые Ваши вопросы о помещении и коммерческих условиях аренды.
3. Проводим показы ежедневно, договоримся на удобное для Вас время. Можем организовать виртуальный тур по офисному блоку.

Вы можете позвонить нам в любое время. Мы ответим на Ваши вопросы по будням до 19:00, а поздно вечером или в выходные зафиксируем Ваш контакт и перезвоним в рабочее время.

Коммерческие условия

Арендная плата 505 750 ₽
Ставка арендной платы 21 000 ₽ м²/год
Эксплуатационные расходы Включены в ставку
Налоги С учётом НДС
Тип договора Прямая аренда
Срок договора от 11 месяцев
Размер платежей 1 месяц
Обеспечительный платеж 1 месяц
Статус Сдан

О бизнес-центре

Класс B
Этажность 4
Лифты Нет
Общая площадь 0 м²
Паркинг Наземный
Вентиляция естественная
Кондиционирование сплит-системы
Телекоммуникации Интернет/Телефония

Расположение

Подробная презентацию по предложению

Собираете информацию? Получите подробную презентацию в удобном формате, чтобы обсудить вариант с коллегами или переслать руководству!

Похожие предложения в других зданиях

БЕЗ КОМИССИИ ID: 57620 Рейтинг4.0 КлассB

Москва, Бауманская улица, 20 с7

Бауманская → 473 м
~ 5 мин
Арендная плата в месяц 508 000 ₽ 24 000 ₽/м² в год С учётом НДС
Характеристики 254 м² 1 этаж Готово к въезду
Преимущества
  • Класс B
  • Пешком от метро
  • Кондиционирование и вентиляция

Сдаем в прямую аренду помещение под офис класса B площадью 254 кв.м в бизнес-центре... подробнее

Презентация по предложению

Собираете информацию? Получите подробную презентацию в удобном формате!

БЕЗ КОМИССИИ ID: 977889 Рейтинг8.0 КлассА

Москва, Доброслободская улица, 3

Бауманская → 818 м
~ 8 мин
Арендная плата в месяц 505 750 ₽ 21 000 ₽/м² в год С учётом НДС
Характеристики 289 м² 4 этаж Готово к въезду
Преимущества
  • Класс А
  • Пешком от метро
  • Кондиционирование и вентиляция
  • Свой паркинг
  • Несколько провайдеров связи
  • Развитая инфраструктура

Предлагаем в долгосрочную аренду офис класса А площадью 289 квадр. метров в бизнес-центре "Басманов"... подробнее

Презентация по предложению

Собираете информацию? Получите подробную презентацию в удобном формате!

БЕЗ КОМИССИИ ID: 255888 Рейтинг4.5 КлассB

Москва, 2-й Ирининский переулок, 3

Бауманская → 842 м
~ 8 мин
Арендная плата в месяц 500 000 ₽ 20 000 ₽/м² в год С учётом НДС
Характеристики 300 м² 3 этаж Готово к въезду
Преимущества
  • Класс B
  • Пешком от метро

Предлагается в долгосрочную аренду офисное помещение класса B площадью 300 квадратных метров в бизнес-центре... подробнее

Презентация по предложению

Собираете информацию? Получите подробную презентацию в удобном формате!

БЕЗ КОМИССИИ ID: 1378452 Рейтинг6.7 КлассB

Москва, Старая Басманная улица, 38/2 с1

Бауманская → 839 м
~ 8 мин
Арендная плата в месяц 528 000 ₽ 22 000 ₽/м² в год С учётом НДС
Характеристики 288 м² 3 этаж Готово к въезду
Преимущества
  • Класс B
  • Пешком от метро
  • Кондиционирование и вентиляция
  • Свой паркинг

Сдается в долгосрочную прямую аренду помещение под офис класса B площадью 288 квадратных метров в бизнес-центре... подробнее

Презентация по предложению

Собираете информацию? Получите подробную презентацию в удобном формате!

БЕЗ КОМИССИИ ID: 194955 Рейтинг8.9 КлассB+

Москва, Нижняя Красносельская улица, 35 с9

Бауманская → 674 м
~ 7 мин
Арендная плата в месяц 605 000 ₽ 24 200 ₽/м² в год С учётом НДС
Характеристики 300 м² 6 этаж Готово к въезду
Преимущества
  • Класс B+
  • Пешком от метро
  • Кондиционирование и вентиляция
  • Свой паркинг

Предлагается в долгосрочную аренду помещение под офис класса B+ площадью 300 квадр. метров в недавно отреконструированном бизнес-центре "Manhattan"... подробнее

Презентация по предложению

Собираете информацию? Получите подробную презентацию в удобном формате!

Посмотреть все похожие предложения
Отнеситесь рационально к процессу поиска нового офиса!

Просто ответьте на 3 вопроса, и наши специалисты сами предложат оптимальные варианты под ваш бюджет

.