8.2
Смотреть все фото
БЕЗ КОМИССИИ ID: 1128751 Рейтинг7.5 КлассB
Бизнес-центр «Пост Плаза»

Аренда офиса 4406 м²

Москва, Большая Почтовая улица, 26В с2

Электрозаводская → 664 м
~ 7 мин
Арендная плата в месяц 7 857 400 ₽ 21 400 ₽/м² в год С учётом НДС

Презентация по предложению

Собираете информацию? Получите подробную презентацию в удобном формате!

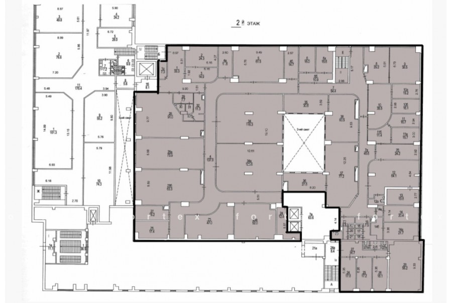
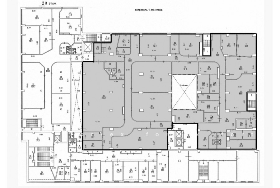
Площадь 4 406 м²
Состояние Готово к въезду
Планировка Смешанная
Этаж 3 - 4

Описание

Преимущества
  • Класс B
  • Пешком от метро
  • Кондиционирование и вентиляция
  • Свой паркинг
  • Несколько провайдеров связи
  • Развитая инфраструктура
Собственник сдает в долгосрочную аренду офис класса B площадью 4406 кв.м в недавно отреконструированном бизнес-центре "Пост Плаза".

Москва, ЦАО, Большая Почтовая улица, 26В с2

Удобная локация здания:
- Автомобиль: близость транспортных магистралей, таких как улица Стромынка, Русаковская улица, Большая Черкизовская улица, Третье Транспортное Кольцо и других.
- Возможность аренды парковочных мест.
- Ближайшее метро: от метро "Электрозаводская" всего 12 мин пешком

Офис класса B:
- Помещение с отделкой, готово к въезду
- Вентиляция: Приточно-вытяжная вентиляция
- Кондиционирование: центральное
- Круглосуточная охрана и видеонаблюдение
- Развитая инфраструктура внутри здания

Возможность заключения контракта в соответствии с 44ФЗ по госзакупкам.

Если данное предложение подходит Вашему запросу:

1. Получите презентацию в течение 10 минут в Whatsapp или на почту с фотографиями и планировкой, чтобы обсудить данный вариант с коллегами или переслать руководству. Для этого позвоните по телефону, указанному в объявлении.
2. Ответим на любые Ваши вопросы, готовы обсуждать любые предложения по коммерческим условиям аренды помещения.
3. Покажем помещение в удобное для Вас время с менеджером в здании, при необходимости подготовим виртуальный тур.

Звоните нам в любое время. По будням мы сможем ответить на Ваши вопросы до 19:00. В выходные или вечернее время мы передадим Ваш контакт нашему менеджеру по аренде.

Коммерческие условия

Арендная плата 5 375 320 ₽
Ставка арендной платы 21 400 ₽ м²/год
Эксплуатационные расходы Включены в ставку
Налоги С учётом НДС
Тип договора Прямая аренда
Срок договора Долгосрочный
Размер платежей 1 месяц
Обеспечительный платеж 2 месяц
Статус Сдан

О бизнес-центре

Класс B
Этажность 6
Лифты Есть
Общая площадь 13 118 м²
Год постройки 1982
Паркинг Наземный
Вентиляция приточно-вытяжная
Кондиционирование центральное
Телекоммуникации Интернет/Телефония

Расположение

Подробная презентацию по предложению

Собираете информацию? Получите подробную презентацию в удобном формате, чтобы обсудить вариант с коллегами или переслать руководству!

Похожие предложения в других зданиях

БЕЗ КОМИССИИ ID: 307349 Рейтинг8.1 КлассB

Москва, улица Стромынка, 4 к1

Сокольники → 637 м
~ 6 мин
Арендная плата в месяц 7 875 000 ₽ 18 900 ₽/м² в год С учётом НДС
Характеристики 5 000 м² этаж Готово к въезду
Преимущества
  • Класс B
  • Пешком от метро
  • Кондиционирование и вентиляция
  • Свой паркинг
  • Развитая инфраструктура

Сдаем в долгосрочную прямую аренду помещение под офис класса B площадью 5000 квадратных метров в бизнес-центре... подробнее

Презентация по предложению

Собираете информацию? Получите подробную презентацию в удобном формате!

БЕЗ КОМИССИИ ID: 1044640 Рейтинг7.7 КлассB

Москва, Русаковская улица, 13 с2

Сокольники → 825 м
~ 8 мин
Арендная плата в месяц 6 753 333 ₽ 20 000 ₽/м² в год С учётом НДС
Характеристики 4 052 м² 1 - 7 этаж Готово к въезду
Преимущества
  • Класс B
  • Пешком от метро
  • Кондиционирование и вентиляция
  • Свой паркинг

Сдаем в прямую аренду офисный блок класса B общей площадью 4052 кв.м в бизнес-центре "Русаковская 13 с2"... подробнее

Презентация по предложению

Собираете информацию? Получите подробную презентацию в удобном формате!

БЕЗ КОМИССИИ ID: 923532 Рейтинг6.7 КлассB

Москва, Ткацкая улица, 11 с2

Семеновская → 786 м
~ 8 мин
Арендная плата в месяц 6 006 000 ₽ 18 500 ₽/м² в год С учётом НДС
Характеристики 3 900 м² -1 - 3 этаж Готово к въезду
Преимущества
  • Класс B
  • Пешком от метро
  • Кондиционирование и вентиляция

Предлагаем в долгосрочную аренду офисный блок класса B площадью 3900 квадр. метров в бизнес-центре... подробнее

Презентация по предложению

Собираете информацию? Получите подробную презентацию в удобном формате!

БЕЗ КОМИССИИ ID: 1284729 Рейтинг7.5 КлассB

Москва, Нижняя Красносельская улица, 40/12 к1

Красносельская → 788 м
~ 8 мин
Арендная плата в месяц 6 859 311 ₽ 20 900 ₽/м² в год С учётом НДС
Характеристики 3 941 м² 2 - 10 этаж Готово к въезду
Преимущества
  • Класс B
  • Пешком от метро
  • Кондиционирование и вентиляция
  • Свой паркинг

Сдаем в долгосрочную аренду помещение под офис класса B общей площадью 3941 квадратных метров в бизнес-центре "Новь"... подробнее

Презентация по предложению

Собираете информацию? Получите подробную презентацию в удобном формате!

БЕЗ КОМИССИИ ID: 307504 Рейтинг8.0 КлассB+

Москва, Верхняя Красносельская улица, 3 с1

Красносельская → 824 м
~ 8 мин
Арендная плата в месяц 8 752 000 ₽ 24 000 ₽/м² в год С учётом НДС
Характеристики 4 376 м² 1 - 8 этаж Готово к въезду
Преимущества
  • Класс B+
  • Пешком от метро
  • Кондиционирование и вентиляция
  • Несколько провайдеров связи
  • Развитая инфраструктура

Сдаем в долгосрочную прямую аренду помещение под офис класса B+ площадью 4376 квадр. метров в новом бизнес-центре "Офис-парк Красносельский"... подробнее

Презентация по предложению

Собираете информацию? Получите подробную презентацию в удобном формате!

Посмотреть все похожие предложения
Отнеситесь рационально к процессу поиска нового офиса!

Просто ответьте на 3 вопроса, и наши специалисты сами предложат оптимальные варианты под ваш бюджет

.