8.2

Виртуальный тур

Смотреть все фото
БЕЗ КОМИССИИ ID: 1098936 Рейтинг6.1 КлассB
Бизнес-центр «Правды 8 к7»

Аренда офиса 620 м²

Москва, улица Правды, 8 к7

Белорусская → 1.21 км
~ 12 мин
Арендная плата в месяц 878 300 ₽ 17 000 ₽/м² в год С учётом НДС

Презентация по предложению

Собираете информацию? Получите подробную презентацию в удобном формате!

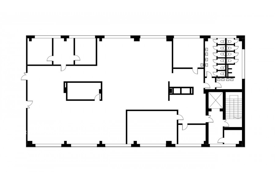
Площадь 620 м²
Состояние Готово к въезду
Планировка Смешанная
Этаж 3

Описание

Преимущества
  • Класс B
  • Пешком от метро
  • Свой паркинг
Сдается в долгосрочную аренду офисное помещение класса B общей площадью 620 квадр. метров в бизнес-центре.

Москва, САО, улица Правды, 8 к7

Удобная локация здания:
- Автомобиль: близость транспортных магистралей, таких как Ленинградский проспект, Бутырская улица, Третье Транспортное Кольцо и других.
- Возможность аренды парковочных мест.
- Ближайшее метро: от метро "Белорусская" всего 11 мин пешком

Офис класса B:
- Помещение готово к въезду


Если данное предложение подходит Вашему запросу:

1. Получите презентацию в течение 10 минут в Whatsapp или на почту с фотографиями и планировкой, чтобы обсудить данный вариант с коллегами или переслать руководству. Для этого позвоните по телефону, указанному в объявлении.
2. Задайте любые вопросы менеджеру по телефону, готовы обсуждать любые предложения по финансовым условиям договора аренды.
3.

Звоните нам в любое время. По будням мы сможем ответить на Ваши вопросы до 19:00. В выходные или вечернее время мы передадим Ваш контакт нашему менеджеру по аренде.

Коммерческие условия

Арендная плата 878 330 ₽
Ставка арендной платы 17 000 ₽ м²/год
Эксплуатационные расходы Включены в ставку
Налоги С учётом НДС
Тип договора Субаренда
Срок договора Долгосрочный
Размер платежей 1 месяц
Обеспечительный платеж 2 месяц
Статус Сдан

О бизнес-центре

Класс B
Этажность 5
Лифты Нет
Общая площадь 6 376 м²
Год постройки 1971
Паркинг Наземный
Вентиляция приточно-вытяжная
Кондиционирование сплит-системы
Телекоммуникации Интернет/Телефония

Расположение

Подробная презентацию по предложению

Собираете информацию? Получите подробную презентацию в удобном формате, чтобы обсудить вариант с коллегами или переслать руководству!

Похожие предложения в других зданиях

БЕЗ КОМИССИИ ID: 245769 Рейтинг7.2 КлассB

Москва, 3-я улица Ямского Поля, 30

Белорусская → 1.03 км
~ 10 мин
Арендная плата в месяц 748 800 ₽ 15 600 ₽/м² в год С учётом НДС
Характеристики 576 м² 2 - 3 этаж Готово к въезду
Преимущества
  • Класс B
  • Пешком от метро
  • Кондиционирование и вентиляция
  • Свой паркинг

Предлагаем в долгосрочную прямую аренду помещение под офис класса B площадью 576 квадратных метров в историческом бизнес-центре... подробнее

Презентация по предложению

Собираете информацию? Получите подробную презентацию в удобном формате!

ВОЗМОЖНО ОСВОБОЖДЕНИЕ ID: 1312934 Рейтинг6.2 КлассB

Москва, 5-я улица Ямского Поля, 9

Савёловская → 1.24 км
~ 12 мин
Арендная плата в месяц 892 500 ₽ 17 800 ₽/м² в год С учётом НДС
Характеристики 600 м² 3 этаж Готово к въезду
Преимущества
  • Класс B
  • Пешком от метро
  • Кондиционирование и вентиляция
  • Свой паркинг
  • Несколько провайдеров связи

Предлагаем в долгосрочную аренду офис класса B площадью 600 квадр. метров в историческом бизнес-центре... подробнее

>

Виртуальный тур

Презентация по предложению

Собираете информацию? Получите подробную презентацию в удобном формате!

ВОЗМОЖНО ОСВОБОЖДЕНИЕ ID: 288657 Рейтинг7.5 КлассB

Москва, 3-я улица Ямского Поля, 20 с2

Белорусская → 963 м
~ 10 мин
Арендная плата в месяц 878 750 ₽ 19 000 ₽/м² в год С учётом НДС
Характеристики 555 м² 1 - 3 этаж Готово к въезду
Преимущества
  • Класс B
  • Пешком от метро
  • Кондиционирование и вентиляция
  • Свой паркинг

Сдается в долгосрочную прямую аренду офисный блок класса B площадью 555 квадр. метров в бизнес-центре... подробнее

Презентация по предложению

Собираете информацию? Получите подробную презентацию в удобном формате!

БЕЗ КОМИССИИ ID: 147986 Рейтинг6.2 КлассB

Москва, 3-я улица Ямского Поля, 24

Белорусская → 859 м
~ 9 мин
Арендная плата в месяц 920 000 ₽ 16 000 ₽/м² в год С учётом НДС
Характеристики 690 м² 2 этаж Готово к въезду
Преимущества
  • Класс B
  • Пешком от метро
  • Кондиционирование и вентиляция
  • Свой паркинг
  • Несколько провайдеров связи
  • Развитая инфраструктура

Предлагается в долгосрочную аренду офисное помещение класса B площадью 690 кв. метров в историческом недавно отреконструированном бизнес-центре... подробнее

Презентация по предложению

Собираете информацию? Получите подробную презентацию в удобном формате!

БЕЗ КОМИССИИ ID: 294321 Рейтинг6.4 КлассB

Москва, 3-я улица Ямского Поля, 2 к1

Белорусская → 586 м
~ 7 мин
Арендная плата в месяц 891 083 ₽ 17 000 ₽/м² в год С учётом НДС
Характеристики 629 м² 1 этаж Готово к въезду
Преимущества
  • Класс B
  • Пешком от метро
  • Кондиционирование и вентиляция
  • Свой паркинг
  • Развитая инфраструктура

Сдается в долгосрочную прямую аренду помещение под офис класса B общей площадью 629 квадр. метров в бизнес-центре "Ямское поле"... подробнее

Презентация по предложению

Собираете информацию? Получите подробную презентацию в удобном формате!

Посмотреть все похожие предложения
Отнеситесь рационально к процессу поиска нового офиса!

Просто ответьте на 3 вопроса, и наши специалисты сами предложат оптимальные варианты под ваш бюджет

.