8.2
Смотреть все фото
БЕЗ КОМИССИИ ID: 234010 Рейтинг8.1 КлассА
Бизнес-центр «Premium: West»

Аренда офиса 459 м²

Москва, Можайское шоссе, вл165Б

Славянский бульвар → 9.27 км
~ 37 мин
Арендная плата в месяц 573 700 ₽ 15 000 ₽/м² в год С учётом НДС

Презентация по предложению

Собираете информацию? Получите подробную презентацию в удобном формате!

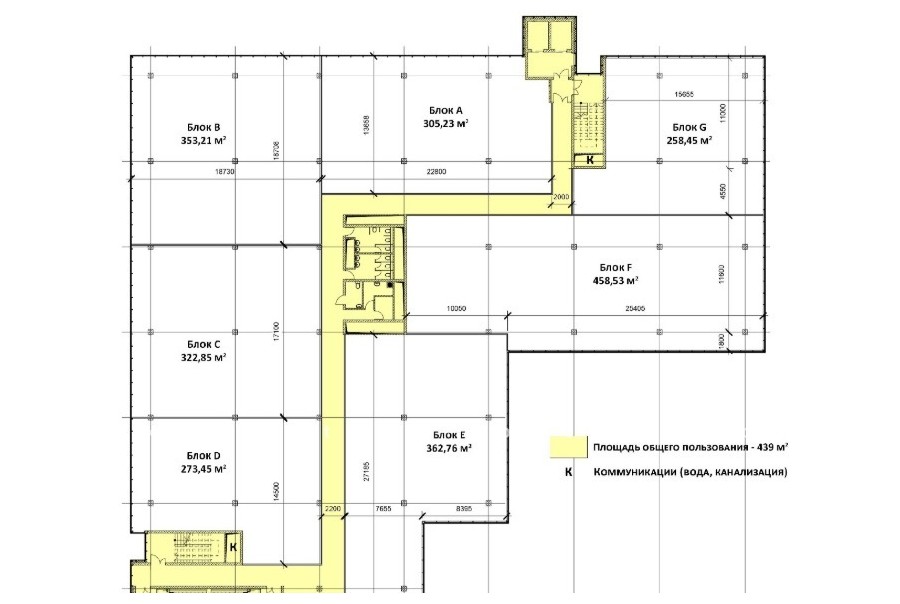
Площадь 459 м²
Состояние Готово к въезду
Планировка Смешанная
Этаж 4

Описание

Преимущества
  • Класс А
  • Кондиционирование и вентиляция
  • Свой паркинг
  • Развитая инфраструктура
Сдается в долгосрочную прямую аренду офис класса А общей площадью 459 квадратных метров в бизнес-центре "Premium: West".

Москва, Подмосковье, Можайское шоссе, вл165Б

Характеристики местоположения:
- Возможность аренды парковочных мест.
- Ближайшее метро: метро "Славянский бульвар", далее городской транспорт до здания

Офис класса А:
- Офис с отделкой, полностью готов к аренде
- Вентиляция: Приточно-вытяжная вентиляция
- Кондиционирование: центральное
- Презентабельный центральный ресепшн
- Круглосуточная охрана и видеонаблюдение
- Развитая инфраструктура внутри здания


Если предложение предварительно Вам подходит:

1. Получите презентацию в течение 10 минут в Whatsapp или на почту с фотографиями и планировкой, чтобы обсудить данный вариант с коллегами или переслать руководству. Для этого позвоните по телефону, указанному в объявлении.
2. Мы готовы ответить на любые Ваши вопросы о помещении и коммерческих условиях аренды.
3. Покажем помещение в удобное для Вас время с менеджером в здании, при необходимости подготовим виртуальный тур.

Вы можете позвонить нам в любое время. Мы ответим на Ваши вопросы по будням до 19:00, а поздно вечером или в выходные зафиксируем Ваш контакт и перезвоним в рабочее время.

Коммерческие условия

Арендная плата 573 750 ₽
Ставка арендной платы 15 000 ₽ м²/год
Эксплуатационные расходы Включены в ставку
Налоги С учётом НДС
Тип договора Прямая аренда
Срок договора от 11 месяцев
Размер платежей 1 месяц
Обеспечительный платеж 2 месяц
Статус Сдан

О бизнес-центре

Класс А
Этажность 8
Лифты Есть
Общая площадь 17 500 м²
Год постройки 2012
Паркинг Наземный
Вентиляция приточно-вытяжная
Кондиционирование центральное
Телекоммуникации Интернет/Телефония

Расположение

Подробная презентацию по предложению

Собираете информацию? Получите подробную презентацию в удобном формате, чтобы обсудить вариант с коллегами или переслать руководству!

Похожие предложения в других зданиях

БЕЗ КОМИССИИ ID: 307701 Рейтинг9.0 КлассB

Москва, Можайское шоссе, 165

Славянский бульвар → 7.22 км
~ 35 мин
Арендная плата в месяц 579 167 ₽ 13 900 ₽/м² в год С учётом НДС
Характеристики 500 м² 6 этаж Готово к въезду
Преимущества
  • Класс B
  • Кондиционирование и вентиляция
  • Свой паркинг

Предлагаем в долгосрочную аренду офисное помещение класса B общей площадью 500 кв.м в недавно отреконструированном бизнес-центре "Можайский"... подробнее

Презентация по предложению

Собираете информацию? Получите подробную презентацию в удобном формате!

БЕЗ КОМИССИИ ID: 283512 Рейтинг8.0 КлассB+

Москва, улица Горбунова, 2 с5

Молодежная → 2.81 км
~ 15 мин
Арендная плата в месяц 583 333 ₽ 14 000 ₽/м² в год С учётом НДС
Характеристики 500 м² 3 этаж Готово к въезду
Преимущества
  • Класс B+
  • Кондиционирование и вентиляция
  • Свой паркинг

Предлагаем в прямую аренду офисный блок класса B+ площадью 500 квадр. метров в бизнес-центре... подробнее

Презентация по предложению

Собираете информацию? Получите подробную презентацию в удобном формате!

БЕЗ КОМИССИИ ID: 1329026 Рейтинг8.0 КлассB+

Москва, Рябиновая улица, 26 с1

Давыдково → 5.09 км
~ 21 мин
Арендная плата в месяц 600 005 ₽ 17 100 ₽/м² в год С учётом НДС
Характеристики 420 м² 2 этаж Готово к въезду
Преимущества
  • Класс B+
  • Кондиционирование и вентиляция
  • Свой паркинг

Сдается в долгосрочную прямую аренду офисное помещение класса B+ общей площадью 420 квадратных метров в бизнес-центре "West Plaza"... подробнее

Презентация по предложению

Собираете информацию? Получите подробную презентацию в удобном формате!

БЕЗ КОМИССИИ ID: 267180 Рейтинг5.4 КлассB

Москва, Молодогвардейская улица, 57

Молодежная → 1.21 км
~ 16 мин
Арендная плата в месяц 541 667 ₽ 13 000 ₽/м² в год С учётом НДС
Характеристики 500 м² 1 - 4 этаж Готово к въезду
Преимущества
  • Класс B
  • Пешком от метро
  • Кондиционирование и вентиляция
  • Свой паркинг
  • Развитая инфраструктура

Предлагается в долгосрочную аренду офисный блок класса B площадью 500 кв.м в недавно отреконструированном бизнес-центре... подробнее

Презентация по предложению

Собираете информацию? Получите подробную презентацию в удобном формате!

БЕЗ КОМИССИИ ID: 261526 Рейтинг7.4 КлассB+

Москва, Верейская улица, 29 с154

Давыдково → 1.35 км
~ 14 мин
Арендная плата в месяц 602 958 ₽ 14 500 ₽/м² в год С учётом НДС
Характеристики 499 м² 4 этаж Готово к въезду
Преимущества
  • Класс B+
  • Пешком от метро
  • Кондиционирование и вентиляция
  • Свой паркинг
  • Развитая инфраструктура

Предлагается в долгосрочную прямую аренду офисное помещение класса B+ общей площадью 499 квадратных метров в бизнес-центре "Верейская Плаза I"... подробнее

Презентация по предложению

Собираете информацию? Получите подробную презентацию в удобном формате!

Посмотреть все похожие предложения
Отнеситесь рационально к процессу поиска нового офиса!

Просто ответьте на 3 вопроса, и наши специалисты сами предложат оптимальные варианты под ваш бюджет

.