8.2
Смотреть все фото
БЕЗ КОМИССИИ ID: 234007 Рейтинг8.1 КлассА
Бизнес-центр «Premium: West»

Аренда офиса 821 м²

Москва, Можайское шоссе, вл165Б

Славянский бульвар → 9.27 км
~ 37 мин
Арендная плата в месяц 1 026 200 ₽ 15 000 ₽/м² в год С учётом НДС

Презентация по предложению

Собираете информацию? Получите подробную презентацию в удобном формате!

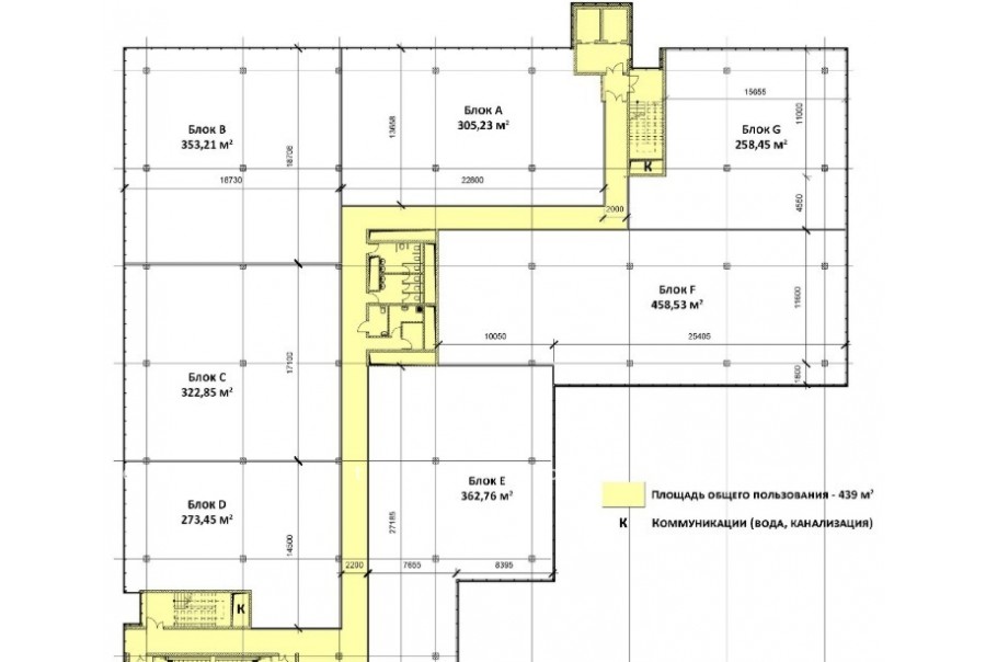
Площадь 821 м²
Состояние Готово к въезду
Планировка Открытая
Этаж 4

Описание

Преимущества
  • Класс А
  • Кондиционирование и вентиляция
  • Свой паркинг
  • Развитая инфраструктура
Предлагается в долгосрочную прямую аренду офисный блок класса А площадью 821 кв.м в бизнес-центре "Premium: West".

Москва, Подмосковье, Можайское шоссе, вл165Б

Характеристики местоположения:
- Возможность аренды парковочных мест.
- Ближайшее метро: метро "Славянский бульвар", далее городской транспорт до здания

Офис класса А:
- Офис с отделкой, полностью готов к аренде
- Вентиляция: Приточно-вытяжная вентиляция
- Кондиционирование: центральное
- Презентабельный центральный ресепшн
- Круглосуточная охрана и видеонаблюдение
- Развитая инфраструктура внутри здания

Возможность заключения контракта в соответствии с 44ФЗ по госзакупкам.

Если данное предложение подходит Вашему запросу:

1. Мы подготовили презентацию с информацией о помещении, фотографиями и планировкой, чтобы Вы могли поделиться ей с коллегами или руководством. Попросите об этом нашего менеджера по телефону в объявлении.
2. Задайте любые вопросы менеджеру по телефону, готовы обсуждать любые предложения по финансовым условиям договора аренды.
3. Оперативно организуем просмотр помещения с менеджерами на объекте или подготовим виртуальный тур.

Вы можете позвонить нам в любое время. Мы ответим на Ваши вопросы по будням до 19:00, а поздно вечером или в выходные зафиксируем Ваш контакт и перезвоним в рабочее время.

Коммерческие условия

Арендная плата 1 026 250 ₽
Ставка арендной платы 15 000 ₽ м²/год
Эксплуатационные расходы Включены в ставку
Налоги С учётом НДС
Тип договора Прямая аренда
Срок договора от 11 месяцев
Размер платежей 1 месяц
Обеспечительный платеж 2 месяц
Статус Сдан

О бизнес-центре

Класс А
Этажность 8
Лифты Есть
Общая площадь 17 500 м²
Год постройки 2012
Паркинг Наземный
Вентиляция приточно-вытяжная
Кондиционирование центральное
Телекоммуникации Интернет/Телефония

Расположение

Подробная презентацию по предложению

Собираете информацию? Получите подробную презентацию в удобном формате, чтобы обсудить вариант с коллегами или переслать руководству!

Похожие предложения в других зданиях

БЕЗ КОМИССИИ ID: 77186 Рейтинг5.0 КлассB

Москва, Дорогобужская улица, 14 к1

Кунцевская → 4.2 км
~ 16 мин
Арендная плата в месяц 1 000 000 ₽ 15 000 ₽/м² в год С учётом НДС
Характеристики 800 м² 3 этаж Готово к въезду
Преимущества
  • Класс B
  • Кондиционирование и вентиляция
  • Свой паркинг

Собственник сдает в долгосрочную аренду офис класса B площадью 800 кв.м в недавно отреконструированном бизнес-центре... подробнее

Презентация по предложению

Собираете информацию? Получите подробную презентацию в удобном формате!

БЕЗ КОМИССИИ ID: 1327458 Рейтинг8.0 КлассB+

Москва, Рябиновая улица, 26 с1

Давыдково → 5.09 км
~ 21 мин
Арендная плата в месяц 1 224 984 ₽ 17 000 ₽/м² в год С учётом НДС
Характеристики 865 м² 2 - 5 этаж Готово к въезду
Преимущества
  • Класс B+
  • Кондиционирование и вентиляция
  • Свой паркинг

Предлагаем в долгосрочную аренду офисное помещение класса B+ общей площадью 865 квадратных метров в бизнес-центре "West Plaza"... подробнее

Презентация по предложению

Собираете информацию? Получите подробную презентацию в удобном формате!

БЕЗ КОМИССИИ ID: 267182 Рейтинг5.4 КлассB

Москва, Молодогвардейская улица, 57

Молодежная → 1.21 км
~ 16 мин
Арендная плата в месяц 758 333 ₽ 13 000 ₽/м² в год С учётом НДС
Характеристики 700 м² 1 - 4 этаж Готово к въезду
Преимущества
  • Класс B
  • Пешком от метро
  • Кондиционирование и вентиляция
  • Свой паркинг
  • Развитая инфраструктура

Предлагаем в долгосрочную аренду помещение под офис класса B общей площадью 700 квадратных метров в недавно отреконструированном бизнес-центре... подробнее

Презентация по предложению

Собираете информацию? Получите подробную презентацию в удобном формате!

БЕЗ КОМИССИИ ID: 80339 Рейтинг6.1 КлассB

Москва, Гродненская улица, 5а

Давыдково → 1.91 км
~ 19 мин
Арендная плата в месяц 854 000 ₽ 14 000 ₽/м² в год С учётом НДС
Характеристики 732 м² 1 - 2 этаж Готово к въезду
Преимущества
  • Класс B
  • Пешком от метро
  • Кондиционирование и вентиляция
  • Свой паркинг

Сдаем в долгосрочную прямую аренду помещение под офис класса B общей площадью 732 кв.м в бизнес-центре... подробнее

Презентация по предложению

Собираете информацию? Получите подробную презентацию в удобном формате!

БЕЗ КОМИССИИ ID: 181880 Рейтинг7.0 КлассB+

Москва, Осенняя улица, 11

Крылатское → 632 м
~ 6 мин
Арендная плата в месяц 1 260 875 ₽ 16 500 ₽/м² в год С учётом НДС
Характеристики 917 м² 2 этаж Готово к въезду
Преимущества
  • Класс B+
  • Пешком от метро
  • Кондиционирование и вентиляция
  • Свой паркинг
  • Развитая инфраструктура

Сдаем в долгосрочную аренду офисный блок класса B+ площадью 917 кв. метров в бизнес-центре... подробнее

Презентация по предложению

Собираете информацию? Получите подробную презентацию в удобном формате!

Посмотреть все похожие предложения
Отнеситесь рационально к процессу поиска нового офиса!

Просто ответьте на 3 вопроса, и наши специалисты сами предложат оптимальные варианты под ваш бюджет

.