8.2
Смотреть все фото
БЕЗ КОМИССИИ ID: 448334 Рейтинг7.0 КлассB
Бизнес-центр «Пресненский 14»

Аренда офиса 4621 м²

Москва, улица Пресненский Вал, 14

Улица 1905 года → 551 м
~ 6 мин
Арендная плата в месяц 10 397 200 ₽ 27 000 ₽/м² в год С учётом НДС

Презентация по предложению

Собираете информацию? Получите подробную презентацию в удобном формате!

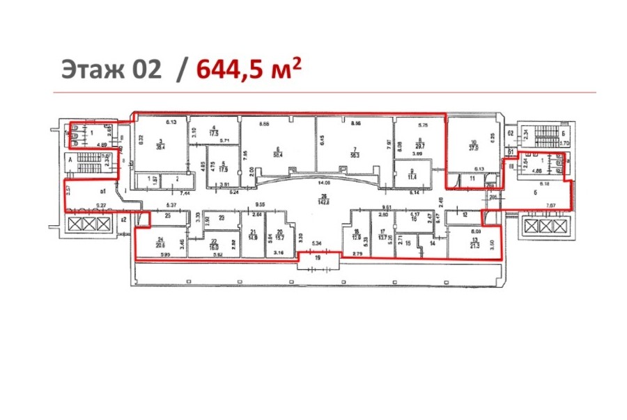
Площадь 4 621 м²
Состояние Готово к въезду
Планировка Смешанная
Этаж 1 - 11

Описание

Преимущества
  • Класс B
  • Пешком от метро
  • Кондиционирование и вентиляция
  • Развитая инфраструктура
Собственник сдает в долгосрочную аренду офис класса B общей площадью 4621 кв.м в бизнес-центре.

Москва, ЦАО, улица Пресненский Вал, 14

Удобное расположение здания для всех видов транспорта:
- Автомобиль: близость транспортных магистралей, таких как Звенигородское шоссе и других.
- Возможность аренды парковочных мест.
- Ближайшее метро: от метро "Улица 1905 года" всего 7 мин пешком

Офис класса B:
- Помещение с отделкой, готово к въезду
- Вентиляция: Приточно-вытяжная вентиляция
- Кондиционирование: сплит-системы


Если предложение предварительно Вам подходит:

1. Мы отправим Вам подробную презентацию с планировкой и фотографиями в течение 10 минут после звонка, чтобы Вы могли поделиться информацией с руководством или с коллегами.
2. Ответим на любые Ваши вопросы, готовы обсуждать любые предложения по коммерческим условиям аренды помещения.
3. Оперативно организуем просмотр помещения, договоримся на любое удобное время, подготовим виртуальный тур.

Звоните нам в любое время. По будням мы сможем ответить на Ваши вопросы до 19:00. В выходные или вечернее время мы передадим Ваш контакт нашему менеджеру по аренде.

Коммерческие условия

Арендная плата 10 397 250 ₽
Ставка арендной платы 27 000 ₽ м²/год
Эксплуатационные расходы Включены в ставку
Налоги С учётом НДС
Тип договора Прямая аренда
Срок договора от 11 месяцев
Размер платежей 1 месяц
Обеспечительный платеж 2 месяц
Статус Сдан

О бизнес-центре

Класс B
Этажность 11
Лифты Нет
Общая площадь 11 120 м²
Год постройки 1978
Паркинг Наземный и подземный
Вентиляция приточно-вытяжная
Кондиционирование сплит-системы
Телекоммуникации Интернет/Телефония

Расположение

Подробная презентацию по предложению

Собираете информацию? Получите подробную презентацию в удобном формате, чтобы обсудить вариант с коллегами или переслать руководству!

Похожие предложения в других зданиях

БЕЗ КОМИССИИ ID: 1294035 Рейтинг7.9 КлассB

Москва, Большая Грузинская улица, 12 с2

Баррикадная → 551 м
~ 6 мин
Арендная плата в месяц 12 096 263 ₽ 30 400 ₽/м² в год С учётом НДС
Характеристики 4 767 м² -1 - 5 этаж Готово к въезду
Преимущества
  • Класс B
  • Пешком от метро
  • Кондиционирование и вентиляция
  • Свой паркинг
  • Несколько провайдеров связи

Собственник сдает в прямую аренду здание под офис класса B площадью 4767 квадратных метров. .. подробнее

Презентация по предложению

Собираете информацию? Получите подробную презентацию в удобном формате!

БЕЗ КОМИССИИ ID: 270487 Рейтинг7.9 КлассB

Москва, Большая Грузинская улица, 12 с2

Баррикадная → 551 м
~ 6 мин
Арендная плата в месяц 10 658 833 ₽ 31 000 ₽/м² в год С учётом НДС
Характеристики 4 126 м² 1 - 5 этаж Готово к въезду
Преимущества
  • Класс B
  • Пешком от метро
  • Кондиционирование и вентиляция
  • Свой паркинг
  • Несколько провайдеров связи

Предлагается в долгосрочную аренду офис класса B общей площадью 4126 кв. метров в историческом недавно отреконструированном бизнес-центре "Николаевский"... подробнее

Презентация по предложению

Собираете информацию? Получите подробную презентацию в удобном формате!

БЕЗ КОМИССИИ ID: 292069 Рейтинг7.6 КлассB

Москва, 2-я Звенигородская улица, 13 с40

Улица 1905 года → 862 м
~ 9 мин
Арендная плата в месяц 7 929 292 ₽ 23 500 ₽/м² в год С учётом НДС
Характеристики 4 049 м² -2 - 5 этаж Готово к въезду
Преимущества
  • Класс B
  • Пешком от метро
  • Кондиционирование и вентиляция

Сдаем в прямую аренду офисное помещение класса B площадью 4049 кв.м в бизнес-центре... подробнее

Презентация по предложению

Собираете информацию? Получите подробную презентацию в удобном формате!

БЕЗ КОМИССИИ ID: 123822 Рейтинг8.3 КлассB

Москва, Шмитовский проезд, 3 с3

Улица 1905 года → 960 м
~ 10 мин
Арендная плата в месяц 11 565 000 ₽ 30 000 ₽/м² в год С учётом НДС
Характеристики 4 626 м² 0 - 4 этаж Под отделку
Преимущества
  • Класс B
  • Пешком от метро
  • Кондиционирование и вентиляция
  • Свой паркинг
  • Развитая инфраструктура

Предлагается в долгосрочную прямую аренду офисное помещение класса B общей площадью 4626 квадр. метров в бизнес-центре... подробнее

Презентация по предложению

Собираете информацию? Получите подробную презентацию в удобном формате!

БЕЗ КОМИССИИ ID: 200789 Рейтинг9.4 КлассА

Москва, Беговая улица, 3 с1

Беговая → 606 м
~ 6 мин
Арендная плата в месяц 13 195 000 ₽ 30 000 ₽/м² в год С учётом НДС
Характеристики 5 278 м² 21 - 22 этаж Готово к въезду
Преимущества
  • Класс А
  • Пешком от метро
  • Кондиционирование и вентиляция
  • Свой паркинг
  • Несколько провайдеров связи
  • Развитая инфраструктура

Предлагаем в прямую аренду помещение под офис класса А площадью 5278 кв. метров в бизнес-центре "Нордстар Тауэр"... подробнее

Презентация по предложению

Собираете информацию? Получите подробную презентацию в удобном формате!

Посмотреть все похожие предложения
Отнеситесь рационально к процессу поиска нового офиса!

Просто ответьте на 3 вопроса, и наши специалисты сами предложат оптимальные варианты под ваш бюджет

.