8.2
Смотреть все фото
БЕЗ КОМИССИИ ID: 180262 Рейтинг7.0 КлассB

Москва, улица Пресненский Вал, 14

Улица 1905 года → 551 м
~ 6 мин
Арендная плата в месяц 1 592 700 ₽ 23 000 ₽/м² в год С учётом НДС

Презентация по предложению

Собираете информацию? Получите подробную презентацию в удобном формате!

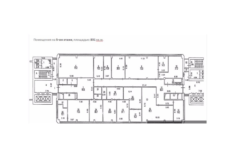
Площадь 831 м²
Состояние Готово к въезду
Планировка Кабинетная
Этаж 5

Описание

Преимущества
  • Класс B
  • Пешком от метро
  • Кондиционирование и вентиляция
  • Развитая инфраструктура
Предлагаем в долгосрочную прямую аренду помещение под офис класса B площадью 831 квадратных метров в бизнес-центре.

Москва, ЦАО, улица Пресненский Вал, 14

Удобное расположение здания для всех видов транспорта:
- Автомобиль: близость транспортных магистралей, таких как Звенигородское шоссе и других.
- Возможность аренды парковочных мест.
- Ближайшее метро: от метро "Улица 1905 года" всего 6 мин пешком

Офис класса B:
- Помещение готово к въезду
- Вентиляция: Приточно-вытяжная вентиляция
- Кондиционирование: сплит-системы


Если данное предложение подходит Вашему запросу:

1. Мы подготовили презентацию с информацией о помещении, фотографиями и планировкой, чтобы Вы могли поделиться ей с коллегами или руководством. Попросите об этом нашего менеджера по телефону в объявлении.
2. Задайте любые вопросы менеджеру по телефону, готовы обсуждать любые предложения по финансовым условиям договора аренды.
3. Проводим показы ежедневно, договоримся на удобное для Вас время. Можем организовать виртуальный тур по офисному блоку.

Вы можете позвонить нам в любое время. Мы ответим на Ваши вопросы по будням до 19:00, а поздно вечером или в выходные зафиксируем Ваш контакт и перезвоним в рабочее время.

Коммерческие условия

Арендная плата 1 592 750 ₽
Ставка арендной платы 23 000 ₽ м²/год
Эксплуатационные расходы Включены в ставку
Налоги С учётом НДС
Тип договора Прямая аренда
Срок договора от 11 месяцев
Размер платежей 1 месяц
Обеспечительный платеж 1 месяц
Статус Сдан

О бизнес-центре

Класс B
Этажность 11
Лифты Нет
Общая площадь 11 120 м²
Год постройки 1978
Паркинг Наземный и подземный
Вентиляция приточно-вытяжная
Кондиционирование сплит-системы
Телекоммуникации Интернет/Телефония

Расположение

Подробная презентацию по предложению

Собираете информацию? Получите подробную презентацию в удобном формате, чтобы обсудить вариант с коллегами или переслать руководству!

Похожие предложения в других зданиях

ВОЗМОЖНО ОСВОБОЖДЕНИЕ ID: 72317 Рейтинг6.4 КлассB

Москва, Столярный переулок, 3 к6

Краснопресненская → 763 м
~ 8 мин
Арендная плата в месяц 1 675 000 ₽ 25 000 ₽/м² в год С учётом НДС
Характеристики 804 м² 3 этаж Готово к въезду
Преимущества
  • Класс B
  • Пешком от метро
  • Кондиционирование и вентиляция

Предлагаем в прямую аренду офисное помещение класса B площадью 804 квадр. метров в бизнес-центре "Апельсин"... подробнее

Презентация по предложению

Собираете информацию? Получите подробную презентацию в удобном формате!

БЕЗ КОМИССИИ ID: 68695 Рейтинг8.5 КлассB

Москва, Большой Трёхгорный переулок, 11 с2

Улица 1905 года → 542 м
~ 5 мин
Арендная плата в месяц 1 520 000 ₽ 22 800 ₽/м² в год С учётом НДС
Характеристики 800 м² 1 - 5 этаж Под отделку
Преимущества
  • Класс B
  • Пешком от метро
  • Кондиционирование и вентиляция
  • Свой паркинг

Собственник сдает в долгосрочную прямую аренду офисный блок класса B площадью 800 кв.м в недавно отреконструированном бизнес-центре... подробнее

Презентация по предложению

Собираете информацию? Получите подробную презентацию в удобном формате!

БЕЗ КОМИССИИ ID: 11742 Рейтинг7.5 КлассB+

Москва, улица Трёхгорный Вал, 14 с5

Улица 1905 года → 673 м
~ 7 мин
Арендная плата в месяц 1 520 833 ₽ 25 000 ₽/м² в год С учётом НДС
Характеристики 730 м² 1 - 3 этаж Под отделку
Преимущества
  • Класс B+
  • Пешком от метро
  • Кондиционирование и вентиляция
  • Свой паркинг

Предлагаем в прямую аренду офисный блок класса B+ общей площадью 730 квадратных метров в бизнес-центре... подробнее

Презентация по предложению

Собираете информацию? Получите подробную презентацию в удобном формате!

БЕЗ КОМИССИИ ID: 15021 Рейтинг6.4 КлассB

Москва, улица Заморенова, 11

Краснопресненская → 497 м
~ 5 мин
Арендная плата в месяц 1 523 333 ₽ 20 000 ₽/м² в год С учётом НДС
Характеристики 914 м² 2 этаж Готово к въезду
Преимущества
  • Класс B
  • Пешком от метро
  • Кондиционирование и вентиляция
  • Свой паркинг

Сдается в долгосрочную прямую аренду офисный блок класса B площадью 914 квадратных метров в бизнес-центре... подробнее

Презентация по предложению

Собираете информацию? Получите подробную презентацию в удобном формате!

БЕЗ КОМИССИИ ID: 122340 Рейтинг8.4 КлассА

Москва, Зоологическая улица, 1 с1

Краснопресненская → 649 м
~ 6 мин
Арендная плата в месяц 1 854 167 ₽ 25 000 ₽/м² в год С учётом НДС
Характеристики 890 м² 2 - 4 этаж Под отделку
Преимущества
  • Класс А
  • Пешком от метро
  • Кондиционирование и вентиляция
  • Свой паркинг

Собственник сдает в долгосрочную прямую аренду офисный блок класса А площадью 890 кв.м в недавно отреконструированном бизнес-центре... подробнее

Презентация по предложению

Собираете информацию? Получите подробную презентацию в удобном формате!

Посмотреть все похожие предложения
Отнеситесь рационально к процессу поиска нового офиса!

Просто ответьте на 3 вопроса, и наши специалисты сами предложат оптимальные варианты под ваш бюджет

.