8.2
Смотреть все фото
БЕЗ КОМИССИИ ID: 1328466 Рейтинг6.0 КлассB
Бизнес-центр «Пресса»

Аренда офиса 1420 м²

Москва, улица Правды, 24 с4

Савёловская → 768 м
~ 8 мин
Арендная плата в месяц 5 300 000 ₽ 44 800 ₽/м² в год С учётом НДС

Презентация по предложению

Собираете информацию? Получите подробную презентацию в удобном формате!

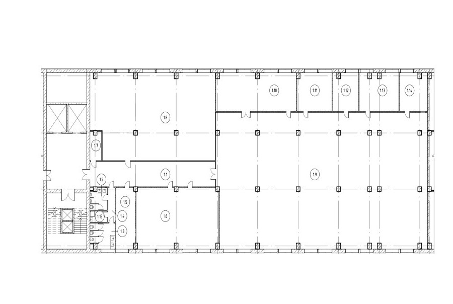
Площадь 1 420 м²
Состояние Готово к въезду
Планировка Смешанная
Этаж 8

Описание

Преимущества
  • Класс B
  • Пешком от метро
  • Кондиционирование и вентиляция
  • Свой паркинг
  • Несколько провайдеров связи
  • Развитая инфраструктура
Предлагаем в прямую аренду офисный блок класса B общей площадью 1420 кв. метров в историческом бизнес-центре "Пресса".

Москва, САО, улица Правды, 24 с4

Удобная локация здания:
- Автомобиль: близость транспортных магистралей, таких как Третье Транспортное Кольцо, Бутырская улица и других.
- Возможность аренды парковочных мест.
- Ближайшее метро: от метро "Савёловская" всего 9 мин пешком

Офис класса B:
- Помещение с отделкой, готово к въезду


Что еще можно узнать о предложении:

1. Мы отправим Вам подробную презентацию с планировкой и фотографиями в течение 10 минут после звонка, чтобы Вы могли поделиться информацией с руководством или с коллегами.
2. Задайте любые вопросы менеджеру по телефону, готовы обсуждать любые предложения по финансовым условиям договора аренды.
3. Оперативно организуем просмотр помещения, договоримся на любое удобное время, подготовим виртуальный тур.

Звоните нам в любое время. По будням мы сможем ответить на Ваши вопросы до 19:00. В выходные или вечернее время мы передадим Ваш контакт нашему менеджеру по аренде.

Коммерческие условия

Арендная плата 5 300 030 ₽
Ставка арендной платы 44 800 ₽ м²/год
Эксплуатационные расходы Включены в ставку
Налоги С учётом НДС
Тип договора Прямая аренда
Срок договора от 11 месяцев
Размер платежей 1 месяц
Обеспечительный платеж 2 месяц
Статус Сдан

О бизнес-центре

Класс B
Этажность 10
Лифты Есть
Общая площадь 19 500 м²
Год постройки 1934
Паркинг Наземный
Вентиляция естественная
Кондиционирование возможность установки
Телекоммуникации Интернет/Телефония

Расположение

Подробная презентацию по предложению

Собираете информацию? Получите подробную презентацию в удобном формате, чтобы обсудить вариант с коллегами или переслать руководству!

Похожие предложения в других зданиях

БЕЗ КОМИССИИ ID: 1379299 Рейтинг9.0 КлассА

Москва, улица Правды, 26

Савёловская → 629 м
~ 6 мин
Арендная плата в месяц 7 357 058 ₽ 71 400 ₽/м² в год С учётом НДС
Характеристики 1 237 м² 9 этаж Готово к въезду
Преимущества
  • Класс А
  • Пешком от метро
  • Кондиционирование и вентиляция
  • Свой паркинг
  • Несколько провайдеров связи
  • Развитая инфраструктура

Предлагаем в долгосрочную прямую аренду офисный блок класса А общей площадью 1237 квадратных метров в недавно отреконструированном бизнес-центре "Северное сияние"... подробнее

Презентация по предложению

Собираете информацию? Получите подробную презентацию в удобном формате!

БЕЗ КОМИССИИ ID: 1379297 Рейтинг9.0 КлассА

Москва, улица Правды, 26

Савёловская → 629 м
~ 6 мин
Арендная плата в месяц 6 345 983 ₽ 59 200 ₽/м² в год С учётом НДС
Характеристики 1 287 м² 11 этаж Готово к въезду
Преимущества
  • Класс А
  • Пешком от метро
  • Кондиционирование и вентиляция
  • Свой паркинг
  • Несколько провайдеров связи
  • Развитая инфраструктура

Предлагается в прямую аренду офисное помещение класса А площадью 1287 квадр. метров в недавно отреконструированном бизнес-центре "Северное сияние"... подробнее

Презентация по предложению

Собираете информацию? Получите подробную презентацию в удобном формате!

БЕЗ КОМИССИИ ID: 1327412 Рейтинг5.8 КлассB

Москва, Бумажный проезд, 14 с2

Савёловская → 605 м
~ 6 мин
Арендная плата в месяц 5 300 032 ₽ 44 800 ₽/м² в год С учётом НДС
Характеристики 1 420 м² 8 этаж Готово к въезду
Преимущества
  • Класс B
  • Пешком от метро
  • Кондиционирование и вентиляция
  • Свой паркинг
  • Несколько провайдеров связи
  • Развитая инфраструктура

Предлагается в долгосрочную аренду офисный блок класса B площадью 1420 кв.м в бизнес-центре... подробнее

Презентация по предложению

Собираете информацию? Получите подробную презентацию в удобном формате!

БЕЗ КОМИССИИ ID: 1380833 Рейтинг8.4 КлассB+

Москва, Вятская улица, 27 с4

Савеловская → 498 м
~ 5 мин
Арендная плата в месяц 6 170 094 ₽ 49 000 ₽/м² в год С учётом НДС
Характеристики 1 512 м² 3 этаж Готово к въезду
Преимущества
  • Класс B+
  • Пешком от метро
  • Кондиционирование и вентиляция
  • Свой паркинг

Сдается в долгосрочную аренду офисное помещение класса B+ площадью 1512 кв.м в бизнес-центре "Фактория"... подробнее

Презентация по предложению

Собираете информацию? Получите подробную презентацию в удобном формате!

БЕЗ КОМИССИИ ID: 1380832 Рейтинг8.4 КлассB+

Москва, Вятская улица, 27 с4

Савеловская → 498 м
~ 5 мин
Арендная плата в месяц 5 965 036 ₽ 48 600 ₽/м² в год С учётом НДС
Характеристики 1 473 м² 3 этаж Готово к въезду
Преимущества
  • Класс B+
  • Пешком от метро
  • Кондиционирование и вентиляция
  • Свой паркинг

Предлагается в долгосрочную аренду офисное помещение класса B+ площадью 1473 квадратных метров в бизнес-центре "Фактория"... подробнее

Презентация по предложению

Собираете информацию? Получите подробную презентацию в удобном формате!

Посмотреть все похожие предложения
Отнеситесь рационально к процессу поиска нового офиса!

Просто ответьте на 3 вопроса, и наши специалисты сами предложат оптимальные варианты под ваш бюджет

.