8.2
Смотреть все фото
БЕЗ КОМИССИИ ID: 253488 Рейтинг7.8 КлассB
Бизнес-центр «Раевского 4»

Аренда офиса 4313 м²

Москва, улица Раевского, 4

Студенческая → 1.01 км
~ 10 мин
Арендная плата в месяц 10 602 800 ₽ 29 500 ₽/м² в год С учётом НДС

Презентация по предложению

Собираете информацию? Получите подробную презентацию в удобном формате!

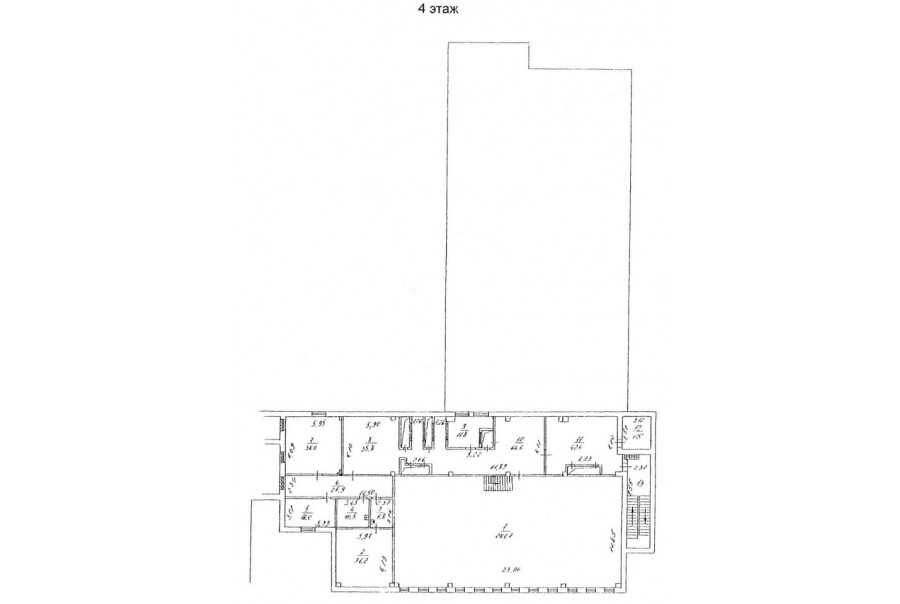
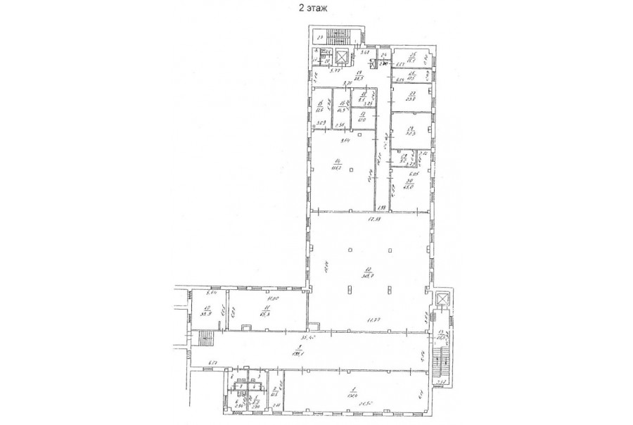
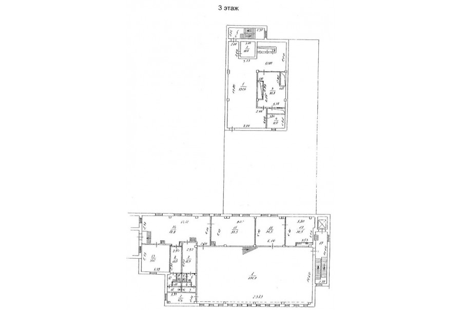
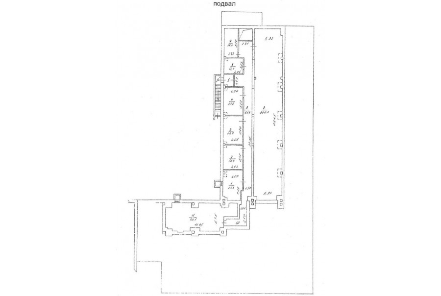
Площадь 4 313 м²
Состояние Отделка под арендатора
Планировка Смешанная
Этаж -1 - 4

Описание

Преимущества
  • Класс B
  • Пешком от метро
  • Кондиционирование и вентиляция
  • Свой паркинг
  • Несколько провайдеров связи
Предлагается в прямую аренду помещение под офис класса B площадью 4313 кв. метров в историческом недавно отреконструированном бизнес-центре.

Москва, ЗАО, улица Раевского, 4

Удобная локация здания:
- Автомобиль: близость транспортных магистралей, таких как Кутузовский проспект и других.
- Возможность аренды парковочных мест.
- Ближайшее метро: от метро "Студенческая" всего 11 мин пешком

Офис класса B:
- Возможность ремонта по предпочтениям арендатора
- Вентиляция: Приточно-вытяжная вентиляция
- Кондиционирование: центральное

Возможность заключения контракта в соответствии с 44ФЗ по госзакупкам.

Если данное предложение подходит Вашему запросу:

1. Получите презентацию в течение 10 минут в Whatsapp или на почту с фотографиями и планировкой, чтобы обсудить данный вариант с коллегами или переслать руководству. Для этого позвоните по телефону, указанному в объявлении.
2. Мы готовы ответить на любые Ваши вопросы о помещении и коммерческих условиях аренды.
3. Покажем помещение в удобное для Вас время с менеджером в здании, при необходимости подготовим виртуальный тур.

Звоните нам в любое время. По будням мы сможем ответить на Ваши вопросы до 19:00. В выходные или вечернее время мы передадим Ваш контакт нашему менеджеру по аренде.

Коммерческие условия

Арендная плата 10 602 790 ₽
Ставка арендной платы 29 500 ₽ м²/год
Эксплуатационные расходы Включены в ставку
Налоги С учётом НДС
Тип договора Прямая аренда
Срок договора от 11 месяцев
Размер платежей 1 месяц
Обеспечительный платеж 1 месяц
Статус Сдан

О бизнес-центре

Класс B
Этажность 5
Лифты Есть
Общая площадь 3 830 м²
Год постройки 1935
Паркинг Наземный
Вентиляция приточно-вытяжная
Кондиционирование центральное
Телекоммуникации Интернет/Телефония

Расположение

Подробная презентацию по предложению

Собираете информацию? Получите подробную презентацию в удобном формате, чтобы обсудить вариант с коллегами или переслать руководству!

Похожие предложения в других зданиях

БЕЗ КОМИССИИ ID: 960197 Рейтинг9.1 КлассА

Москва, улица Можайский Вал, 8

Киевская → 815 м
~ 8 мин
Арендная плата в месяц 13 428 250 ₽ 33 000 ₽/м² в год С учётом НДС
Характеристики 4 883 м² 2 - 8 этаж Готово к въезду
Преимущества
  • Класс А
  • Пешком от метро
  • Кондиционирование и вентиляция
  • Свой паркинг

Предлагаем в долгосрочную прямую аренду офисное помещение класса А площадью 4883 кв. метров в новом бизнес-центре "Атлантик"... подробнее

Презентация по предложению

Собираете информацию? Получите подробную презентацию в удобном формате!

БЕЗ КОМИССИИ ID: 165680 Рейтинг9.1 КлассА

Москва, улица Можайский Вал, 8

Киевская → 815 м
~ 8 мин
Арендная плата в месяц 10 077 333 ₽ 32 000 ₽/м² в год С учётом НДС
Характеристики 3 779 м² 4 - 9 этаж Готово к въезду
Преимущества
  • Класс А
  • Пешком от метро
  • Кондиционирование и вентиляция
  • Свой паркинг

Сдается в прямую аренду офис класса А общей площадью 3779 кв.м в новом бизнес-центре "Атлантик"... подробнее

Презентация по предложению

Собираете информацию? Получите подробную презентацию в удобном формате!

БЕЗ КОМИССИИ ID: 173411 Рейтинг8.0 КлассА

Москва, Краснопресненская набережная, 12

Улица 1905 года → 1.51 км
~ 15 мин
Арендная плата в месяц 10 517 333 ₽ 29 000 ₽/м² в год С учётом НДС
Характеристики 4 352 м² 21 - 25 этаж Готово к въезду
Преимущества
  • Класс А
  • Пешком от метро
  • Кондиционирование и вентиляция
  • Свой паркинг
  • Развитая инфраструктура

Собственник сдает в прямую аренду офис класса А общей площадью 4352 кв. метров в бизнес-центре "Центр Международной Торговли"... подробнее

Презентация по предложению

Собираете информацию? Получите подробную презентацию в удобном формате!

БЕЗ КОМИССИИ ID: 123822 Рейтинг8.3 КлассB

Москва, Шмитовский проезд, 3 с3

Улица 1905 года → 960 м
~ 10 мин
Арендная плата в месяц 11 565 000 ₽ 30 000 ₽/м² в год С учётом НДС
Характеристики 4 626 м² 0 - 4 этаж Под отделку
Преимущества
  • Класс B
  • Пешком от метро
  • Кондиционирование и вентиляция
  • Свой паркинг
  • Развитая инфраструктура

Предлагается в долгосрочную прямую аренду офисное помещение класса B общей площадью 4626 квадр. метров в бизнес-центре... подробнее

Презентация по предложению

Собираете информацию? Получите подробную презентацию в удобном формате!

БЕЗ КОМИССИИ ID: 1313663 Рейтинг5.9 КлассB

Москва, Кутузовский проспект, 36А

Кутузовская → 606 м
~ 6 мин
Арендная плата в месяц 10 706 500 ₽ 29 400 ₽/м² в год С учётом НДС
Характеристики 4 370 м² 3 - 7 этаж Готово к въезду
Преимущества
  • Класс B
  • Пешком от метро
  • Кондиционирование и вентиляция
  • Свой паркинг

Предлагаем в прямую аренду офисный блок класса B общей площадью 4620 кв. метров в бизнес-центре... подробнее

Презентация по предложению

Собираете информацию? Получите подробную презентацию в удобном формате!

Посмотреть все похожие предложения
Отнеситесь рационально к процессу поиска нового офиса!

Просто ответьте на 3 вопроса, и наши специалисты сами предложат оптимальные варианты под ваш бюджет

.