8.2
Смотреть все фото
БЕЗ КОМИССИИ ID: 1377964 Рейтинг9.0 КлассА

Москва, 2-я Брестская улица, 6

Маяковская → 534 м
~ 5 мин
Арендная плата в месяц 420 000 ₽ 98 800 ₽/м² в год Упрощённая система налогообложения

Презентация по предложению

Собираете информацию? Получите подробную презентацию в удобном формате!

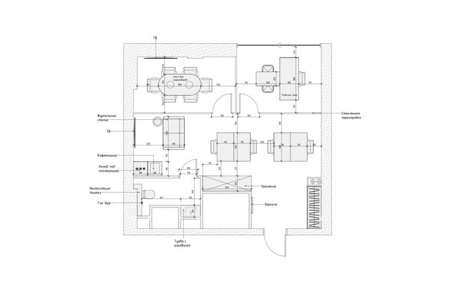
Площадь 51 м²
Состояние Готово к въезду
Планировка Открытая
Этаж 7

Описание

Преимущества
  • Класс А
  • Пешком от метро
  • Кондиционирование и вентиляция
  • Свой паркинг
Сдается в долгосрочную аренду офисный блок класса А общей площадью 51 квадр. метров в недавно отреконструированном бизнес-центре "Резиденция Тверская".

Москва, ЦАО, 2-я Брестская улица, 6

Удобное расположение здания для всех видов транспорта:
- Автомобиль: близость транспортных магистралей, таких как Ленинградский проспект, Садовое Кольцо и других.
- Возможность аренды парковочных мест.
- Ближайшее метро: от метро "Маяковская" всего 5 мин пешком

Офис класса А:
- Помещение с отделкой, готово к въезду
- Вентиляция: Приточно-вытяжная вентиляция
- Кондиционирование: центральное
- Презентабельный центральный ресепшн
- Круглосуточная охрана и видеонаблюдение


Если данное предложение подходит Вашему запросу:

1. Получите презентацию в течение 10 минут в Whatsapp или на почту с фотографиями и планировкой, чтобы обсудить данный вариант с коллегами или переслать руководству. Для этого позвоните по телефону, указанному в объявлении.
2. Мы готовы ответить на любые Ваши вопросы о помещении и коммерческих условиях аренды.
3. Оперативно организуем просмотр помещения с менеджерами на объекте или подготовим виртуальный тур.

Звоните нам в любое время. По будням мы сможем ответить на Ваши вопросы до 19:00. В выходные или вечернее время мы передадим Ваш контакт нашему менеджеру по аренде.

Коммерческие условия

Арендная плата 420 000 ₽
Ставка арендной платы 98 800 ₽ м²/год
Эксплуатационные расходы Включены в ставку
Налоги Упрощённая система налогообложения
Тип договора Прямая аренда
Срок договора Долгосрочный
Размер платежей 1 месяц
Обеспечительный платеж 2 месяц
Статус Свободен

О бизнес-центре

Класс А
Этажность 12
Лифты Есть
Общая площадь 32 939 м²
Паркинг Подземный
Вентиляция приточно-вытяжная
Кондиционирование центральное
Телекоммуникации Интернет/Телефония

Расположение

Подробная презентацию по предложению

Собираете информацию? Получите подробную презентацию в удобном формате, чтобы обсудить вариант с коллегами или переслать руководству!

Похожие предложения в других зданиях

БЕЗ КОМИССИИ ID: 1381011 Рейтинг8.9 КлассА

Москва, Большая Грузинская улица, 30А с1

Краснопресненская → 882 м
~ 9 мин
Арендная плата в месяц 366 000 ₽ 109 800 ₽/м² в год С учётом НДС
Характеристики 40 м² 3 этаж Готово к въезду
Преимущества
  • Класс А
  • Пешком от метро
  • Кондиционирование и вентиляция
  • Свой паркинг

Предлагается в долгосрочную аренду помещение под офис класса А общей площадью 120 квадратных метров в недавно отреконструированном бизнес-центре "Грузинка 30"... подробнее

Презентация по предложению

Собираете информацию? Получите подробную презентацию в удобном формате!

БЕЗ КОМИССИИ ID: 1329215 Рейтинг8.9 КлассА

Москва, Большая Грузинская улица, 30А с1

Краснопресненская → 882 м
~ 9 мин
Арендная плата в месяц 366 000 ₽ 109 800 ₽/м² в год С учётом НДС
Характеристики 40 м² 3 этаж Готово к въезду
Преимущества
  • Класс А
  • Пешком от метро
  • Кондиционирование и вентиляция
  • Свой паркинг

Сдается в долгосрочную аренду офис класса А общей площадью 40 кв. метров в недавно отреконструированном бизнес-центре "Грузинка 30"... подробнее

Презентация по предложению

Собираете информацию? Получите подробную презентацию в удобном формате!

БЕЗ КОМИССИИ ID: 1381612 Рейтинг8.9 КлассА

Москва, Большая Грузинская улица, 30А с1

Краснопресненская → 882 м
~ 9 мин
Арендная плата в месяц 295 000 ₽ 88 500 ₽/м² в год С учётом НДС
Характеристики 40 м² 3 этаж Готово к въезду
Преимущества
  • Класс А
  • Пешком от метро
  • Кондиционирование и вентиляция
  • Свой паркинг

Предлагается в долгосрочную прямую аренду помещение под офис класса А площадью 40 квадратных метров в недавно отреконструированном бизнес-центре "Грузинка 30"... подробнее

Презентация по предложению

Собираете информацию? Получите подробную презентацию в удобном формате!

БЕЗ КОМИССИИ ID: 1322784 Рейтинг4.5 КлассB

Москва, Большая Никитская улица, 31

Арбатская → 843 м
~ 8 мин
Арендная плата в месяц 360 000 ₽ 108 000 ₽/м² в год Упрощённая система налогообложения
Характеристики 40 м² 5 этаж Готово к въезду
Преимущества
  • Класс B
  • Пешком от метро
  • Кондиционирование и вентиляция
  • Свой паркинг

Сдается в долгосрочную аренду комфортабельный сервисный офис на 6 рабочих мест в историческом недавно отреконструированном жилом комплексе... подробнее

Презентация по предложению

Собираете информацию? Получите подробную презентацию в удобном формате!

БЕЗ КОМИССИИ ID: 1377376 Рейтинг4.5 КлассB

Москва, Большая Никитская улица, 31

Арбатская → 843 м
~ 8 мин
Арендная плата в месяц 360 003 ₽ 100 500 ₽/м² в год Упрощённая система налогообложения
Характеристики 43 м² 6 этаж Готово к въезду
Преимущества
  • Класс B
  • Пешком от метро
  • Кондиционирование и вентиляция
  • Свой паркинг

Сдается в прямую аренду комфортабельный сервисный офис на 10 рабочих мест в историческом недавно отреконструированном жилом комплексе... подробнее

Презентация по предложению

Собираете информацию? Получите подробную презентацию в удобном формате!

Посмотреть все похожие предложения
Отнеситесь рационально к процессу поиска нового офиса!

Просто ответьте на 3 вопроса, и наши специалисты сами предложат оптимальные варианты под ваш бюджет

.