8.2
Смотреть все фото
БЕЗ КОМИССИИ ID: 1298045 Рейтинг8.9 КлассА

Москва, 2-я Брестская улица, 6

Маяковская → 534 м
~ 5 мин
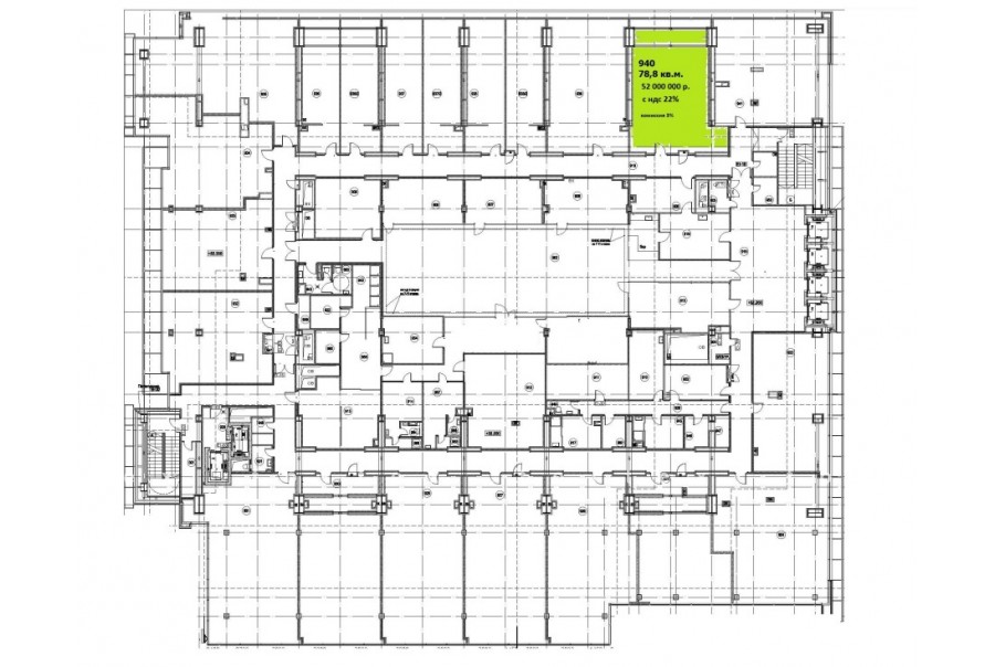
Стоимость 52 млн ₽ 658 200 ₽/м²

Презентация по предложению

Собираете информацию? Получите подробную презентацию в удобном формате!

Площадь 79 м²
Состояние Под отделку
Планировка Открытая
Этаж 6

Описание

Преимущества
  • Класс А
  • Пешком от метро
  • Кондиционирование и вентиляция
  • Свой паркинг
Продается офис площадью 79 квадратных метров в недавно отреконструированном бизнес-центре "Резиденция Тверская".

Помещение можно адаптировать под любой бизнес благодаря функциональной планировке - идеальный баланс комфорта и экономической выгоды. Оптимальное решение для стабильного бизнеса или выгодных инвестиций.

Офис класса А:
- Офис в состоянии shell & core
- Вентиляция: Приточно-вытяжная вентиляция
- Кондиционирование: центральное

О офисном центре:
Москва, ЦАО, 2-я Брестская улица, 6

Удобное расположение здания для всех видов транспорта:
- Автомобиль: близость транспортных магистралей, таких как Садовое Кольцо, Ленинградский проспект и других.
- Возможность аренды парковочных мест.
- Ближайшее метро: от метро "Маяковская" всего 5 мин пешком



Если предложение предварительно Вам подходит:

1. Мы отправим Вам подробную презентацию с планировкой и фотографиями в течение 10 минут после звонка, чтобы Вы могли поделиться информацией с руководством или с коллегами.
2. Задайте любые вопросы менеджеру по телефону, готовы обсуждать любые предложения по финансовым условиям договора продажи.

Звоните нам в любое время. По будням мы сможем ответить на Ваши вопросы до 19:00. В выходные или вечернее время мы передадим Ваш контакт нашему менеджеру.

О бизнес-центре

Класс А
Этажность 12
Лифты Есть
Общая площадь 32 939 м²
Паркинг Подземный
Вентиляция приточно-вытяжная
Кондиционирование центральное
Телекоммуникации Интернет/Телефония

Расположение

Подробная презентацию по предложению

Собираете информацию? Получите подробную презентацию в удобном формате, чтобы обсудить вариант с коллегами или переслать руководству!

Похожие предложения в других зданиях

БЕЗ КОМИССИИ ID: 1310543 Рейтинг9.2 КлассА

Москва, Большая Садовая улица, 5 к1

Маяковская → 419 м
~ 5 мин
Стоимость 92 000 048 ₽ 821 400 ₽/м²
Характеристики 112 м² 2 этаж Готово к въезду
Преимущества
  • Класс А
  • Пешком от метро
  • Кондиционирование и вентиляция
  • Свой паркинг

Продается офис общей площадью 112 кв.м в бизнес-центре "Сады Пекина". .. подробнее

Презентация по предложению

Собираете информацию? Получите подробную презентацию в удобном формате!

БЕЗ КОМИССИИ ID: 1379639 Рейтинг8.2 КлассB+

Москва, Большая Садовая улица, 10

Маяковская → 328 м
~ 3 мин
Стоимость 184 200 000 ₽ 600 000 ₽/м²
Характеристики 307 м² 6 этаж Готово к въезду
Преимущества
  • Класс B+
  • Пешком от метро
  • Кондиционирование и вентиляция
  • Развитая инфраструктура

В продаже офисный блок площадью 307 кв. метров в недавно отреконструированном бизнес-центре "Дом Булгакова". .. подробнее

Презентация по предложению

Собираете информацию? Получите подробную презентацию в удобном формате!

БЕЗ КОМИССИИ ID: 1309276 Рейтинг8.2 КлассB

Москва, Дегтярный переулок, 5 с2

Маяковская → 362 м
~ 5 мин
Стоимость 518 000 000 ₽ 700 000 ₽/м²
Характеристики 740 м² 1 - 4 этаж Готово к въезду
Преимущества
  • Класс B
  • Пешком от метро
  • Кондиционирование и вентиляция
  • Свой паркинг

В продаже офисное помещение общей площадью 740 кв. метров в недавно отреконструированном бизнес-центре. .. подробнее

Презентация по предложению

Собираете информацию? Получите подробную презентацию в удобном формате!

БЕЗ КОМИССИИ ID: 1313032 Рейтинг8.4 КлассB+

Москва, Лесная улица, 6

Белорусская → 131 м
~ 1 мин
Стоимость 5 000 001 630 ₽ 358 100 ₽/м²
Характеристики 13 962 м² -2 - 7 этаж Готово к въезду
Преимущества
  • Класс B+
  • Пешком от метро
  • Кондиционирование и вентиляция
  • Свой паркинг
  • Развитая инфраструктура

Продается офис общей площадью 13962 кв.м в бизнес-центре. .. подробнее

>

Виртуальный тур

Презентация по предложению

Собираете информацию? Получите подробную презентацию в удобном формате!

БЕЗ КОМИССИИ ID: 1327223 Рейтинг9.5 КлассА

Москва, улица Грузинский Вал, 3 с9

Белорусская → 627 м
~ 6 мин
Стоимость 876 249 500 ₽ 703 200 ₽/м²
Характеристики 1 246 м² 16 этаж Под отделку
Преимущества
  • Класс А
  • Пешком от метро
  • Новое строительство
  • Кондиционирование и вентиляция
  • Свой паркинг

В продаже офис площадью 1246 квадратных метров в строящемся бизнес-центре "VALTRI". Год ввода в экслуатацию 2027. .. подробнее

Презентация по предложению

Собираете информацию? Получите подробную презентацию в удобном формате!

Посмотреть все похожие предложения
Отнеситесь рационально к процессу поиска нового офиса!

Просто ответьте на 3 вопроса, и наши специалисты сами предложат оптимальные варианты под ваш бюджет

.