8.2
Смотреть все фото
БЕЗ КОМИССИИ ID: 1297256 Рейтинг8.2 КлассB
Бизнес-центр «Ring Park»

Аренда офиса 1060 м²

Москва, Новохохловская улица, 23 с1

Новохохловская → 496 м
~ 5 мин
Арендная плата в месяц 2 137 700 ₽ 24 200 ₽/м² в год С учётом НДС

Презентация по предложению

Собираете информацию? Получите подробную презентацию в удобном формате!

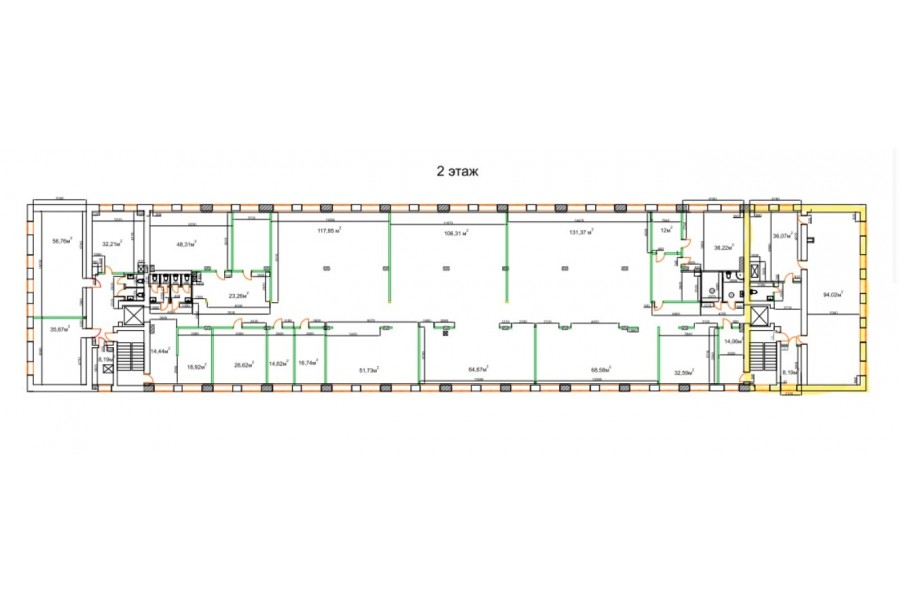
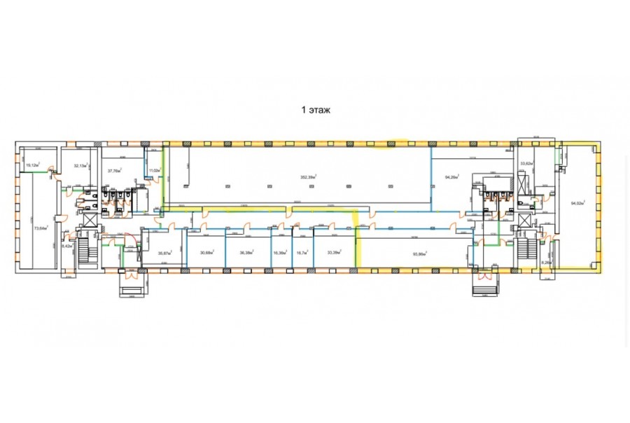
Площадь 1 060 м²
Состояние Готово к въезду
Планировка Смешанная
Этаж 1 - 3

Описание

Преимущества
  • Класс B
  • Пешком от метро
  • Кондиционирование и вентиляция
  • Свой паркинг
Предлагается в аренду помещение под офис класса B площадью 1060 квадратных метров в бизнес-центре "Ring Park".

Москва, ЮВАО, Новохохловская улица, 23 с1

Удобное расположение здания для всех видов транспорта:
- Автомобиль: близость транспортных магистралей, таких как Третье Транспортное Кольцо, Волгоградский проспект, Рязанский проспект и других.
- Возможность аренды парковочных мест.
- Ближайшее метро: от метро "Новохохловская" всего 5 мин пешком

Офис класса B:
- Офис с отделкой, полностью готов к аренде
- Вентиляция: Приточно-вытяжная вентиляция
- Кондиционирование: центральное
- Презентабельный центральный ресепшн
- Круглосуточная охрана и видеонаблюдение

Возможность заключения контракта в соответствии с 44ФЗ по госзакупкам.

Что еще можно узнать о предложении:

1. Мы подготовили презентацию с информацией о помещении, фотографиями и планировкой, чтобы Вы могли поделиться ей с коллегами или руководством. Попросите об этом нашего менеджера по телефону в объявлении.
2. Задайте любые вопросы менеджеру по телефону, готовы обсуждать любые предложения по финансовым условиям договора аренды.
3. Покажем помещение в удобное для Вас время с менеджером в здании, при необходимости подготовим виртуальный тур.

Вы можете позвонить нам в любое время. Мы ответим на Ваши вопросы по будням до 19:00, а поздно вечером или в выходные зафиксируем Ваш контакт и перезвоним в рабочее время.

Коммерческие условия

Арендная плата 1 943 330 ₽
Ставка арендной платы 24 200 ₽ м²/год
Эксплуатационные расходы Включены в ставку
Налоги С учётом НДС
Тип договора Субаренда
Срок договора от 11 месяцев
Размер платежей 1 месяц
Обеспечительный платеж 1 месяц
Статус Сдан

О бизнес-центре

Класс B
Этажность 10
Лифты Есть
Общая площадь 18 000 м²
Год постройки 2005
Паркинг Наземный
Вентиляция приточно-вытяжная
Кондиционирование центральное
Телекоммуникации Интернет/Телефония

Расположение

Подробная презентацию по предложению

Собираете информацию? Получите подробную презентацию в удобном формате, чтобы обсудить вариант с коллегами или переслать руководству!

Похожие предложения в других зданиях

ВОЗМОЖНО ОСВОБОЖДЕНИЕ ID: 1297912 Рейтинг8.1 КлассB

Москва, Шарикоподшипниковская улица, 13 с62

Волгоградский проспект → 899 м
~ 9 мин
Арендная плата в месяц 2 125 200 ₽ 25 200 ₽/м² в год С учётом НДС
Характеристики 1 012 м² 3 - 4 этаж Готово к въезду
Преимущества
  • Класс B
  • Пешком от метро
  • Кондиционирование и вентиляция
  • Свой паркинг
  • Несколько провайдеров связи

Предлагаем в долгосрочную аренду офисное помещение класса B общей площадью 1012 кв.м в недавно отреконструированном бизнес-центре "Шарикоподшипниковский"... подробнее

Презентация по предложению

Собираете информацию? Получите подробную презентацию в удобном формате!

ВОЗМОЖНО ОСВОБОЖДЕНИЕ ID: 1179561 Рейтинг8.4 КлассB+

Москва, Шарикоподшипниковская улица, 13 с2

Дубровка → 39 м
~ 0 мин
Арендная плата в месяц 1 936 733 ₽ 20 900 ₽/м² в год С учётом НДС
Характеристики 1 112 м² 3 - 4 этаж Готово к въезду
Преимущества
  • Класс B+
  • Пешком от метро
  • Кондиционирование и вентиляция
  • Свой паркинг

Предлагается в прямую аренду помещение под офис класса B+ общей площадью 1112 кв.м в бизнес-центре "ЕПК"... подробнее

>

Виртуальный тур

Презентация по предложению

Собираете информацию? Получите подробную презентацию в удобном формате!

БЕЗ КОМИССИИ ID: 229547 Рейтинг7.5 КлассB

Москва, Волгоградский проспект, 2

Пролетарская → 174 м
~ 2 мин
Арендная плата в месяц 1 761 850 ₽ 21 100 ₽/м² в год С учётом НДС
Характеристики 1 002 м² 4 этаж Готово к въезду
Преимущества
  • Класс B
  • Пешком от метро
  • Кондиционирование и вентиляция
  • Свой паркинг
  • Развитая инфраструктура

Сдается в долгосрочную аренду офис класса B площадью 1002 кв. метров в бизнес-центре... подробнее

Презентация по предложению

Собираете информацию? Получите подробную презентацию в удобном формате!

БЕЗ КОМИССИИ ID: 1380170 Рейтинг7.9 КлассB+

Москва, 2-й Южнопортовый проезд, 16 с1

Кожуховская → 611 м
~ 6 мин
Арендная плата в месяц 2 682 000 ₽ 27 000 ₽/м² в год С учётом НДС
Характеристики 1 192 м² 3 - 4 этаж Готово к въезду
Преимущества
  • Класс B+
  • Пешком от метро
  • Кондиционирование и вентиляция
  • Свой паркинг
  • Несколько провайдеров связи

Предлагается в долгосрочную аренду офисный блок класса B+ площадью 1192 квадр. метров в бизнес-центре "Южный Порт"... подробнее

Презентация по предложению

Собираете информацию? Получите подробную презентацию в удобном формате!

БЕЗ КОМИССИИ ID: 1380189 Рейтинг7.9 КлассB+

Москва, 2-й Южнопортовый проезд, 16 с1

Кожуховская → 611 м
~ 6 мин
Арендная плата в месяц 2 331 000 ₽ 27 000 ₽/м² в год С учётом НДС
Характеристики 1 036 м² 1 этаж Готово к въезду
Преимущества
  • Класс B+
  • Пешком от метро
  • Кондиционирование и вентиляция
  • Свой паркинг
  • Несколько провайдеров связи

Предлагается в долгосрочную прямую аренду офисное помещение класса B+ площадью 1036 квадратных метров в бизнес-центре "Южный Порт"... подробнее

Презентация по предложению

Собираете информацию? Получите подробную презентацию в удобном формате!

Посмотреть все похожие предложения
Отнеситесь рационально к процессу поиска нового офиса!

Просто ответьте на 3 вопроса, и наши специалисты сами предложат оптимальные варианты под ваш бюджет

.