8.2
Смотреть все фото
БЕЗ КОМИССИИ ID: 1297238 Рейтинг8.2 КлассB
Бизнес-центр «Ring Park»

Аренда офиса 1996 м²

Москва, Новохохловская улица, 23 с1

Новохохловская → 496 м
~ 5 мин
Арендная плата в месяц 5 821 700 ₽ 35 000 ₽/м² в год С учётом НДС

Презентация по предложению

Собираете информацию? Получите подробную презентацию в удобном формате!

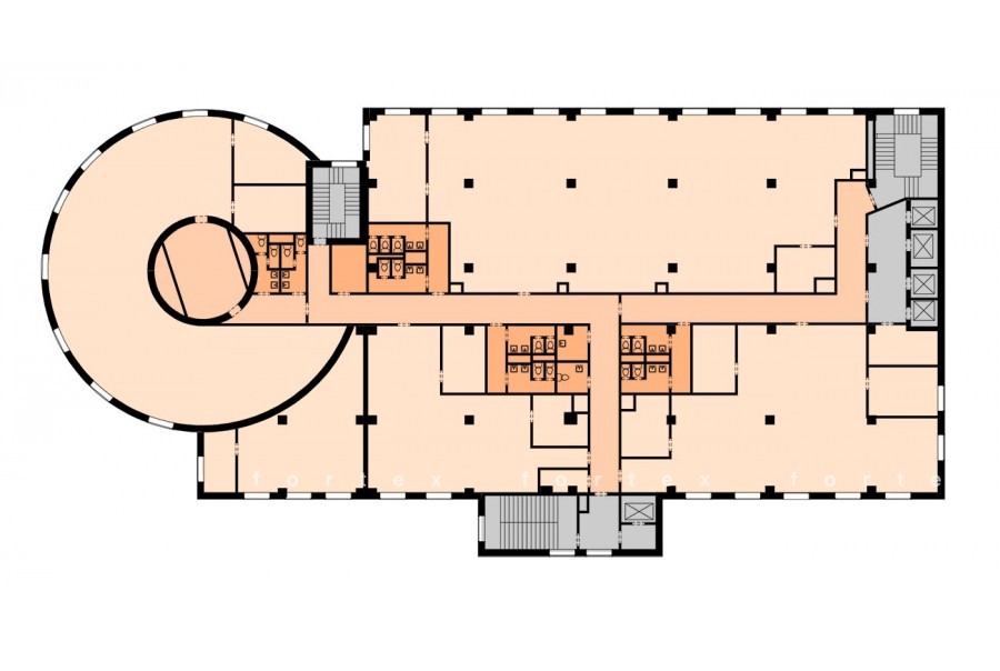
Площадь 1 996 м²
Состояние Готово к въезду
Планировка Смешанная
Этаж 5

Описание

Преимущества
  • Класс B
  • Пешком от метро
  • Кондиционирование и вентиляция
  • Свой паркинг
Предлагается в долгосрочную аренду помещение под офис класса B площадью 1996 кв.м в бизнес-центре "Ring Park".

Москва, ЮВАО, Новохохловская улица, 23 с1

Удобное расположение здания для всех видов транспорта:
- Автомобиль: близость транспортных магистралей, таких как Рязанский проспект, Волгоградский проспект, Третье Транспортное Кольцо и других.
- Возможность аренды парковочных мест.
- Ближайшее метро: от метро "Новохохловская" всего 5 мин пешком

Офис класса B:
- Помещение готово к въезду
- Вентиляция: Приточно-вытяжная вентиляция
- Кондиционирование: центральное
- Презентабельный центральный ресепшн
- Круглосуточная охрана и видеонаблюдение

Возможность заключения контракта в соответствии с 44ФЗ по госзакупкам.

Что еще можно узнать о предложении:

1. Мы отправим Вам подробную презентацию с планировкой и фотографиями в течение 10 минут после звонка, чтобы Вы могли поделиться информацией с руководством или с коллегами.
2. Задайте любые вопросы менеджеру по телефону, готовы обсуждать любые предложения по финансовым условиям договора аренды.
3. Оперативно организуем просмотр помещения с менеджерами на объекте или подготовим виртуальный тур.

Звоните нам в любое время. По будням мы сможем ответить на Ваши вопросы до 19:00. В выходные или вечернее время мы передадим Ваш контакт нашему менеджеру по аренде.

Коммерческие условия

Арендная плата 5 821 670 ₽
Ставка арендной платы 35 000 ₽ м²/год
Эксплуатационные расходы Включены в ставку
Налоги С учётом НДС
Тип договора Прямая аренда
Срок договора от 11 месяцев
Размер платежей 1 месяц
Обеспечительный платеж 2 месяц
Статус Свободен

О бизнес-центре

Класс B
Этажность 10
Лифты Есть
Общая площадь 18 000 м²
Год постройки 2005
Паркинг Наземный
Вентиляция приточно-вытяжная
Кондиционирование центральное
Телекоммуникации Интернет/Телефония

Расположение

Подробная презентацию по предложению

Собираете информацию? Получите подробную презентацию в удобном формате, чтобы обсудить вариант с коллегами или переслать руководству!

Похожие предложения в других зданиях

БЕЗ КОМИССИИ ID: 1297242 Рейтинг8.2 КлассB

Москва, Новохохловская улица, 23 с1

Новохохловская → 496 м
~ 5 мин
Арендная плата в месяц 5 821 667 ₽ 35 000 ₽/м² в год С учётом НДС
Характеристики 1 996 м² 9 этаж Готово к въезду
Преимущества
  • Класс B
  • Пешком от метро
  • Кондиционирование и вентиляция
  • Свой паркинг

Предлагаем в долгосрочную прямую аренду офис класса B общей площадью 1996 кв. метров в бизнес-центре "Ring Park"... подробнее

Презентация по предложению

Собираете информацию? Получите подробную презентацию в удобном формате!

БЕЗ КОМИССИИ ID: 1297241 Рейтинг8.2 КлассB

Москва, Новохохловская улица, 23 с1

Новохохловская → 496 м
~ 5 мин
Арендная плата в месяц 5 821 667 ₽ 35 000 ₽/м² в год С учётом НДС
Характеристики 1 996 м² 8 этаж Готово к въезду
Преимущества
  • Класс B
  • Пешком от метро
  • Кондиционирование и вентиляция
  • Свой паркинг

Предлагаем в прямую аренду помещение под офис класса B площадью 1996 кв.м в бизнес-центре "Ring Park"... подробнее

Презентация по предложению

Собираете информацию? Получите подробную презентацию в удобном формате!

БЕЗ КОМИССИИ ID: 1297240 Рейтинг8.2 КлассB

Москва, Новохохловская улица, 23 с1

Новохохловская → 496 м
~ 5 мин
Арендная плата в месяц 5 821 667 ₽ 35 000 ₽/м² в год С учётом НДС
Характеристики 1 996 м² 7 этаж Готово к въезду
Преимущества
  • Класс B
  • Пешком от метро
  • Кондиционирование и вентиляция
  • Свой паркинг

Предлагается в прямую аренду офисный блок класса B площадью 1996 кв. метров в бизнес-центре "Ring Park"... подробнее

Презентация по предложению

Собираете информацию? Получите подробную презентацию в удобном формате!

БЕЗ КОМИССИИ ID: 1297239 Рейтинг8.2 КлассB

Москва, Новохохловская улица, 23 с1

Новохохловская → 496 м
~ 5 мин
Арендная плата в месяц 5 821 667 ₽ 35 000 ₽/м² в год С учётом НДС
Характеристики 1 996 м² 6 этаж Готово к въезду
Преимущества
  • Класс B
  • Пешком от метро
  • Кондиционирование и вентиляция
  • Свой паркинг

Предлагается в долгосрочную прямую аренду помещение под офис класса B общей площадью 1996 квадр. метров в бизнес-центре "Ring Park"... подробнее

Презентация по предложению

Собираете информацию? Получите подробную презентацию в удобном формате!

БЕЗ КОМИССИИ ID: 1297237 Рейтинг8.2 КлассB

Москва, Новохохловская улица, 23 с1

Новохохловская → 496 м
~ 5 мин
Арендная плата в месяц 5 821 667 ₽ 35 000 ₽/м² в год С учётом НДС
Характеристики 1 996 м² 4 этаж Готово к въезду
Преимущества
  • Класс B
  • Пешком от метро
  • Кондиционирование и вентиляция
  • Свой паркинг

Предлагаем в долгосрочную аренду офисное помещение класса B общей площадью 1996 квадратных метров в бизнес-центре "Ring Park"... подробнее

Презентация по предложению

Собираете информацию? Получите подробную презентацию в удобном формате!

Посмотреть все похожие предложения
Отнеситесь рационально к процессу поиска нового офиса!

Просто ответьте на 3 вопроса, и наши специалисты сами предложат оптимальные варианты под ваш бюджет

.