8.2
Смотреть все фото
БЕЗ КОМИССИИ ID: 1297241 Рейтинг8.2 КлассB
Бизнес-центр «Ring Park»

Аренда офиса 1996 м²

Москва, Новохохловская улица, 23 с1

Новохохловская → 496 м
~ 5 мин
Арендная плата в месяц 5 821 700 ₽ 35 000 ₽/м² в год С учётом НДС

Презентация по предложению

Собираете информацию? Получите подробную презентацию в удобном формате!

Площадь 1 996 м²
Состояние Готово к въезду
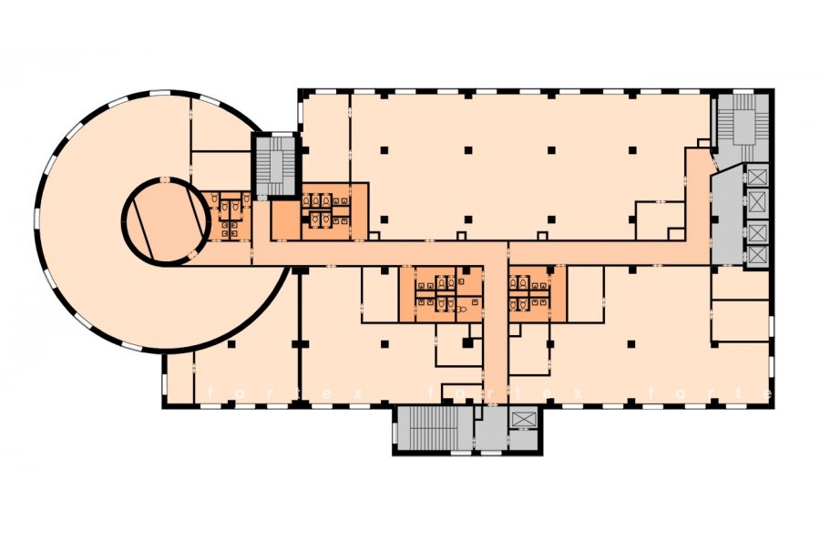
Планировка Смешанная
Этаж 8

Описание

Преимущества
  • Класс B
  • Пешком от метро
  • Кондиционирование и вентиляция
  • Свой паркинг
Предлагаем в прямую аренду помещение под офис класса B площадью 1996 кв.м в бизнес-центре "Ring Park".

Москва, ЮВАО, Новохохловская улица, 23 с1

Удобное расположение здания для всех видов транспорта:
- Автомобиль: близость транспортных магистралей, таких как Третье Транспортное Кольцо, Волгоградский проспект, Рязанский проспект и других.
- Возможность аренды парковочных мест.
- Ближайшее метро: от метро "Новохохловская" всего 5 мин пешком

Офис класса B:
- Помещение готово к въезду
- Вентиляция: Приточно-вытяжная вентиляция
- Кондиционирование: центральное
- Презентабельный центральный ресепшн
- Круглосуточная охрана и видеонаблюдение

Возможность заключения контракта в соответствии с 44ФЗ по госзакупкам.

Если предложение предварительно Вам подходит:

1. Мы подготовили презентацию с информацией о помещении, фотографиями и планировкой, чтобы Вы могли поделиться ей с коллегами или руководством. Попросите об этом нашего менеджера по телефону в объявлении.
2. Ответим на любые Ваши вопросы, готовы обсуждать любые предложения по коммерческим условиям аренды помещения.
3. Оперативно организуем просмотр помещения, договоримся на любое удобное время, подготовим виртуальный тур.

Вы можете позвонить нам в любое время. Мы ответим на Ваши вопросы по будням до 19:00, а поздно вечером или в выходные зафиксируем Ваш контакт и перезвоним в рабочее время.

Коммерческие условия

Арендная плата 5 821 670 ₽
Ставка арендной платы 35 000 ₽ м²/год
Эксплуатационные расходы Включены в ставку
Налоги С учётом НДС
Тип договора Прямая аренда
Срок договора от 11 месяцев
Размер платежей 1 месяц
Обеспечительный платеж 2 месяц
Статус Свободен

О бизнес-центре

Класс B
Этажность 10
Лифты Есть
Общая площадь 18 000 м²
Год постройки 2005
Паркинг Наземный
Вентиляция приточно-вытяжная
Кондиционирование центральное
Телекоммуникации Интернет/Телефония

Расположение

Подробная презентацию по предложению

Собираете информацию? Получите подробную презентацию в удобном формате, чтобы обсудить вариант с коллегами или переслать руководству!

Похожие предложения в других зданиях

БЕЗ КОМИССИИ ID: 1297242 Рейтинг8.2 КлассB

Москва, Новохохловская улица, 23 с1

Новохохловская → 496 м
~ 5 мин
Арендная плата в месяц 5 821 667 ₽ 35 000 ₽/м² в год С учётом НДС
Характеристики 1 996 м² 9 этаж Готово к въезду
Преимущества
  • Класс B
  • Пешком от метро
  • Кондиционирование и вентиляция
  • Свой паркинг

Предлагаем в долгосрочную прямую аренду офис класса B общей площадью 1996 кв. метров в бизнес-центре "Ring Park"... подробнее

Презентация по предложению

Собираете информацию? Получите подробную презентацию в удобном формате!

БЕЗ КОМИССИИ ID: 1297240 Рейтинг8.2 КлассB

Москва, Новохохловская улица, 23 с1

Новохохловская → 496 м
~ 5 мин
Арендная плата в месяц 5 821 667 ₽ 35 000 ₽/м² в год С учётом НДС
Характеристики 1 996 м² 7 этаж Готово к въезду
Преимущества
  • Класс B
  • Пешком от метро
  • Кондиционирование и вентиляция
  • Свой паркинг

Предлагается в прямую аренду офисный блок класса B площадью 1996 кв. метров в бизнес-центре "Ring Park"... подробнее

Презентация по предложению

Собираете информацию? Получите подробную презентацию в удобном формате!

БЕЗ КОМИССИИ ID: 1297239 Рейтинг8.2 КлассB

Москва, Новохохловская улица, 23 с1

Новохохловская → 496 м
~ 5 мин
Арендная плата в месяц 5 821 667 ₽ 35 000 ₽/м² в год С учётом НДС
Характеристики 1 996 м² 6 этаж Готово к въезду
Преимущества
  • Класс B
  • Пешком от метро
  • Кондиционирование и вентиляция
  • Свой паркинг

Предлагается в долгосрочную прямую аренду помещение под офис класса B общей площадью 1996 квадр. метров в бизнес-центре "Ring Park"... подробнее

Презентация по предложению

Собираете информацию? Получите подробную презентацию в удобном формате!

БЕЗ КОМИССИИ ID: 1297238 Рейтинг8.2 КлассB

Москва, Новохохловская улица, 23 с1

Новохохловская → 496 м
~ 5 мин
Арендная плата в месяц 5 821 667 ₽ 35 000 ₽/м² в год С учётом НДС
Характеристики 1 996 м² 5 этаж Готово к въезду
Преимущества
  • Класс B
  • Пешком от метро
  • Кондиционирование и вентиляция
  • Свой паркинг

Предлагается в долгосрочную аренду помещение под офис класса B площадью 1996 кв.м в бизнес-центре "Ring Park"... подробнее

Презентация по предложению

Собираете информацию? Получите подробную презентацию в удобном формате!

БЕЗ КОМИССИИ ID: 1297237 Рейтинг8.2 КлассB

Москва, Новохохловская улица, 23 с1

Новохохловская → 496 м
~ 5 мин
Арендная плата в месяц 5 821 667 ₽ 35 000 ₽/м² в год С учётом НДС
Характеристики 1 996 м² 4 этаж Готово к въезду
Преимущества
  • Класс B
  • Пешком от метро
  • Кондиционирование и вентиляция
  • Свой паркинг

Предлагаем в долгосрочную аренду офисное помещение класса B общей площадью 1996 квадратных метров в бизнес-центре "Ring Park"... подробнее

Презентация по предложению

Собираете информацию? Получите подробную презентацию в удобном формате!

Посмотреть все похожие предложения
Отнеситесь рационально к процессу поиска нового офиса!

Просто ответьте на 3 вопроса, и наши специалисты сами предложат оптимальные варианты под ваш бюджет

.