8.2

Виртуальный тур

Смотреть все фото
ВОЗМОЖНО ОСВОБОЖДЕНИЕ ID: 1214863 Рейтинг7.6 КлассB+

Москва, Бережковская набережная, 16А

Киевская → 1.03 км
~ 10 мин
Арендная плата в месяц по запросу потенциального арендатора Срок освобождение в течение 3 месяцев

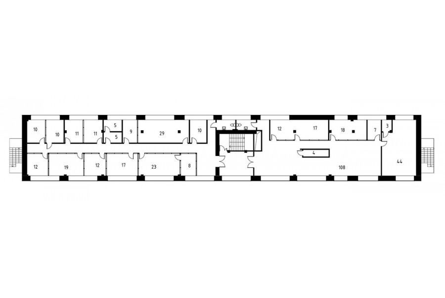
Информация по помещению

Ознакомьтесь с дополнительной информацией по помещению и коммерческим условиям!

Площадь 281 м²
Планировка Смешанная
Этаж 2

Описание

Преимущества
  • Класс B+
  • Пешком от метро
  • Кондиционирование и вентиляция
  • Свой паркинг
  • Несколько провайдеров связи

Коммерческие условия

Арендная плата по запросу
Ставка арендной платы по запросу
Эксплуатационные расходы Включены в ставку
Налоги С учётом НДС
Тип договора Прямая аренда
Срок договора от 11 месяцев
Размер платежей 1 месяц
Обеспечительный платеж 1 месяц
Статус Сдан

О бизнес-центре

Класс B+
Этажность 4
Лифты Нет
Общая площадь 12 000 м²
Год постройки 2005
Паркинг Подземный
Вентиляция приточно-вытяжная
Кондиционирование сплит-системы
Телекоммуникации Интернет/Телефония

Расположение

Информация по помещению

Получите дополнительную информацию по помещению и коммерческом условиям!

Похожие предложения в других зданиях

БЕЗ КОМИССИИ ID: 1328665 Рейтинг8.6 КлассB

Москва, 1-й переулок Тружеников, 12 с3

Киевская → 963 м
~ 10 мин
Арендная плата в месяц 770 002 ₽ 37 400 ₽/м² в год С учётом НДС
Характеристики 247 м² 1 - 4 этаж Готово к въезду
Преимущества
  • Класс B
  • Пешком от метро
  • Кондиционирование и вентиляция
  • Свой паркинг

Сдается в прямую аренду офис класса B общей площадью 247 квадратных метров в бизнес-центре... подробнее

Презентация по предложению

Собираете информацию? Получите подробную презентацию в удобном формате!

БЕЗ КОМИССИИ ID: 1100622 Рейтинг7.9 КлассB

Москва, Саввинская набережная, 23 с1

Спортивная → 1.22 км
~ 12 мин
Арендная плата в месяц 812 500 ₽ 39 000 ₽/м² в год С учётом НДС
Характеристики 250 м² 3 этаж Под отделку
Преимущества
  • Класс B
  • Пешком от метро
  • Кондиционирование и вентиляция

Собственник сдает в долгосрочную прямую аренду офисный блок класса B общей площадью 250 квадр. метров в бизнес-центре... подробнее

Презентация по предложению

Собираете информацию? Получите подробную презентацию в удобном формате!

БЕЗ КОМИССИИ ID: 77399 Рейтинг5.0 КлассB

Москва, Земледельческий переулок, 14/17 с2

Смоленская → 1.07 км
~ 11 мин
Арендная плата в месяц 875 000 ₽ 35 000 ₽/м² в год С учётом НДС
Характеристики 300 м² 1 этаж Готово к въезду
Преимущества
  • Класс B
  • Пешком от метро
  • Кондиционирование и вентиляция

Собственник сдает в прямую аренду офис класса B площадью 300 квадр. метров в историческом бизнес-центре... подробнее

Презентация по предложению

Собираете информацию? Получите подробную презентацию в удобном формате!

БЕЗ КОМИССИИ ID: 1323728 Рейтинг7.7 КлассB

Москва, улица Бурденко, 14кА

Парк культуры → 980 м
~ 10 мин
Арендная плата в месяц 990 000 ₽ 45 000 ₽/м² в год С учётом НДС
Характеристики 264 м² 8 этаж Готово к въезду
Преимущества
  • Класс B
  • Пешком от метро
  • Кондиционирование и вентиляция

Предлагаем в долгосрочную прямую аренду офис класса B площадью 264 квадратных метров в бизнес-центре... подробнее

>

Виртуальный тур

Презентация по предложению

Собираете информацию? Получите подробную презентацию в удобном формате!

БЕЗ КОМИССИИ ID: 306888 Рейтинг7.7 КлассB+

Москва, 1-я Бородинская улица, 2А

Киевская → 621 м
~ 6 мин
Арендная плата в месяц 875 000 ₽ 35 000 ₽/м² в год С учётом НДС
Характеристики 300 м² 5 этаж Готово к въезду
Преимущества
  • Класс B+
  • Пешком от метро
  • Кондиционирование и вентиляция
  • Свой паркинг

Предлагается в прямую аренду офисное помещение класса B+ площадью 300 квадр. метров в бизнес-центре "Бородинская Панорама"... подробнее

Презентация по предложению

Собираете информацию? Получите подробную презентацию в удобном формате!

Посмотреть все похожие предложения
Отнеситесь рационально к процессу поиска нового офиса!

Просто ответьте на 3 вопроса, и наши специалисты сами предложат оптимальные варианты под ваш бюджет

.